Добавить в корзинуПозвонить
Найти в Дзене

Пожаробезопасные зоны для МГН: организация и размещение

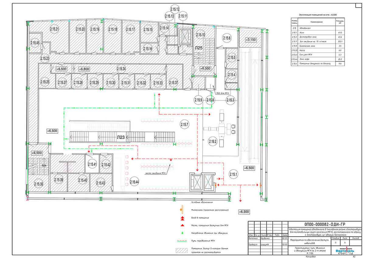
Обеспечение безопасной эвакуации при пожаре для маломобильных групп населения (МГН) представляет собой сложную задачу. Эффективным решением является правильная организация и размещение пожаробезопасных зон – специальных участков в здании, где люди находятся под защитой от опасных факторов пожара до момента прибытия аварийно-спасательных подразделений. Пожаробезопасная зона – это часть здания и сооружения, защищенная от воздействия опасных факторов пожара или в которой их уровень не превышает предельно допустимых значений. Для МГН и других групп населения, не способных к быстрой эвакуации, эти зоны служат местом для ожидания помощи. Согласно требованиям актуализированного свода правил СП 59.13330.2020, если с этажа здания невозможно обеспечить своевременную эвакуацию всех инвалидов, на нем необходимо предусматривать такие безопасные зоны. Требования к созданию пожаробезопасных зон регламентированы следующими основными документами: Размещать безопасные зоны требуется на всех этажах, где
Оглавление

Обеспечение безопасной эвакуации при пожаре для маломобильных групп населения (МГН) представляет собой сложную задачу. Эффективным решением является правильная организация и размещение пожаробезопасных зон – специальных участков в здании, где люди находятся под защитой от опасных факторов пожара до момента прибытия аварийно-спасательных подразделений.

Понятие и назначение пожаробезопасной зоны

Пожаробезопасная зона – это часть здания и сооружения, защищенная от воздействия опасных факторов пожара или в которой их уровень не превышает предельно допустимых значений. Для МГН и других групп населения, не способных к быстрой эвакуации, эти зоны служат местом для ожидания помощи.

Согласно требованиям актуализированного свода правил СП 59.13330.2020, если с этажа здания невозможно обеспечить своевременную эвакуацию всех инвалидов, на нем необходимо предусматривать такие безопасные зоны.

Нормативная база

Требования к созданию пожаробезопасных зон регламентированы следующими основными документами:

  • Федеральный закон №123-ФЗ «Технический регламент о требованиях пожарной безопасности» (ст. 2, ч. 15 ст. 89). Документ разрешает организацию безопасных зон на этажах рядом с лифтами для МГН и на лестничных клетках.
  • СП 59.13330.2020 «Доступность зданий и сооружений для маломобильных групп населения» (разделы 6.2.25 - 6.2.28). Устанавливает конкретные нормативы по размещению, площади и оснащению безопасных зон.
  • СП 1.13130.2020 «Системы противопожарной защиты. Эвакуационные пути и выходы» (п. 9.2). Детализирует типы пожаробезопасных зон и технические требования к их конструктивным решениям.
-2

Правила размещения

Размещать безопасные зоны требуется на всех этажах, где возможно присутствие МГН, если их эвакуация наружу не обеспечена другими способами. Согласно нормам, их допустимо устраивать в следующих местах:

  • В изолированных помещениях с выходами непосредственно в незадымляемую лестничную клетку.
  • В холлах лифтов, предназначенных для транспортировки пожарных подразделений или МГН.
  • На площадках незадымляемых лестничных клеток типов Н1, Н2 и Н3.
  • На эксплуатируемой кровле, открытом балконе, лоджии или галерее при условии обеспечения их незадымляемости.

Предельное расстояние от самой удаленной точки помещения, предназначенного для инвалидов, до входа в безопасную зону определяется расчетным путем и должно быть преодолимо в течение времени, необходимого для эвакуации.

Требования к устройству и оснащению

Конструктивные особенности. Помещение безопасной зоны должно быть отделено от смежных помещений и коридоров противопожарными стенами, перегородками и перекрытиями с нормируемыми пределами огнестойкости. Для зон, расположенных в лифтовых холлах, шахты лифтов оснащаются автономными системами приточной противодымной вентиляции.

Система приточной противодымной вентиляции обязана обеспечивать подачу наружного воздуха для создания избыточного давления, что предотвращает задымление помещения безопасной зоны.

Расчет площади. Площадь безопасной зоны рассчитывается исходя из максимального предполагаемого количества людей из числа МГН, которые могут остаться на этаже, и должна позволять маневрирование.

Рекомендуемая удельная площадь на одного человека:

  • Инвалид в кресле-коляске: 2,40 м²
  • Инвалид в кресле-коляске с сопровождающим: 2,65 м²
  • Инвалид, перемещающийся самостоятельно: 0,75 м²
  • Инвалид, перемещающийся с сопровождающим: 1,00 м²

Расстановка мест для МГН в зоне должна обеспечивать беспрепятственный доступ к каждому из них.

Оснащение. Каждая безопасная зона должна быть оснащена:

  • Устройством двусторонней речевой и/или видеосвязи с диспетчерской, пожарным постом или помещением с персоналом, осуществляющим круглосуточное дежурство.
  • Аварийным освещением.
  • Тактильными указателями и знаками, выполненными согласно ГОСТ Р 51671, для облегчения ориентации людей с нарушением зрения.
  • Направляющие поручни-отбойники. Непрерывные поручни, установленные вдоль стен на всем пути эвакуации, служат физическим ориентиром. В критической ситуации они позволяют быстро двигаться, не теряя контакт с направляющей.
  • Тактильная напольная плитка. Контрастные по цвету и фактуре направляющие из тактильной плитки позволяют следовать по безопасному маршруту. Разный тип рельефа информирует незрячего человека об обстановке.
-3

Чек-лист для проверки пожаробезопасной зоны

Для оперативной оценки соответствия организованной зоны ключевым нормам можно использовать следующий чек-лист:

1. Размещение и доступность:

  • Зона предусмотрена на каждом этаже, где возможно присутствие МГН и не обеспечена их эвакуация наружу.
  • Расстояние от наиболее удаленной точки этажа до входа в зону соответствует расчетному времени эвакуации.
  • Путь к зоне четко обозначен световыми указателями, тактильными табличками и/или направляющей напольной плиткой.
  • Дверь в зону беспрепятственна для проезда коляски (ширина проема не менее 0,9 м).

2. Конструктивная и инженерная защита:

  • Помещение зоны отделено противопожарными преградами (стены, перегородки, перекрытия) с требуемым пределом огнестойкости.
  • Для зон в лифтовых холлах шахта лифта оборудована автономной системой подпора воздуха.
  • Работает система приточной противодымной вентиляции, создающая избыточное давление в помещении зоны.
  • Имеется работоспособное аварийное освещение.

3. Площадь и планировка:

  • Площадь зоны рассчитана и соответствует требуемым удельным показателям на предполагаемое количество людей (МГН и сопровождающих).
  • Расстановка мест обеспечивает свободный проезд и маневрирование для кресла-коляски.

4. Оснащение и связь:

  • Установлено и исправно устройство двусторонней связи (речевой или видео) с диспетчерским пунктом.
  • Присутствуют информационные и тактильные знаки доступности, выполненные по ГОСТ.
  • На пути следования к зоне и внутри нее (при необходимости) смонтированы направляющие поручни.

5. Документация:

  • Наличие проектной документации с расчетами и схемами размещения зоны.
  • Акт приемки и проверки работоспособности системы подпора воздуха и связи.

Заключение

Грамотная организация пожаробезопасных зон – это не просто формальное выполнение нормативов, а критически важный элемент комплексного подхода к формированию безбарьерной и безопасной среды для всех категорий маломобильных групп населения. Соблюдение установленных правил размещения и устройства таких зон позволяет гарантировать защиту и своевременное спасение людей с ограниченными возможностями передвижения в случае возникновения чрезвычайной ситуации.

Реклама. ООО «Вертикаль», erid: 2VtzqwcZQpA