Добавить в корзинуПозвонить
Найти в Дзене
ПСК "Градиент"

Надёжность в каждой детали: одноэтажный дом 169 м2 со стенами из газобетона и монолитным фундаментом

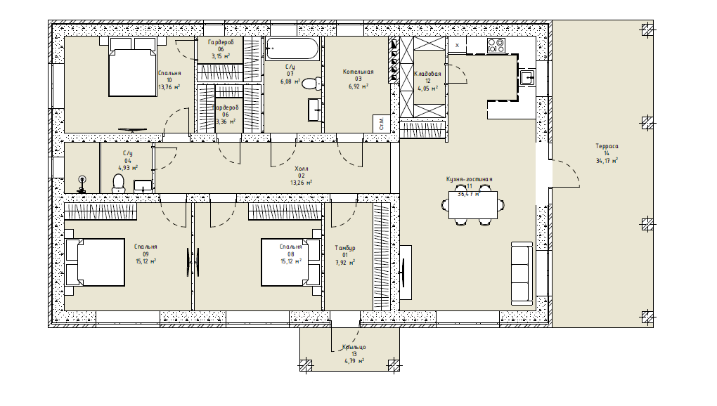
Мечтаете о собственном доме, где каждая комната работает на ваш комфорт, а планировка не оставляет «мёртвых зон»? Представляем вам проект одноэтажного дома от ПСК «Градиент» прекрасное сочетание эргономики, современных материалов и стильного дизайна. 1. Простор без лишних ступеней Одноэтажная планировка - не только безопасность и удобство, но и ощущение простора. Черновая высота помещений - 3,1 м, что создаёт лёгкость и воздушность интерьера. Здесь нет лестниц, которые «съедают» полезную площадь: вся функциональность сосредоточена на одном уровне. Идеально для семей с детьми и пожилых людей. 2. Продуманная планировка: ни одного лишнего метра Общая площадь дома 169,10 м² распределена максимально эффективно.
Что вы получаете: Три спальни (15,12 м², 15,12 м² и 13,76 м²) достаточно места для всей семьи и гостей. Просторная кухня-гостиная (36,47 м²) сердце дома, где собирается вся семья. Холл (13,26 м²) создаёт ощущение простора при входе. Две гардеробные (3,15 м² и 3,36 м²) больше никаки
Оглавление

Мечтаете о собственном доме, где каждая комната работает на ваш комфорт, а планировка не оставляет «мёртвых зон»? Представляем вам проект одноэтажного дома от ПСК «Градиент» прекрасное сочетание эргономики, современных материалов и стильного дизайна.

Почему этот проект заслуживает вашего внимания?

1. Простор без лишних ступеней

Одноэтажная планировка - не только безопасность и удобство, но и ощущение простора. Черновая высота помещений - 3,1 м, что создаёт лёгкость и воздушность интерьера. Здесь нет лестниц, которые «съедают» полезную площадь: вся функциональность сосредоточена на одном уровне. Идеально для семей с детьми и пожилых людей.

2. Продуманная планировка: ни одного лишнего метра

Общая площадь дома 169,10 м² распределена максимально эффективно.
Что вы получаете:

-2

Три спальни (15,12 м², 15,12 м² и 13,76 м²) достаточно места для всей семьи и гостей.

Просторная кухня-гостиная (36,47 м²) сердце дома, где собирается вся семья.

Холл (13,26 м²) создаёт ощущение простора при входе.

Две гардеробные (3,15 м² и 3,36 м²) больше никаких шкафов в комнатах!

Два с\у (4,93 м² и 6,08 м²) удобно для семьи и гостей.

Котельная (6,92 м²) компактно и безопасно.

Кладовая (4,05 м²) для хранения бытовых мелочей.

Терраса (34,17 м²) отличное место для утреннего кофе или вечерних посиделок.

Тамбур (7,92 м²) и крыльцо (4,79 м²) защищают дом от холода и грязи.

3. Надежные конструктивные решения

Мы используем только проверенные технологии и материалы:

  • Фундамент - монолитная плита. Гарантирует надёжность и долговечность конструкции, равномерно распределяет нагрузку.
  • Наружные и внутренние стены из газобетона. Этот материал сочетает лёгкость, прочность и отличные теплоизоляционные свойства.
  • Толщина несущих стен - 400 мм, перегородок -100 мм. Обеспечивает звукоизоляцию и безопасность.
  • Отделка облицовочным кирпичом придаёт дому респектабельный внешний вид и защищает стены от внешних воздействий.

4. Функциональность, которая радует

Особенность этого проекта - баланс между зонированием и открытостью:

  • Кухня-гостиная становится центром семейной жизни, где легко организовать как тихие вечера, так и шумные праздники.
  • Терраса расширяет жилое пространство в тёплое время года - здесь можно обустроить зону барбекю или летний кабинет.
  • Гардеробные и кладовая освобождают жилые комнаты от хранения, поддерживая порядок.
  • Котельная расположена компактно, но с учётом всех норм безопасности.

5. Для кого этот дом?

Этот проект подойдёт:

  • семьям с детьми, которые ценят безопасность и удобство;
  • тем, кто хочет избежать лестниц и многоуровневых конструкций;
  • любителям просторных кухонь-гостиных, где собирается вся семья;
  • тем, кто ценит продуманность деталей и рациональное использование площади.

Итог

Проект от ПСК «Градиент» система жизненного пространства, где каждая деталь работает на ваш комфорт. Здесь вы найдёте баланс между функциональностью, эстетикой и практичностью.

Хотите воплотить эту мечту в реальность? Свяжитесь с нами - поможем адаптировать проект под ваши пожелания и начать строительство! 🏘️