Найти в Дзене
Красота в деталях

Планировочное решение спальни

Когда мы проектируем спальню, важно сразу отказаться от идеи «универсального правильного варианта». Одна и та же комната может работать по-разному — в зависимости от того, какие сценарии в ней будут жить каждый день. В этих планировках одна база — спальня для женщины с кроватью, мини-диваном и рабочим местом у окна — но разные акценты и приоритеты. В первом варианте планировки упор сделан на максимальное хранение и визуальный порядок. Кровать расположена компактно, рядом организованы закрытые гардеробные секции с зонами для бытовых вещей — пылесоса, гладильной и сушильной доски. За счёт этого комната берёт на себя часть функций гардероба, которые часто находятся по квартире. Мини-диван здесь работает как дополнительное место отдыха (и спальное место для гостей) и не конфликтует с зоной сна, а планировка остаётся собранной и функциональной. Во втором варианте появляется чётко выраженная рабочая зона у окна. Стол и стул расположены так, чтобы дневной свет использовался максимально эффек

Когда мы проектируем спальню, важно сразу отказаться от идеи «универсального правильного варианта». Одна и та же комната может работать по-разному — в зависимости от того, какие сценарии в ней будут жить каждый день. В этих планировках одна база — спальня для женщины с кроватью, мини-диваном и рабочим местом у окна — но разные акценты и приоритеты.

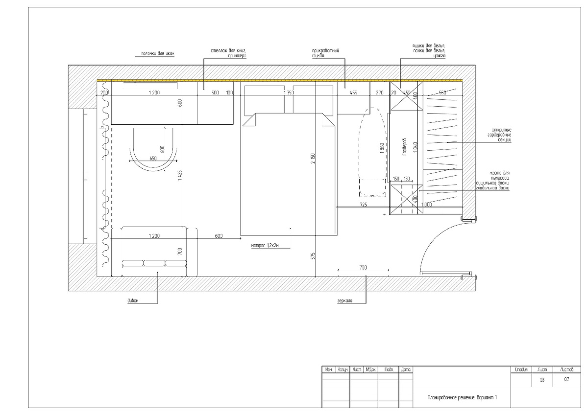
Вариант 1
Вариант 1

В первом варианте планировки упор сделан на максимальное хранение и визуальный порядок. Кровать расположена компактно, рядом организованы закрытые гардеробные секции с зонами для бытовых вещей — пылесоса, гладильной и сушильной доски. За счёт этого комната берёт на себя часть функций гардероба, которые часто находятся по квартире. Мини-диван здесь работает как дополнительное место отдыха (и спальное место для гостей) и не конфликтует с зоной сна, а планировка остаётся собранной и функциональной.

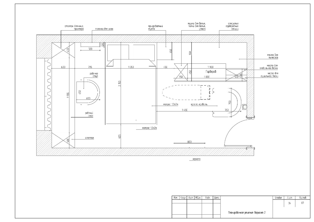
Вариант 2
Вариант 2

Во втором варианте появляется чётко выраженная рабочая зона у окна. Стол и стул расположены так, чтобы дневной свет использовался максимально эффективно, при этом рабочее место не пересекается с зоной отдыха. Кровать и кресло-кровать дают гибкость сценариев: спальня легко адаптируется под день, вечер и при необходимости — под гостевой режим. Хранение распределено равномерно, без перегрузки одной стены, за счёт чего пространство воспринимается легче.

Вариант 3
Вариант 3

Третий вариант более камерный и спокойный. Здесь меньше активных элементов, зато больше ощущения личного пространства. Мини-диван заменён креслом-кроватью и пуфом, что делает комнату визуально мягче. Зона хранения остаётся вместительной, но уходит на второй план, не перетягивая внимание. Такой вариант подойдёт тем, кому важно ощущение уединения и минимального визуального шума.

Вариант 4
Вариант 4

В четвёртой планировке акцент сделан на простоту и прямолинейность. Кровать, прикроватная зона и хранение выстроены максимально логично, без сложных переходов. Это решение удобно в повседневной эксплуатации: всё читается сразу, нет лишних маршрутов и «пустых» углов. Комната работает стабильно и предсказуемо — именно этого часто ждут от спальни.

Вариант 5
Вариант 5

Все варианты объединяет одно: пространство заранее продумано под реальную жизнь, а не под красивую картинку. Здесь учитываются не только мебель и размеры, но и привычки, бытовые сценарии и то, как комната будет использоваться изо дня в день. Именно это и делает планировку по-настоящему удачной — когда она не требует объяснений и не нуждается в доработках после заселения.

Каждое пространство может быть идеальным — важно только подстроить его под себя. Напишите мне, и я создам планировку, которая будет работать именно для вас.

#интерьер #дизайнспальни #планировкаспальни #дизайнквартиры #планировка #интерьервквартире #полезноедлядома #лайфхакидлядома #организацияпространства #ремонт #советыпоинтерьеру