Найти в Дзене

Щит АВР: готовое решение или изготовление на заказ?

Система автоматического ввода резерва (АВР) — это не просто дополнительная опция, а стратегически важный элемент энергоснабжения любого ответственного объекта. От больницы и центра обработки данных до производственного цеха или коттеджного поселка — везде, где перерыв в питании грозит убытками, рисками для безопасности или просто дискомфортом, необходим надежный щит АВР. Когда перед заказчиком встает вопрос оснащения объекта такой системой, ключевая дилемма звучит так: купить типовой готовый щит АВР или заказать индивидуальное изготовление? На первый взгляд, готовое решение кажется быстрым и экономичным путем. Однако, как показывает многолетняя практика специалистов «НТК Приборэнерго», в 8 из 10 случаев проекты требуют индивидуального подхода. Неправильный выбор между «готовым» и «заказным» может привести не только к финансовым потерям, но и к фатальной неработоспособности системы в критический момент. В этой статье мы проведем детальное сравнение, разберем плюсы и минусы каждого подх
Оглавление

Система автоматического ввода резерва (АВР) — это не просто дополнительная опция, а стратегически важный элемент энергоснабжения любого ответственного объекта. От больницы и центра обработки данных до производственного цеха или коттеджного поселка — везде, где перерыв в питании грозит убытками, рисками для безопасности или просто дискомфортом, необходим надежный щит АВР. Когда перед заказчиком встает вопрос оснащения объекта такой системой, ключевая дилемма звучит так: купить типовой готовый щит АВР или заказать индивидуальное изготовление?

На первый взгляд, готовое решение кажется быстрым и экономичным путем. Однако, как показывает многолетняя практика специалистов «НТК Приборэнерго», в 8 из 10 случаев проекты требуют индивидуального подхода. Неправильный выбор между «готовым» и «заказным» может привести не только к финансовым потерям, но и к фатальной неработоспособности системы в критический момент. В этой статье мы проведем детальное сравнение, разберем плюсы и минусы каждого подхода и дадим четкие рекомендации, основанные на параметрах вашего объекта.

Готовые щиты АВР: стандарт под распространенные задачи

Готовые щиты АВР — это серийно выпускаемые устройства, разработанные под наиболее распространенные, типовые схемы электроснабжения. Их логика работы и комплектация унифицированы.

Типичные сценарии применения готовых решений:

  • Резервирование «сеть-генератор» для частных домов, небольших офисов, магазинов.
  • Переключение между двумя однотрансформаторными вводами с одинаковыми параметрами на небольших объектах.
  • Системы с минимальным набором функций: приоритет одного ввода, базовый контроль напряжения, задержки на переключение.

Преимущества готовых щитов АВР:

  1. Скорость приобретения: Изделие есть в наличии или на складе производителя. Поставка занимает минимум времени.
  2. Предсказуемая стоимость: Цена известна заранее и, как правило, ниже начальной стоимости индивидуального проекта за счет серийности.
  3. Проверенная схема: Используются обкатанные, надежные типовые схемы, что минимизирует риски ошибок в логике.
  4. Простота согласования: Для стандартных объектов не требуется углубленное проектирование.

Недостатки и ограничения готовых щитов:

  1. Жесткая конфигурация: Невозможно изменить компоновку, добавить нестандартные приборы учета, контроля или связи (GSM, Ethernet).
  2. «Подгонка» объекта под щит: Зачастую приходится мириться с неидеальным соответствием номиналов вводных аппаратов, количеством отходящих линий или способом управления.
  3. Проблемы с интеграцией: Сложно или невозможно интегрировать такой щит в существующую систему диспетчеризации (SCADA, BMS) из-за отсутствия нужных интерфейсов.
  4. Запас на будущее: Отсутствует резерв по мощности и модульности для расширения объекта.
  5. Риск несоответствия: Мощность, токи КЗ, тип коммутации (рубильник, контактор) могут не совпадать с реальными параметрами вашей сети.

Изготовление щитов АВР на заказ: точное соответствие вашим требованиям

Индивидуальное проектирование и изготовление — это процесс создания АВР «с нуля» под конкретные технические условия (ТУ) и задачи заказчика. Это не просто щит, а инженерное решение.

Когда изготовление на заказ — единственно правильный выбор:

  1. Сложные и ответственные объекты: Медицинские учреждения, ЦОДы, промышленные предприятия с непрерывным циклом работы.
  2. Нестандартные схемы: Резервирование от трех и более вводов, системы с ДГУ и ИБП (например, схема «сеть-генератор-ИБП»).
  3. Высокие требования к коммутации: Необходимость использования выкатных автоматических выключателей (автоматов в литом корпусе), специфические бренды аппаратуры.
  4. Интеграция и мониторинг: Требуется встроенная телеметрия, передача данных на диспетчерский пульт, управление по протоколам Modbus, Profibus, интеграция в «умный дом».
  5. Особые условия эксплуатации: Взрывоопасные зоны, улица (требуется высокая степень защиты IP65), помещения с агрессивной средой.
  6. Специфические алгоритмы: Сложные временные задержки, контроль качества энергии по многим параметрам, синхронизация генераторов.

Преимущества изготовления на заказ:

  1. 100% соответствие: Щит проектируется под вашу однолинейную схему, с вашими номиналами токов, аппаратурой и алгоритмами.
  2. Масштабируемость и резерв: Заранее закладывается резерв по модульности, мощности и коммуникациям для будущей модернизации.
  3. Оптимизация цены в долгосрочной перспективе: Исключаются затраты на доработки, дополнительные модули и устранение несовместимостей.
  4. Повышенная надежность: Подбор компонентов отталкивается от реальных условий эксплуатации и нагрузок, а не от усредненных параметров.
  5. Полная интеграция: Возможность бесшовного встраивания в существующую инфраструктуру объекта.
  6. Уникальная компоновка: Удобное расположение аппаратуры, индикации и органов управления, учитывающее особенности монтажа и обслуживания.

Что можно считать условным «недостатком» заказа:

  • Более длительные сроки: Требуется время на проектирование, согласование, изготовление и испытания.
  • Более высокая начальная стоимость: Цена за работу инженеров и индивидуальную сборку.

Однако, эти факторы являются не недостатками, а платой за точность, надежность и долгосрочную экономию.

Сравнение: Готовый АВР vs АВР на заказ

Готовое (типовое) решение

  • Срок получения: Дни (со склада)
  • Стоимость: Фиксированная, ниже
  • Гибкость: Низкая, подбор под готовое
  • Интеграция: Минимальная или отсутствует
  • Надежность: Достаточная для простых задач
  • Масштабируемость: Отсутствует
  • Идеальный объект: Коттедж, маленький магазин, офис

Изготовление на заказ

  • Срок получения: Недели (зависит от сложности)
  • Стоимость: Индивидуальная, выше (но окупается)
  • Гибкость: Абсолютная, под требования ТЗ
  • Интеграция: Полная, любые интерфейсы
  • Надежность: Максимальная, под конкретные условия
  • Масштабируемость: Заложена изначально
  • Идеальный объект: Промышленность, медцентры, ЦОДы, сетевые объекты

Как сделать правильный выбор? Алгоритм от НТК «Приборэнерго»

  1. Соберите исходные данные: Однолинейная схема электроснабжения, мощности нагрузок, типы вводов (воздушная линия, кабель), наличие и тип генератора.
  2. Сформулируйте требования: Что должно происходить при пропадании сети? Какие нагрузки критичны? Нужен ли удаленный мониторинг? Планируется ли расширение?
  3. Обратитесь к профессионалам: Пришлите эти данные в НТК «Приборэнерго». Инженеры бесплатно проанализируют их и дадут аргументированную рекомендацию.

Готовое решение — это выбор в пользу скорости для простых, типовых задач. Изготовление на заказ — это стратегическое вложение в надежность, безопасность и бесперебойность работы сложного или критически важного объекта. Экономия на этапе проектирования и изготовления АВР может обернуться многократными потерями при его эксплуатации или, что хуже, в момент реального срабатывания.

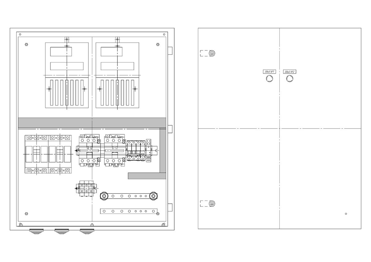
Пример схемы АВР производства «НТК Приборэнерго»
Пример схемы АВР производства «НТК Приборэнерго»

Купить щиты АВР от производителя НТК «Приборэнерго»

Сомневаетесь в выборе? Доверьте анализ профессионалам. «НТК Приборэнерго» — это не просто продавец, а производитель с полным циклом: от инженерной мысли до готового изделия на вашем объекте.

Почему заказывают у нас:

  • Объективная консультация: Мы не будем навязывать заказное решение, если вашу задачу решит типовой щит. И наоборот, честно предупредим о рисках использования готового АВР на сложном объекте.
  • Глубокий инжиниринг: Наши специалисты спроектируют систему, которая будет работать безотказно в рамках вашего бюджета.
  • Качественная сборка: Собственное производство, монтаж по стандартам, использование профессионального инструмента и проверенных компонентов.
  • Полный комплект документов: Паспорт, схемы, руководство по эксплуатации, сертификаты.
  • Гарантия и сервис: Официальная гарантия на изделие и работы. Возможность заключения договора на техническое обслуживание.

Не рискуйте бесперебойностью! Отправьте нам ваши требования или однолинейную схему — и мы подготовим оптимальное коммерческое предложение как на готовый, так и на заказной щит АВР, подробно обосновав наш выбор.

Свяжитесь с НТК «Приборэнерго» сегодня и получите надежную защиту от перебоев в электроснабжении уже завтра.