Добавить в корзинуПозвонить
Найти в Дзене
GREY HOUSE

Строительство каркасного энергоэффективного дома Химос

Строительство каркасного дома по проекту «Химос» началось в СНТ «Изумруд» Компания Grey House приступила к возведению современного каркасного дома в СНТ «Изумруд», расположенном в Ногинском районе Московской области. Проект «Химос» с двумя спальнями сочетает в себе продуманную планировку, энергоэффективные технологии и высококачественные материалы. Размеры здания составляют 12×8,5 м, что позволяет разместить все необходимые помещения для комфортного проживания семьи: - Просторная кухня-гостиная – объединённое пространство для приготовления пищи, семейных обедов и приёма гостей. - Две отдельные спальни – каждая с оптимальным метражом для размещения кроватей и гардеробных систем. - Санузел и тамбур – функциональные зоны, обеспечивающие удобство повседневного использования. - Техническое помещение – дополнительные пространство для хранения и размещения инженерного оборудования. - Гардеробная – дополнительное место для хранения всего самого необходимого. Сейчас бригада монтирует фасад до
Оглавление

Строительство каркасного дома по проекту «Химос» началось в СНТ «Изумруд»

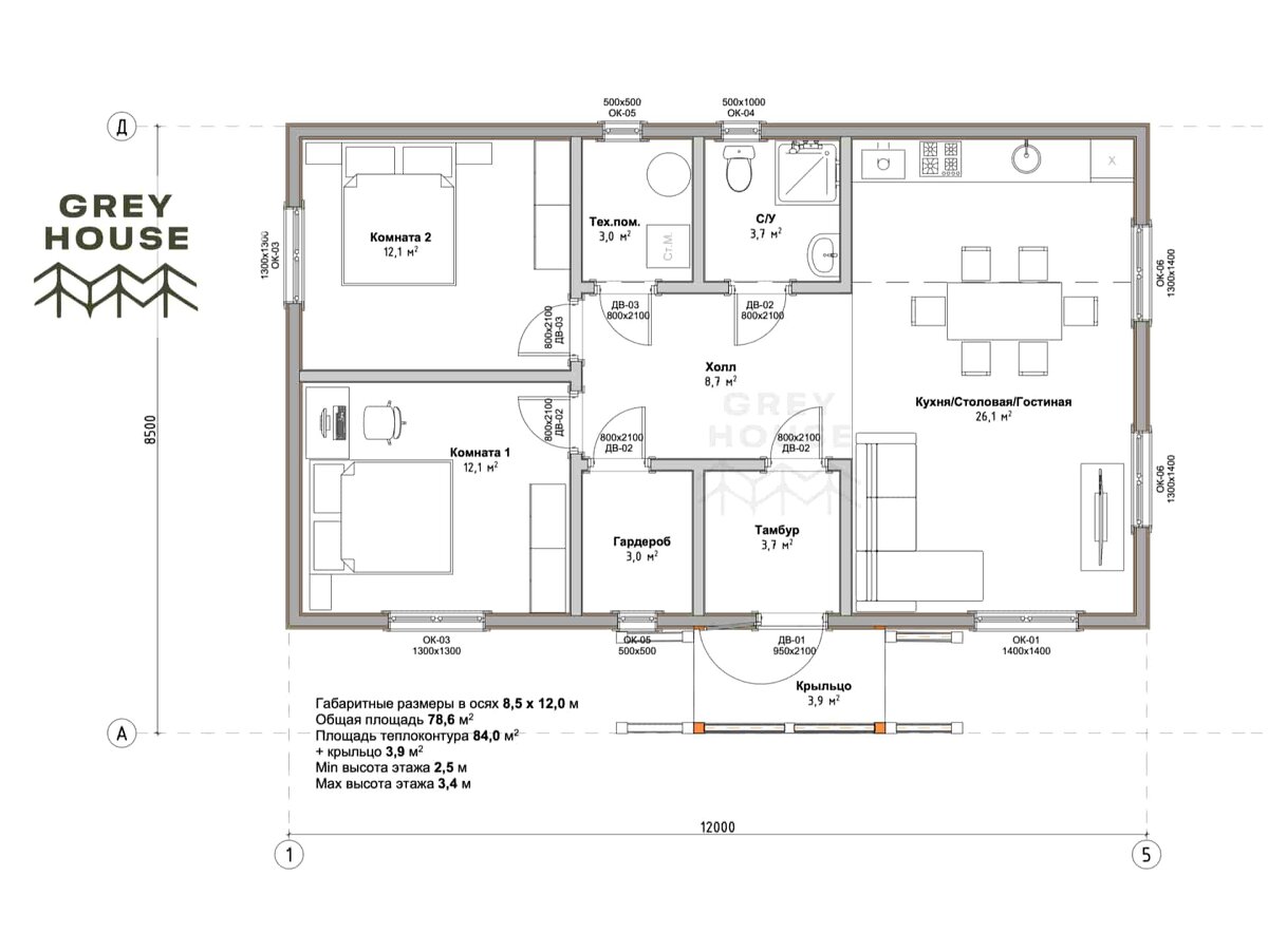
Компания Grey House приступила к возведению современного каркасного дома в СНТ «Изумруд», расположенном в Ногинском районе Московской области. Проект «Химос» с двумя спальнями сочетает в себе продуманную планировку, энергоэффективные технологии и высококачественные материалы.

Планировка и площадь дома

-2

Размеры здания составляют 12×8,5 м, что позволяет разместить все необходимые помещения для комфортного проживания семьи:

- Просторная кухня-гостиная – объединённое пространство для приготовления пищи, семейных обедов и приёма гостей.

- Две отдельные спальни – каждая с оптимальным метражом для размещения кроватей и гардеробных систем.

- Санузел и тамбур – функциональные зоны, обеспечивающие удобство повседневного использования.

- Техническое помещение – дополнительные пространство для хранения и размещения инженерного оборудования.

- Гардеробная – дополнительное место для хранения всего самого необходимого.

Фотоотчет с объекта

Монтаж фундамента
Монтаж фундамента
Обвязка фундамента и монтаж чернового пола
Обвязка фундамента и монтаж чернового пола
Монтаж защитной сетки от грызунов
Монтаж защитной сетки от грызунов
Монтаж ветрозащитной мембраны и нулевого перекрытия
Монтаж ветрозащитной мембраны и нулевого перекрытия
Строительство каркаса дома
Строительство каркаса дома
Строительство каркаса дома
Строительство каркаса дома
Строительство каркаса дома
Строительство каркаса дома
Строительство каркаса дома
Строительство каркаса дома
Монтаж стропильной системы
Монтаж стропильной системы
Монтаж стропильной системы
Монтаж стропильной системы
Монтаж стропильной системы
Монтаж стропильной системы
Монтаж стропильной системы
Монтаж стропильной системы
Утепление кровли, монтаж обрешетки и контробрешетки
Утепление кровли, монтаж обрешетки и контробрешетки
Утепление дома, монтаж ветрозащитной мембраны
Утепление дома, монтаж ветрозащитной мембраны
Утепление дома, монтаж ветрозащитной мембраны
Утепление дома, монтаж ветрозащитной мембраны
Монтаж ветрозащитной мембраны
Монтаж ветрозащитной мембраны
Монтаж ветрозащитной мембраны
Монтаж ветрозащитной мембраны
Монтаж ветрозащитной мембраны
Монтаж ветрозащитной мембраны

Сейчас бригада монтирует фасад дома и накрывает кровлю.

Ключевые особенности строительства и комплектации

Дом возводится с применением современных технологий и проверенных материалов, обеспечивающих долговечность и энергоэффективность:

  • Фундамент: свайно-ростверковый (бетонные сваи 150×150×3000 мм, обвязка брусом 150×150 мм)
  • Каркас: строганая доска камерной сушки 35х95-145-195 мм
  • Утепление: Базальтовый утеплитель (пол, кровля и стены – 200 мм/перегородки - 100 мм), ветро- и пароизоляция (Jutavek, Ютафол)
  • Кровля: металлочерепица 0,45 мм с системой снегозадержания Grandline
  • Фасад: фиброцементный сайдинг CLADDIT
  • Отделка внутри: стены -  Имитация бруса 16 мм, пол – OSB 18 мм по обрешетке 25х100 мм
  • Окна: ПВХ Rehau (70 мм, двойной стеклопакет)
  • Коммуникации: водоснабжение, канализация, вентиляция
  • Отопление: нет
  • Терраса: настил из лиственницы 28 мм, ступени с поручнями
  • Отделка цоколя: цокольные панели

Преимущества проекта

- Энергоэффективность – качественное утепление и современные окна снижают теплопотери.

- Продуманная планировка – оптимальное зонирование для комфортного проживания.

- Долговечные материалы – использование сухого строганого бруса, металлочерепицы и современный премиальный фасад.

Как заказать аналогичный проект?

Компания Grey House специализируется на строительстве каркасных домов в Москве и Московской области. Если вас заинтересовал этот проект, вы можете:

- Узнать стоимость строительства под ключ.

- Заказать индивидуальную адаптацию планировки.

- Выбрать альтернативные варианты отделки и комплектации.

Контакты для связи:

- Телефон: 8 (495) 504-71-33

- Подробнее о проектах: Grey House

Этот дом – отличное решение для тех, кто ценит качество, скорость строительства и комфорт загородной жизни. Следите за ходом строительства в нашем блоге!