Найти в Дзене

В этом доме нет гостиной 😲

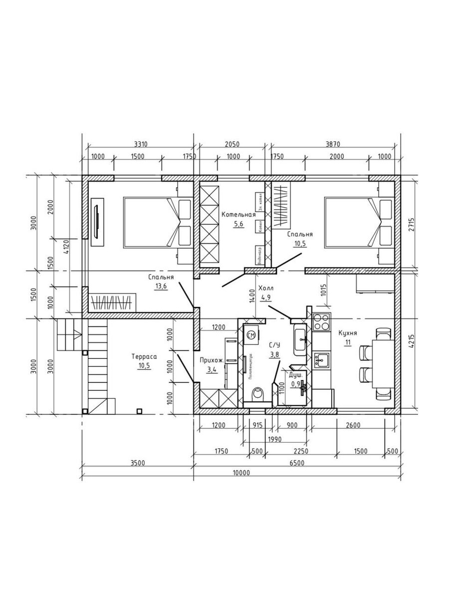
И мы были очень удивлены, когда поняли, что такое решение может вызвать интерес. Оказывается не всем в доме нужно это помещение! 🧐 👆🏻 Планировку прикладываю и делюсь свежими кадрами с объекта 📍 в деревне Труфановка в Одинцовском районе. Работаем здесь без перерывов с осени. Строим дом по индивидуальному проекту 7,5×10 м с полноценным чердачным помещением. ✔️ Большая часть отделочных работ уже выполнена: разведены инженерные коммуникации и электрика, смонтированы и обшиты межкомнатные каркасные перегородки, подшит потолок, установлено оборудование в котельной. Осталось уложить напольное покрытие, завершить работы в санузле и установить межкомнатные двери.  👉🏻 Собирала дом бригада Артёма Царегородцева, а за все отделочные работы отвечает бригада Евгения Жидкова 😎

И мы были очень удивлены, когда поняли, что такое решение может вызвать интерес. Оказывается не всем в доме нужно это помещение! 🧐

-2

👆🏻 Планировку прикладываю и делюсь свежими кадрами с объекта 📍 в деревне Труфановка в Одинцовском районе. Работаем здесь без перерывов с осени. Строим дом по индивидуальному проекту 7,5×10 м с полноценным чердачным помещением.

-3

-4

-5

✔️ Большая часть отделочных работ уже выполнена: разведены инженерные коммуникации и электрика, смонтированы и обшиты межкомнатные каркасные перегородки, подшит потолок, установлено оборудование в котельной. Осталось уложить напольное покрытие, завершить работы в санузле и установить межкомнатные двери. 

-6

-7

-8

-9

👉🏻 Собирала дом бригада Артёма Царегородцева, а за все отделочные работы отвечает бригада Евгения Жидкова 😎