Добавить в корзинуПозвонить
Найти в Дзене
DIVAN.RU

Окно в сказку: яркий дизайн и эклектика на 43 кв.м в типовой «брежневке»

Глубокие оттенки изумруда и бордо в квартире с низкими потолками. Масса открытого хранения. Яркие выкрасы, колор-блоки и эклектика. Как «подружили» эти дизайн-приемы в обычной «брежневке» — увидим прямо сейчас. Заказчица обратилась к нам с просьбой спроектировать квартиру, в которой будет жить она сама вместе с пушистым котиком. Стилистически и эстетически ей близок минимализм, а в процессе беседы мы выяснили, что заказчице нравятся темные насыщенные оттенки и открытые системы хранения Изначально квартира была стандартной для «брежневки»: комнаты 17 и 11 кв.м, кухня 5 кв.м, прихожая, раздельный санузел. В ходе перепланировки была убрана ненесущая перегородка между гостиной и коридором, создана ниша для хранения одежды и обуви у входа. Часть спальни (3.5 кв.м) выделили под гардеробную. Мокрые зоны и кухня остались без изменений. Мы ценим работу со старым фондом, сохраняя исторические детали в современных интерьерах, — отмечают дизайнеры. — В этом проекте отреставрированы чугунные батаре
Оглавление

Глубокие оттенки изумруда и бордо в квартире с низкими потолками. Масса открытого хранения. Яркие выкрасы, колор-блоки и эклектика. Как «подружили» эти дизайн-приемы в обычной «брежневке» — увидим прямо сейчас.

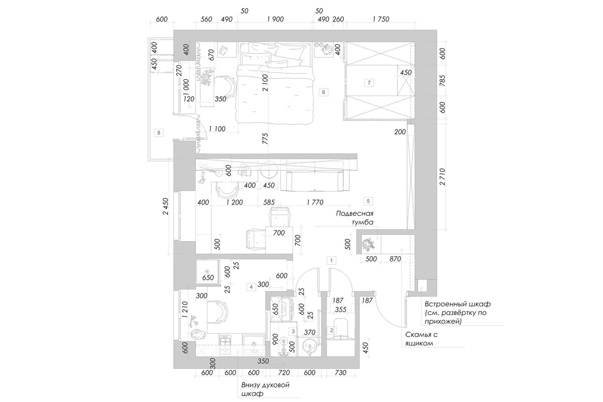
  • Объект: двухкомнатная квартира 43 кв.м в доме 1965 года постройки, ул. Бутырская, г. Москва (потолки 2,5 м)
  • Авторы проекта: архитекторы Екатерина Любимкина, Антон Любимкин, Ядкар Черниговский, менеджер проекта Екатерина Малютина, декоратор Екатерина Шаповалова, архитектурное бюро Carton group, автор съемки: Евгений Кулибаба
  • Бюджет проекта: 6,5 млн рублей
Заказчица обратилась к нам с просьбой спроектировать квартиру, в которой будет жить она сама вместе с пушистым котиком. Стилистически и эстетически ей близок минимализм, а в процессе беседы мы выяснили, что заказчице нравятся темные насыщенные оттенки и открытые системы хранения

Планировочное решение

Изначально квартира была стандартной для «брежневки»: комнаты 17 и 11 кв.м, кухня 5 кв.м, прихожая, раздельный санузел. В ходе перепланировки была убрана ненесущая перегородка между гостиной и коридором, создана ниша для хранения одежды и обуви у входа. Часть спальни (3.5 кв.м) выделили под гардеробную. Мокрые зоны и кухня остались без изменений.

Мы ценим работу со старым фондом, сохраняя исторические детали в современных интерьерах, — отмечают дизайнеры. — В этом проекте отреставрированы чугунные батареи и полотенцесушитель, а также воссоздано историческое окошко в ванной, которое было заделано в одном из предыдущих ремонтов.

Гостиная

Гостиная в квартире выполняет двойную функцию: служит для отдыха и работы. Столешница, встроенная в подоконник, оснащена ящиками для хранения.

Напротив окна — стеллаж для книжной коллекции заказчицы во всю стену. Полки над диваном, стилистически связанные со стеллажом, имеют асимметричное расположение открытых секций и создают ритмичный узор.

Диван Динс Мини — один из наших фаворитов в каталоге divan.ru. Он идеально подходит для небольших помещений. А широкий выбор обивочных материалов позволяет воплотить любые дизайнерские идеи.
-4

➡️ Товары бренда divan.ru

Также для гостиной мы приобрели компактный стол Авалон от divan.ru. Стулья Морис сделаны из практичного пластика, устойчивого к кошачьим когтям. Стулья удобно складываются, легкие и практичные.
-5

Спальня

Основной цвет спальни — насыщенный ягодный, который гармонично сочетается с изумрудным изголовьем кровати. В интерьере присутствуют латунные детали и мягкий текстиль. Гардеробную отделили от спальни портьерами и предусмотрели дополнительное внутреннее освещение.

Кровать Пайл идеально вписывается в современный, яркий, но не кричащий интерьер. На divan.ru мы нашли подходящий пуф и заказали для него обивку в той же ткани, что и кровать. Очень удобно, что у них можно подобрать одинаковую ткань для разных предметов мебели.

➡️ Товары бренда divan.ru

Обратите внимание: картина над кроватью была выбрана для интеграции с зеркалом. Зеркало, расположенное в соответствии с принципами Васту, служит для улучшения энергетики спальни, создавая иллюзию окна в «сказочный мир».

Кухня

Рифленое стекло подвесных модулей облегчает уборку на кухня и поддерживает идею визуальной легкости. Кухня оснащена полным набором техники: холодильник, газовая панель, вытяжка, духовка-микроволновка. Подоконник из ЛДСП продолжили столешницей, создав барную стойку. Холодильник интегрировали в пенал справа от окна, что обеспечило опору увеличенному подоконнику.

Обратите внимание: во время ремонта восстановили кухонную фрамугу в ванную, вернув дневной свет в мокрую зону.

Ванная комната и туалет

Стены в ванной и туалете окрашены влагостойкой изумрудной краской. Душевая зона облицована белой плиткой под кирпич. Для хранения предусмотрены подвесная тумба в ванной и закрытый шкаф над инсталляцией в туалете. Черные смесители и темные акценты придают интерьеру завершенность.

Прихожая

Чтобы не «рассеивать» вещи по квартире, основное хранение организовали в гардеробной при спальне, а повседневную одежду — на вешале в прихожей.

Сочетание деревянных панелей и белых стен добавляет света во входную зону, перетекающую в гостиную.
-9

💥Покупайте в divan.ru со скидкой 50%, и на всю сумму применяйте промокод: -5000₽ на заказ от 75 000₽ с DARIM5 | -15 000₽ на заказ от 150 000₽ с DARIM15

-10

============================

Оцените интерьер в комментариях, а если материал понравился — не забудьте поставить лайк👍

🖤divan.ru — не только блог про интерьеры, но и производитель доступной дизайнерской мебели. Ищите новые идеи и переходите на сайт, чтобы воплотить их в жизнь.

*Цены указаны на момент публикации