Добавить в корзинуПозвонить
Найти в Дзене

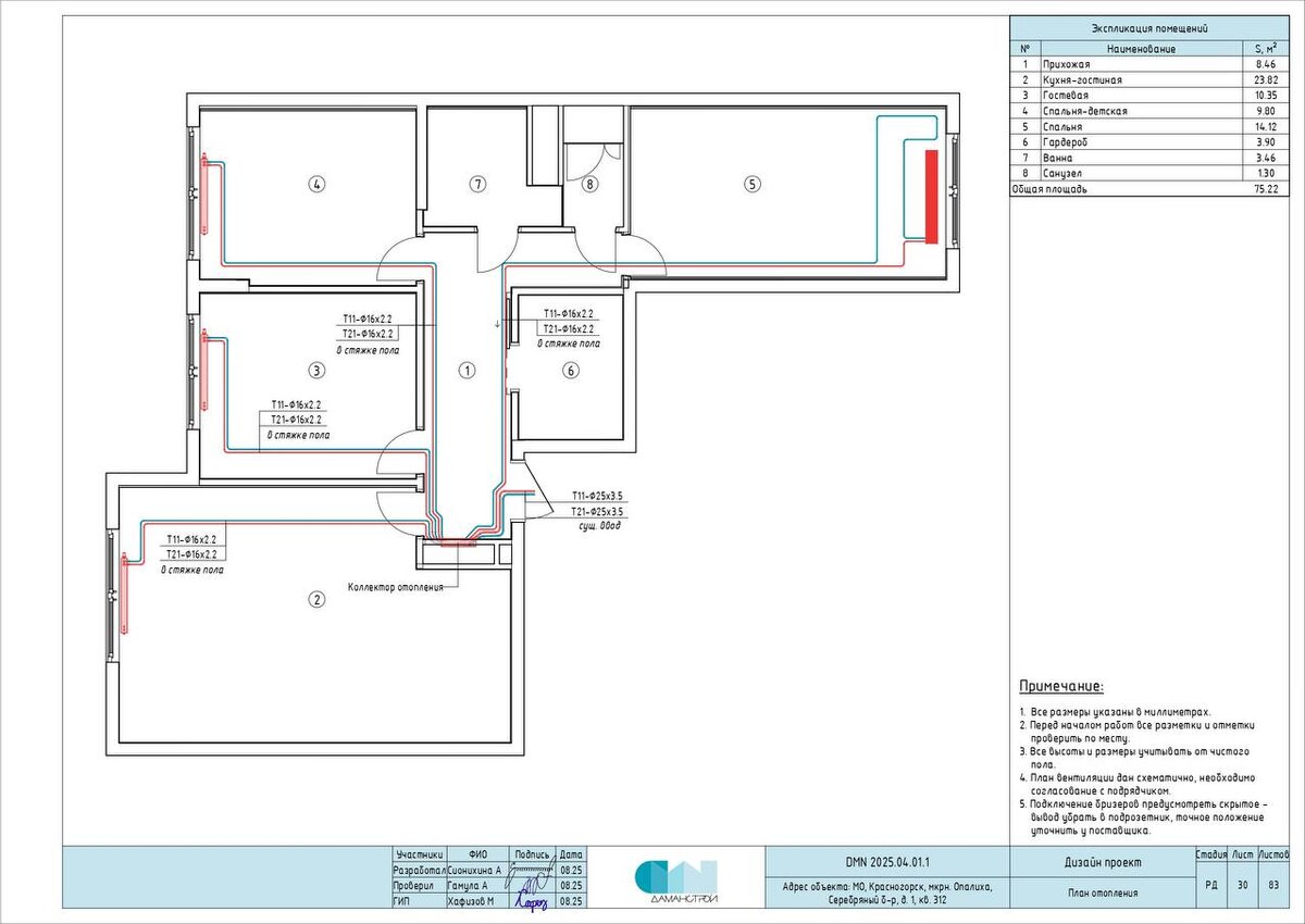
🌡 План отопления

🌡 План отопления Когда радиатор стоит не там или батареи не хватает, в квартире холодно и неуютно. 📑 План отопления фиксирует: • где будут радиаторы и конвекторы, • схему разводки труб, • регулировку мощности. Зачем это нужно? • В каждой комнате тепло и комфортно. • Система работает без сбоев. • Рабочие знают, как правильно проложить трубы. 👉 Тепло в квартире — это всегда заранее спроектированная система. #ремонтподключ #ремонт #дизайнпроект #интерьер #советыдизайнера

🌡 План отопления

Когда радиатор стоит не там или батареи не хватает, в квартире холодно и неуютно.

📑 План отопления фиксирует:

• где будут радиаторы и конвекторы,

• схему разводки труб,

• регулировку мощности.

Зачем это нужно?

• В каждой комнате тепло и комфортно.

• Система работает без сбоев.

• Рабочие знают, как правильно проложить трубы.

👉 Тепло в квартире — это всегда заранее спроектированная система.

#ремонтподключ #ремонт #дизайнпроект #интерьер #советыдизайнера

-2