Найти в Дзене
DIVAN.RU

Где живет вдохновение: солнечная студия 38 кв.м в Минске

Интерьер этой студии буквально создан для вдохновения и отдыха. Теплые тона, тактильно приятные текстуры и безупречный дизайн — все здесь работает на комфорт, располагает к творчеству или полному расслаблению. Посмотрим на проект ближе. «Эта квартира находится в элитном жилом комплексе, — рассказывает дизайнер. — Заказчики пришли ко мне с запросом на нейтральный, сдержанный интерьер, но с акцентом на выразительные детали. Главная цель — создать своего рода уютное гнездышко. Важно, чтобы возвращение домой после работы приносило удовольствие». Квартира сдавалась с открытой планировкой. Приоритетом для заказчиков была изолированная спальня. Комната отдыха получилась компактной, рядом — просторная гардеробная. Также предусмотрены кухня-гостиная, прихожая и совмещенный санузел. Гарнитур заказали по индивидуальному проекту, что позволило адаптировать его к особенностям планировки и максимально эффективно использовать пространство. Фартук и верхние фасады выполнены в близких оттенках, но с ра
Оглавление

Интерьер этой студии буквально создан для вдохновения и отдыха. Теплые тона, тактильно приятные текстуры и безупречный дизайн — все здесь работает на комфорт, располагает к творчеству или полному расслаблению. Посмотрим на проект ближе.

  • Объект: студия 38 кв.м в ЖК «Северный Берег, г. Минск (потолки 2,7 м)
  • Автор проекта: дизайнер Татьяна Воробьева, автор фото Катя Самойлович

«Эта квартира находится в элитном жилом комплексе, — рассказывает дизайнер. — Заказчики пришли ко мне с запросом на нейтральный, сдержанный интерьер, но с акцентом на выразительные детали. Главная цель — создать своего рода уютное гнездышко. Важно, чтобы возвращение домой после работы приносило удовольствие».

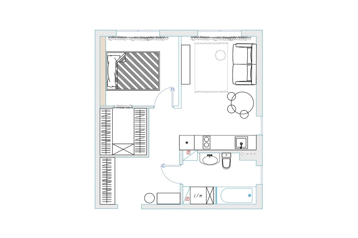
Планировочное решение

Квартира сдавалась с открытой планировкой. Приоритетом для заказчиков была изолированная спальня. Комната отдыха получилась компактной, рядом — просторная гардеробная. Также предусмотрены кухня-гостиная, прихожая и совмещенный санузел.

Планировочное решение и расстановка мебели
Планировочное решение и расстановка мебели

Кухня-гостиная

Гарнитур заказали по индивидуальному проекту, что позволило адаптировать его к особенностям планировки и максимально эффективно использовать пространство. Фартук и верхние фасады выполнены в близких оттенках, но с разной фактурой. Такое единство создает эффект цельного «полотна» — не дробит пространство, а, наоборот, объединяет его.

Обратите внимание: нижние части кухонного гарнитура выполнены из ЛДСП с имитацией древесной фактуры. Дизайнер считает, что «натуральный» узор придает интерьеру тепло и уют. Сочетание различных текстур — ДСП, глянцевой плитки и матовой пленки — создает интересную игру.

Для обеденной группы выбрали кухонный стол Крит, пару стульев Элвуд и акцентный светильник Малинг. Все предметы заказали у бренда divan.ru, который продает дизайнерскую мебель для реальной жизни.

➡️Товары бренда divan.ru

Гостиная оформлена в нейтральной палитре, с акцентами на ковре с цветочным принтом и яркой картине. Мебель, напротив, представлена в бежевых тонах: диван и столик Ньюман от divan.ru.

Гостиная имеет выход на балкон. Яркими деталями интерьера служат стулья Филлис и журнальный стол Франс. Эти предметы из коллекции indoor-outdoor идеально подходят как для открытых пространств, так и для использования внутри дома.

➡️Товары бренда divan.ru

Спальня

В квартире организовали изолированную спальню с большим окном, где центральным элементом стала кровать без изголовья Дарлайн от divan.ru.

➡️Товары бренда divan.by

Обратите внимание на изголовье кровати из глянцевой керамической плитки. «Это практичное решение: плитка долговечна, устойчива к пятнам и не подвержена износу, в отличие от текстиля, — делится дизайнер. — Конструкция изголовья также создает удобную полку для декора, растений или книг. Глянцевая поверхность эффектно отражает свет из окна и светильников». Завершает композицию над изголовьем обои с узнаваемым мотивом «Цветущий миндаль» Ван Гога.

Прихожая

Прихожая в светлых тонах, со встроенным шкафом для одежды нейтрального цвета.

«Использование цвета и акцентов через искусство — эффективный дизайнерский ход. Яркая, сочная картина в прихожей создает атмосферу лета, отдыха и загородных поездок. Она радушно встречает всех входящих», — отмечает дизайнер.

➡️Товары бренда divan.by

Санузел

Это пространство с выразительными акцентами: большое окно, «ажурный» пол, живые растения. Для хранения вещей есть зеркальный шкаф над раковиной. Также имеется встроенный шкаф для стиральной машины и бытовых принадлежностей.

❄️ Заморозили цены до 13.01 и дарим скидки до 50%. Успейте купить мебель и интерьерные аксессуары с максимальной выгодой на divan.ru >>

-9

============================

Оцените интерьер в комментариях, а если материал понравился — не забудьте поставить лайк👍

🖤divan.ru — не только блог про интерьеры, но и производитель доступной дизайнерской мебели. Ищите новые идеи и переходите на сайт, чтобы воплотить их в жизнь.

*Цены указаны на момент публикации