Добавить в корзинуПозвонить
Найти в Дзене
DIVAN.RU

Небанальная студия 24 кв.м: игра шоколадных оттенков и медовой теплоты

Шоколадный и горчично-медовый — основные цвета этого интерьера. Выбор палитры был обусловлен существующим цветом пола. Дизайнер Нина Симонова создала эффект «коробочки», используя близкие оттенки для стен и потолка, и добавила яркие акценты. Заглянем в гости. Планировка от застройщика была сохранена, мокрые зоны остались на своих моих. Студия зонирована на кухню, спальню, столовую-гостиную, место для хранения и ТВ-зону. На балконе обустроена зона отдыха, санузел совмещенный. Фасады гарнитура заказали в двух оттенках: верхние — в глубоком шоколадном (в тон стен), а нижние — в белом. Кухня оснащена компактным холодильником, встроенной посудомоечной машиной, индукционной плитой на две конфорки и вытяжкой. В навесных шкафах спрятана микроволновая печь. Обратите внимание: в дизайне интерьера воссоздана атмосфера Петербурга. Элементы декора создают нужное настроение. Плитка на кухонном фартуке имитирует рисунки парадных Санкт-Петербурга. Своды стеллажа Драммен от divan.ru — это отсылка к пет
Оглавление

Шоколадный и горчично-медовый основные цвета этого интерьера. Выбор палитры был обусловлен существующим цветом пола. Дизайнер Нина Симонова создала эффект «коробочки», используя близкие оттенки для стен и потолка, и добавила яркие акценты. Заглянем в гости.

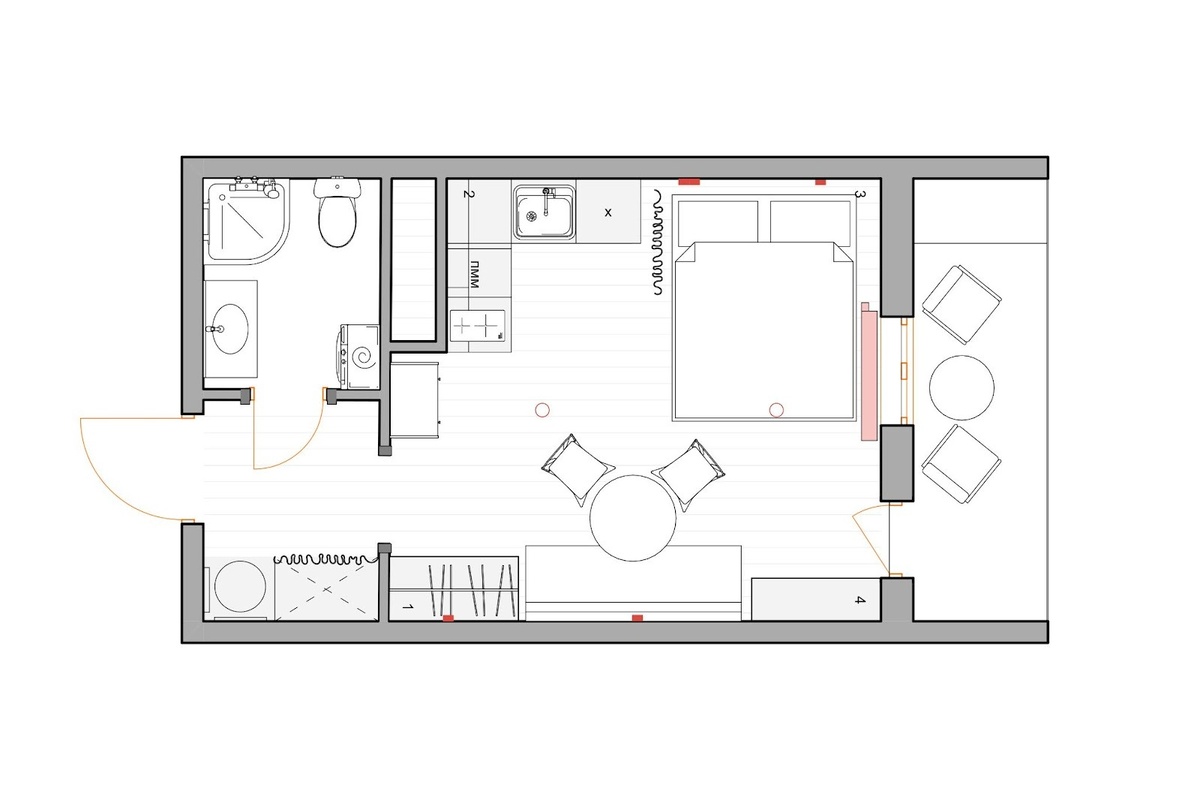
  • Объект: студия 24,4 кв.м, г. Санкт-Петербург (потолки 2,6 м)
  • Автор проекта: дизайнер Нина Симонова, автор фото Анна Скударь
  • Бюджет: 850 тысяч рублей

Пожелания заказчиков

  • Уникальный дизайн квартиры, отличающийся от стандартных «бежевых» решений.
  • Комфортное спальное место.
  • Максимум хранения на малой площади.

Планировочное решение

Планировка от застройщика была сохранена, мокрые зоны остались на своих моих. Студия зонирована на кухню, спальню, столовую-гостиную, место для хранения и ТВ-зону. На балконе обустроена зона отдыха, санузел совмещенный.

Планировочное решение и расстановка мебели
Планировочное решение и расстановка мебели

Кухня

Фасады гарнитура заказали в двух оттенках: верхние — в глубоком шоколадном (в тон стен), а нижние — в белом. Кухня оснащена компактным холодильником, встроенной посудомоечной машиной, индукционной плитой на две конфорки и вытяжкой. В навесных шкафах спрятана микроволновая печь.

Обратите внимание: в дизайне интерьера воссоздана атмосфера Петербурга. Элементы декора создают нужное настроение. Плитка на кухонном фартуке имитирует рисунки парадных Санкт-Петербурга.

Своды стеллажа Драммен от divan.ru — это отсылка к петербургским аркам старых дворов, придающая интерьеру исторический колорит и глубину. Они словно «оживляют» пространство, напоминая о прошлом города.
-4

➡️Товары бренда divan.ru

Обеденная зона и гостиная

Напротив кухни — зона отдыха с кушеткой, столом и ТВ-тумбой, все от divan.ru.

Вместо кухонного дивана выбрали кушетку Роби от divan.ru, которая при необходимости трансформируется в одно- или двуспальное место. ТВ-тумба Селтик сочетается с темными стенами и выполняет функции тумбы и открытого стеллажа.
-5

➡️Товары бренда divan.ru

Спальня

Спальную зону отделили, соорудив изголовье из шторы. Это простое решение позволило зонировать пространство без перегородок. Кровать Амьен от divan.ru выглядит невесомой благодаря тонким ножкам и низкому изголовью.

-6

➡️Товары бренда divan.ru

Обратите внимание: на стене между окном и балконной дверью — постеры с видами Петербурга.

-7

Прихожая

Во входной зоне — мини-гардеробная за желтой шторой из текстиля. Для хранения вещей также служит шкаф, гармонирующий с оттенком стен.

Санузел

Санузел, отделанный застройщиком плиткой, решили обновить. Cтены облицевали экономичной ПВХ-плиткой поверх старой керамической, добавив аксессуары в интерьер.

🎄 Пока все охотятся за горошком для оливье, мы предлагаем поохотиться за выгодой до 50%. В 2026-ой — с новой мебелью по старым ценам от divan.ru >>

-10

============================

Оцените интерьер в комментариях, а если материал понравился — не забудьте поставить лайк👍

🖤divan.ru — не только блог про интерьеры, но и производитель доступной дизайнерской мебели. Ищите новые идеи и переходите на сайт, чтобы воплотить их в жизнь.

*Цены указаны на момент публикации