Найти Π² Π”Π·Π΅Π½Π΅

🏑 Π’Π΅ΠΏΠ»Ρ‹Π΅ ΠΈ соврСмСнныС Π΄ΠΎΠΌΠ°: 3 ΡƒΠ΄Π°Ρ‡Π½Ρ‹Π΅ ΠΏΠ»Π°Π½ΠΈΡ€ΠΎΠ²ΠΊΠΈ ΠΎΡ‚ 180 ΠΊΠ². ΠΌ. 🏑

Π’Β ΠΌΠΈΡ€Π΅, Π³Π΄Π΅ мы стрСмимся к максимальной эффСктивности ΠΈΒ ΠΊΠΎΠΌΡ„ΠΎΡ€Ρ‚Ρƒ, Π²Π°ΠΆΠ½Ρ‹ΠΌ вопросом становится Π²Ρ‹Π±ΠΎΡ€ идСального Π΄ΠΎΠΌΠ°. ΠœΡ‹Β ΠΏΡ€Π΅Π΄Π»Π°Π³Π°Π΅ΠΌ Π²Π°ΠΌ Π²Π·Π³Π»ΡΠ½ΡƒΡ‚ΡŒ Π½Π°Β Ρ‚Ρ€ΠΈ Π³ΠΎΡ‚ΠΎΠ²Ρ‹Ρ… ΠΏΡ€ΠΎΠ΅ΠΊΡ‚Π° ΠΎΠ±Ρ‰Π΅ΠΉ ΠΏΠ»ΠΎΡ‰Π°Π΄ΡŒΡŽ ΠΎΡ‚Β 180 ΠΊΠ².Β ΠΌ., Π³Π΄Π΅ ΠΊΠ°ΠΆΠ΄Ρ‹ΠΉ ΠΌΠ΅Ρ‚Ρ€ пространства прСвращаСтся Π²Β ΡƒΡŽΡ‚ ΠΈΒ Ρ‚Π΅ΠΏΠ»ΠΎ. Разработанная докумСнтация обСспСчиваСт Ρ‚Π΅ΠΏΠ»ΠΎΠ·Π°Ρ‰ΠΈΡ‚Ρƒ, отсутствиС мостиков Ρ…ΠΎΠ»ΠΎΠ΄Π° ΠΈΒ ΡΠ½Π΅Ρ€Π³ΠΎΡΡ„Ρ„Π΅ΠΊΡ‚ΠΈΠ²Π½ΡƒΡŽ конструкций. Π”Π°Π²Π°ΠΉΡ‚Π΅ ΠΏΠΎΠ΄Ρ€ΠΎΠ±Π½Π΅Π΅ рассмотрим ΠΊΠ°ΠΆΠ΄Ρ‹ΠΉ из этих ΠΏΡ€ΠΎΠ΅ΠΊΡ‚ΠΎΠ². --- 1. ΠŸΡ€ΠΎΠ΅ΠΊΡ‚ 573 C Β«Π Π΅Π³Π°Ρ‚Π°Β». Π­Ρ‚ΠΎΡ‚ Π΄ΠΎΠΌ с мансардой, ΠΏΠ»ΠΎΡ‰Π°Π΄ΡŒΡŽ 181 ΠΊΠ².Β ΠΌ. ИмСнно здСсь кухня с кладовой идСально интСгрируСтся Π²Β ΠΎΠ±Ρ‰ΠΈΠΉ ΠΈΠ½Ρ‚Π΅Ρ€ΡŒΠ΅Ρ€, создавая ΡƒΡŽΡ‚Π½Ρ‹Π΅ Ρ„ΡƒΠ½ΠΊΡ†ΠΈΠΎΠ½Π°Π»ΡŒΠ½Ρ‹Π΅ Π·ΠΎΠ½Ρ‹. Гостиная, располоТСнная со стороны тСррасы. ΠœΠ°ΡΡ‚Π΅Ρ€ спальня ΠΏΡ€ΠΎΠ΄ΡƒΠΌΠ°Π½Π½Π° Π΄ΠΎΒ ΠΌΠ΅Π»ΠΎΡ‡Π΅ΠΉ, создаСт атмосфСру спокойствия и уСдинСния. «РСгата» — это нС просто ΠΏΠ»Π°Π½ΠΈΡ€ΠΎΠ²ΠΊΠ°, это ΠΎΠ±Ρ€Π°Π· ΠΆΠΈΠ·Π½ΠΈ. Π—Π΄Π΅ΡΡŒ ΠΊΠ°ΠΆΠ΄ΠΎΠ΅ пространство спроСктировано для вашСго ΠΊΠΎΠΌΡ„ΠΎΡ€Ρ‚Π°. Π—Π°Ρ…ΠΎΠ΄ΠΈΡ‚Π΅ по ссылкС ΠΈΒ ΡƒΠ·Π½Π°ΠΉΡ‚Π΅ всС Π΄Π΅Ρ‚Π°Π»ΠΈ ΠΎΒ ΠΏΡ€ΠΎΠ΅ΠΊΡ‚Π΅: Π Π΅Π³Π°Ρ‚Π°
--- 2. ΠŸΡ€ΠΎΠ΅ΠΊΡ‚ 574A-S «Галс». Если Π²Π°ΠΌ ΠΏΠΎΒ Π΄ΡƒΡˆΠ΅ мансардныС Π΄ΠΎΠΌΠ°, то «Галс» станСт вашим ΠΈΠ΄Π΅Π°Π»ΡŒΠ½Ρ‹ΠΌ Π²

Π’Β ΠΌΠΈΡ€Π΅, Π³Π΄Π΅ мы стрСмимся к максимальной эффСктивности ΠΈΒ ΠΊΠΎΠΌΡ„ΠΎΡ€Ρ‚Ρƒ, Π²Π°ΠΆΠ½Ρ‹ΠΌ вопросом становится Π²Ρ‹Π±ΠΎΡ€ идСального Π΄ΠΎΠΌΠ°. ΠœΡ‹Β ΠΏΡ€Π΅Π΄Π»Π°Π³Π°Π΅ΠΌ Π²Π°ΠΌ Π²Π·Π³Π»ΡΠ½ΡƒΡ‚ΡŒ Π½Π°Β Ρ‚Ρ€ΠΈ Π³ΠΎΡ‚ΠΎΠ²Ρ‹Ρ… ΠΏΡ€ΠΎΠ΅ΠΊΡ‚Π° ΠΎΠ±Ρ‰Π΅ΠΉ ΠΏΠ»ΠΎΡ‰Π°Π΄ΡŒΡŽ ΠΎΡ‚Β 180 ΠΊΠ².Β ΠΌ., Π³Π΄Π΅ ΠΊΠ°ΠΆΠ΄Ρ‹ΠΉ ΠΌΠ΅Ρ‚Ρ€ пространства прСвращаСтся Π²Β ΡƒΡŽΡ‚ ΠΈΒ Ρ‚Π΅ΠΏΠ»ΠΎ. Разработанная докумСнтация обСспСчиваСт Ρ‚Π΅ΠΏΠ»ΠΎΠ·Π°Ρ‰ΠΈΡ‚Ρƒ, отсутствиС мостиков Ρ…ΠΎΠ»ΠΎΠ΄Π° ΠΈΒ ΡΠ½Π΅Ρ€Π³ΠΎΡΡ„Ρ„Π΅ΠΊΡ‚ΠΈΠ²Π½ΡƒΡŽ конструкций. Π”Π°Π²Π°ΠΉΡ‚Π΅ ΠΏΠΎΠ΄Ρ€ΠΎΠ±Π½Π΅Π΅ рассмотрим ΠΊΠ°ΠΆΠ΄Ρ‹ΠΉ из этих ΠΏΡ€ΠΎΠ΅ΠΊΡ‚ΠΎΠ².

---

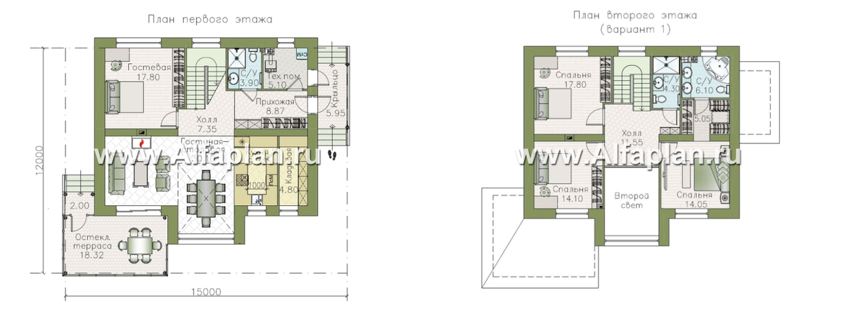
1. ΠŸΡ€ΠΎΠ΅ΠΊΡ‚ 573 C Β«Π Π΅Π³Π°Ρ‚Π°Β».

Π­Ρ‚ΠΎΡ‚ Π΄ΠΎΠΌ с мансардой, ΠΏΠ»ΠΎΡ‰Π°Π΄ΡŒΡŽ 181 ΠΊΠ².Β ΠΌ. ИмСнно здСсь кухня с кладовой идСально интСгрируСтся Π²Β ΠΎΠ±Ρ‰ΠΈΠΉ ΠΈΠ½Ρ‚Π΅Ρ€ΡŒΠ΅Ρ€, создавая ΡƒΡŽΡ‚Π½Ρ‹Π΅ Ρ„ΡƒΠ½ΠΊΡ†ΠΈΠΎΠ½Π°Π»ΡŒΠ½Ρ‹Π΅ Π·ΠΎΠ½Ρ‹. Гостиная, располоТСнная со стороны тСррасы.

-2

ΠœΠ°ΡΡ‚Π΅Ρ€ спальня ΠΏΡ€ΠΎΠ΄ΡƒΠΌΠ°Π½Π½Π° Π΄ΠΎΒ ΠΌΠ΅Π»ΠΎΡ‡Π΅ΠΉ, создаСт атмосфСру спокойствия и уСдинСния. «РСгата» — это нС просто ΠΏΠ»Π°Π½ΠΈΡ€ΠΎΠ²ΠΊΠ°, это ΠΎΠ±Ρ€Π°Π· ΠΆΠΈΠ·Π½ΠΈ. Π—Π΄Π΅ΡΡŒ ΠΊΠ°ΠΆΠ΄ΠΎΠ΅ пространство спроСктировано для вашСго ΠΊΠΎΠΌΡ„ΠΎΡ€Ρ‚Π°. Π—Π°Ρ…ΠΎΠ΄ΠΈΡ‚Π΅ по ссылкС ΠΈΒ ΡƒΠ·Π½Π°ΠΉΡ‚Π΅ всС Π΄Π΅Ρ‚Π°Π»ΠΈ ΠΎΒ ΠΏΡ€ΠΎΠ΅ΠΊΡ‚Π΅: Π Π΅Π³Π°Ρ‚Π°

---

2. ΠŸΡ€ΠΎΠ΅ΠΊΡ‚ 574A-S «Галс».

-3

Если Π²Π°ΠΌ ΠΏΠΎΒ Π΄ΡƒΡˆΠ΅ мансардныС Π΄ΠΎΠΌΠ°, то «Галс» станСт вашим ΠΈΠ΄Π΅Π°Π»ΡŒΠ½Ρ‹ΠΌ Π²Ρ‹Π±ΠΎΡ€ΠΎΠΌ. ΠŸΠ»ΠΎΡ‰Π°Π΄ΡŒ 180 ΠΊΠ².Β ΠΌ. ΠΏΡ€Π΅Π΄Π»Π°Π³Π°Π΅Ρ‚ просторноС Ρ€Π΅ΡˆΠ΅Π½ΠΈΠ΅ с мастСр спальнСй ΠΈΒ Π²Ρ‚ΠΎΡ€Ρ‹ΠΌ свСтом, позволяя Π²Π°ΡˆΠ΅ΠΌΡƒ Π΄ΠΎΠΌΡƒ Π½Π°ΠΏΠΎΠ»Π½ΠΈΡ‚ΡŒΡΡ солнСчным свСтом ΠΈΒ Π²ΠΎΠ·Π΄ΡƒΡ…ΠΎΠΌ.

-4

ВСрраса, ΠΊΠ°ΠΊ ΠΏΡ€ΠΎΠ΄ΠΎΠ»ΠΆΠ΅Π½ΠΈΠ΅ ΠΆΠΈΠ»ΠΎΠ³ΠΎ пространства, создаСт ΡƒΠ½ΠΈΠΊΠ°Π»ΡŒΠ½ΡƒΡŽ атмосфСру. ΠŸΡ€ΠΎΠ΅ΠΊΡ‚ «Галс» — это нС просто Π΄ΠΎΠΌ, здСсь каТдая Π΄Π΅Ρ‚Π°Π»ΡŒ создана для максимального ΠΊΠΎΠΌΡ„ΠΎΡ€Ρ‚Π°. Π₯ΠΎΡ‚ΠΈΡ‚Π΅ ΡƒΠ·Π½Π°Ρ‚ΡŒ большС? ΠŸΠ΅Ρ€Π΅Ρ…ΠΎΠ΄ΠΈΡ‚Π΅ по ссылкС: Галс.

---

3. ΠŸΡ€ΠΎΠ΅ΠΊΡ‚ 663A «БвСтлая полоса».

-5

Если Π²Ρ‹Β ΠΈΡ‰Π΅Ρ‚Π΅ Ρ‡Ρ‚ΠΎ-Ρ‚ΠΎ особСнноС, ΠΎΠ±Ρ€Π°Ρ‚ΠΈΡ‚Π΅ Π²Π½ΠΈΠΌΠ°Π½ΠΈΠ΅ Π½Π°Β Β«Π‘Π²Π΅Ρ‚Π»ΡƒΡŽ полосу». Π­Ρ‚ΠΎΡ‚ двухэтаТный Π΄ΠΎΠΌ, ΠΏΠ»ΠΎΡ‰Π°Π΄ΡŒΡŽ 180 ΠΊΠ².Β ΠΌ., исполнСн в соврСмСнном стилС, ΠΊΠΎΡ‚ΠΎΡ€Ρ‹ΠΉ ΠΎΠ±ΡΠ·Π°Ρ‚Π΅Π»ΡŒΠ½ΠΎ ΠΏΡ€ΠΈΠ²Π»Π΅Ρ‡Π΅Ρ‚ Π²Π½ΠΈΠΌΠ°Π½ΠΈΠ΅. Π‘ΠΎΠ»ΡŒΡˆΠΈΠ΅ ΠΎΠΊΠ½Π° ΡΠΎΠ·Π΄Π°ΡŽΡ‚ ΡƒΠ½ΠΈΠΊΠ°Π»ΡŒΠ½ΠΎΠ΅ взаимодСйствиС с внСшним ΠΌΠΈΡ€ΠΎΠΌ, обСспСчивая ΡΡ€ΠΊΠΎΡΡ‚ΡŒ ΠΈΒ ΡƒΡŽΡ‚.

-6

ВСрраса, ΡΡ‚Π°Π²ΡˆΠ°Ρ ΠΏΡ€ΠΎΠ΄ΠΎΠ»ΠΆΠ΅Π½ΠΈΠ΅ΠΌ Π²Π½ΡƒΡ‚Ρ€Π΅Π½Π½Π΅Π³ΠΎ пространства. ΠšΠ°ΠΆΠ΄Ρ‹ΠΉ ΠΊΠ²Π°Π΄Ρ€Π°Ρ‚Π½Ρ‹ΠΉ ΠΌΠ΅Ρ‚Ρ€ этого ΠΏΡ€ΠΎΠ΅ΠΊΡ‚Π° ΠΏΡ€ΠΎΠ΄ΡƒΠΌΠ°Π½ ΠΈΒ Ρ„ΡƒΠ½ΠΊΡ†ΠΈΠΎΠ½Π°Π»Π΅Π½, ΠΎΠ½Β Π±ΡƒΠ΄Π΅Ρ‚ Ρ€Π°Π΄ΠΎΠ²Π°Ρ‚ΡŒ вас Π΄ΠΎΠ»Π³ΠΈΠ΅ Π³ΠΎΠ΄Ρ‹. НС упуститС Π²ΠΎΠ·ΠΌΠΎΠΆΠ½ΠΎΡΡ‚ΡŒ ΡƒΠ·Π½Π°Ρ‚ΡŒ большС ΠΎΒ Β«Π‘Π²Π΅Ρ‚Π»ΠΎΠΉ полосС».

---

Π­Ρ‚ΠΈ Ρ‚Ρ€ΠΈ ΠΏΡ€ΠΎΠ΅ΠΊΡ‚Π°Β β€” лишь малая Ρ‡Π°ΡΡ‚ΡŒ нашСго ΠΏΠΎΡ€Ρ‚Ρ„ΠΎΠ»ΠΈΠΎ. Высокая Ρ‚Π΅ΠΏΠ»ΠΎΠ·Π°Ρ‰ΠΈΡ‚Π°, отсутствии мостиков Ρ…ΠΎΠ»ΠΎΠ΄Π° и энСргоэффСктивныС Ρ€Π΅ΡˆΠ΅Π½ΠΈΡ ΡΠ΄Π΅Π»Π°ΡŽΡ‚ ваш Π΄ΠΎΠΌ Π½Π΅Β Ρ‚ΠΎΠ»ΡŒΠΊΠΎ ΡΡ‚ΠΈΠ»ΡŒΠ½Ρ‹ΠΌ, Π½ΠΎΒ ΠΈΒ Π²Ρ‹Π³ΠΎΠ΄Π½Ρ‹ΠΌ Π²Π»ΠΎΠΆΠ΅Π½ΠΈΠ΅ΠΌ.

ΠŸΡ€Π΅Π²Ρ€Π°Ρ‚ΠΈΡ‚Π΅ ΠΌΠ΅Ρ‡Ρ‚Ρ‹ о идСальном Π΄ΠΎΠΌΠ΅ Π²Β Ρ€Π΅Π°Π»ΡŒΠ½ΠΎΡΡ‚ΡŒ и создайтС пространство, Π²Β ΠΊΠΎΡ‚ΠΎΡ€ΠΎΠΌ Π±ΡƒΠ΄Π΅Ρ‚ Π»Π΅Π³ΠΊΠΎ ΠΈΒ ΠΊΠΎΠΌΡ„ΠΎΡ€Ρ‚Π½ΠΎ ΠΆΠΈΡ‚ΡŒ!

βš‘ΠŸΠΎΠ΄ΠΏΠΈΡΡ‹Π²Π°ΠΉΡ‚Π΅ΡΡŒ Π½Π° наш канал ДЗЕН. Π£ нас – Ρ‚ΠΎΠ»ΡŒΠΊΠΎ ΡƒΠ½ΠΈΠΊΠ°Π»ΡŒΠ½Ρ‹Π΅ авторскиС ΠΏΡ€ΠΎΠ΅ΠΊΡ‚Ρ‹ Π΄ΠΎΠΌΠΎΠ². Π•Ρ‰Π΅ большС интСрСсных постов Π² нашСм Telegram, АрхитСктор Π’Π»Π°Π΄ΠΈΠΌΠΈΡ€ Варасов.

#ΠΏΡ€ΠΎΠ΅ΠΊΡ‚Ρ‹Π΄ΠΎΠΌΠΎΠ²ΠΈΠΊΠΎΡ‚Ρ‚Π΅Π΄ΠΆΠ΅ΠΉ #ΠΏΡ€ΠΎΠ΅ΠΊΡ‚Ρ‹Π·Π°Π³ΠΎΡ€ΠΎΠ΄Π½Ρ‹Ρ…Π΄ΠΎΠΌΠΎΠ² #ΠΊΠΎΠΌΡ„ΠΎΡ€Ρ‚Π½Ρ‹ΠΉΠ΄ΠΎΠΌ #Ρ‚Π΅ΠΏΠ»Ρ‹ΠΉΠ΄ΠΎΠΌ #ΠŸΡ€ΠΎΠ΅ΠΊΡ‚Ρ‹Π΄ΠΎΠΌΠΎΠ²ΠΈΠ·Π³Π°Π·ΠΎΠ±Π΅Ρ‚ΠΎΠ½Π° #ΠŸΡ€ΠΎΠ΅ΠΊΡ‚Ρ‹Π΄ΠΎΠΌΠΎΠ²ΡΠΌΠ°Π½ΡΠ°Ρ€Π΄ΠΎΠΉ #ΠΏΡ€ΠΎΠ΅ΠΊΡ‚Ρ‹Π΄ΠΎΠΌΠΎΠ²ΠΈΠ·ΠΊΠΈΡ€ΠΏΠΈΡ‡Π° #ΡΡ‚Ρ€ΠΎΠΈΡ‚Π΅Π»ΡŒΡΡ‚Π²ΠΎΠ΄ΠΎΠΌΠ° #ΡΡ‚Ρ€ΠΎΠΈΡ‚Π΅Π»ΡŒΡΡ‚Π²ΠΎΡ‡Π°ΡΡ‚Π½ΠΎΠ³ΠΎΠ΄ΠΎΠΌΠ° #ΠΏΡ€ΠΎΠ΅ΠΊΡ‚Ρ‹Π΄ΠΎΠΌΠΎΠ²ΠΈΠΊΠΎΡ‚Ρ‚Π΅Π΄ΠΆΠ΅ΠΉ