Добавить в корзинуПозвонить
Найти в Дзене

Как выжать максимум из маленькой ванны: 8 проверенных решений

Маленькая ванная – не приговор! Даже компактное помещение можно сделать уютным, стильным и функциональным. Площадь ванной комнаты часто ограничена, но это не значит, что придется жертвовать комфортом. Как обустроить небольшую ванную, чтобы в ней поместилось всё необходимое и при этом она казалась просторнее? Делимся 8-ю проверенными решениями, которые помогут выжать максимум из каждого квадратного метра. Эффективное использование пространства начинается с продуманного планирования. Дизайн-проект маленькой ванной позволяет заранее определить оптимальное расположение сантехники и мебели без ощущения тесноты. В проекте учитываются все детали — расположение дверей, труб и мест хранения. Иногда имеет смысл поменять привычную конфигурацию: установить душ вместо ванны. Если вы не уверены, как лучше спланировать такую перепланировку, специалисты Академии Ремонта помогут разработать проект, учитывающий каждый сантиметр. Для маленькой ванной идеальна светлая гамма отделки — белые или пастельные
Оглавление

Маленькая ванная – не приговор! Даже компактное помещение можно сделать уютным, стильным и функциональным. Площадь ванной комнаты часто ограничена, но это не значит, что придется жертвовать комфортом.

Как обустроить небольшую ванную, чтобы в ней поместилось всё необходимое и при этом она казалась просторнее? Делимся 8-ю проверенными решениями, которые помогут выжать максимум из каждого квадратного метра.

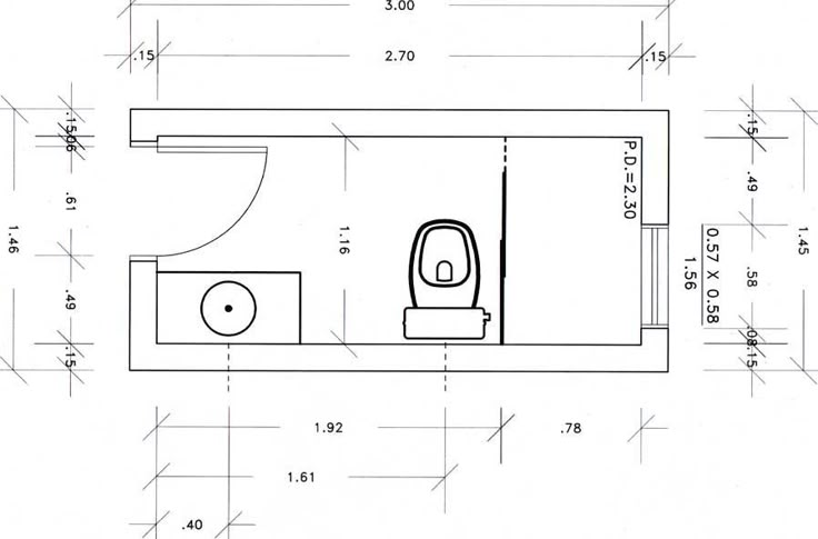
1. Начните с грамотного проектирования

Эффективное использование пространства начинается с продуманного планирования. Дизайн-проект маленькой ванной позволяет заранее определить оптимальное расположение сантехники и мебели без ощущения тесноты. В проекте учитываются все детали — расположение дверей, труб и мест хранения.

-2

Иногда имеет смысл поменять привычную конфигурацию: установить душ вместо ванны. Если вы не уверены, как лучше спланировать такую перепланировку, специалисты Академии Ремонта помогут разработать проект, учитывающий каждый сантиметр.

2. Светлые тона и хорошее освещение

Для маленькой ванной идеальна светлая гамма отделки — белые или пастельные стены, потолок и пол визуально расширяют пространство, отражая максимум света. Чтобы обстановка не казалась слишком однотонной, достаточно пары ярких акцентов, но базовый фон оставьте светлым.

-3

Освещение тоже играет большую роль: несколько источников света — потолочный светильник и подсветка у зеркала — уберут тени в углах и как бы раздвинут стены.

3. Зеркала и глянцевые поверхности

Большое настенное зеркало творит чудеса в тесном помещении, визуально удваивая пространство. Повесьте максимально широкое зеркало – например, над раковиной до потолка – или используйте зеркальный шкафчик, чтобы совместить отражение и хранение.

Большое настенное зеркало визуально расширяет пространство
Большое настенное зеркало визуально расширяет пространство

Дополнительно помогут глянцевые поверхности: плитка с глянцем или натяжной потолок, отражающие свет и придающие глубину. Только не переборщите с блеском: достаточно одного-двух крупных отражающих элементов, чтобы комната казалась просторнее.

4. Компактная сантехника вместо громоздкой

Вместо громоздкой ванны установите душевую кабину или уголок — так вы освободите место. Если же без ванны не обойтись, выручат компактные модели: укороченные прямоугольные ванны или угловые варианты занимают меньше места.

Чем миниатюрнее сантехника, тем просторнее кажется ванная комната
Чем миниатюрнее сантехника, тем просторнее кажется ванная комната

Выбирайте также компактные модели раковины и унитаза. Угловая раковина освободит больше места для прохода, а унитаз с укороченной чашей будет меньше выступать от стены.

Чем миниатюрнее сантехника, тем просторнее кажется ванная комната.

5. Подвесные решения для сантехники и мебели

Для небольшой ванной отлично подходит подвесная сантехника. Подвесной унитаз с инсталляцией убирает бачок в стену и освобождает место на полу, что делает интерьер более лёгким. Раковину тоже можно установить подвесную (с тумбой или без) – непрерывный пол под ней визуально расширяет пространство.

Для небольшой ванной отлично подходит подвесная сантехника
Для небольшой ванной отлично подходит подвесная сантехника

Не забудьте про навесные шкафчики и полки. Например, узкий шкаф-пенал в углу или пара полок над унитазом обеспечат хранение вещей, не занимая площадь на полу. Такие решения экономят пространство и придают ванной ощущение лёгкости.

6. Продуманное хранение везде, где возможно

Хранение в маленькой ванной – настоящий вызов. Чтобы полотенца, косметика и бытовая химия не создавали ощущение беспорядка, нужно организовать места для хранения максимально компактно. Используйте пространство стен: высокий шкаф до потолка вместит все необходимое, а ниша заменит выступающие корзинки для шампуня.

Используйте пространство стен для хранения
Используйте пространство стен для хранения

Главное – не захламлять ванную мелочами: порядок сделает даже крохотную ванную визуально просторнее.

7. Раздвижные двери и перегородки

Дверь ванной, открываясь внутрь, часто “съедает” полезное пространство. Решение – установить раздвижную дверь или складную дверь-«гармошку», которые не занимают места при открывании.

Раздвижная дверь душевого уголка не занимает места при открывании
Раздвижная дверь душевого уголка не занимает места при открывании

То же касается душевой зоны: вместо распашной створки лучше использовать раздвижные шторки или стационарную стеклянную перегородку. Прозрачное стекло не разделяет пространство. Благодаря таким решениям планировка становится гибкой и удобной.

8. Многофункциональность и минимум лишнего

Каждая вещь в маленькой ванной должна приносить максимум пользы, поэтому выбирайте многофункциональные предметы. Например, зеркало-шкаф совмещает отражение с местом для хранения, а тумба под раковиной с выдвижными ящиками убирает мелочи с глаз. Мебель на заказ тоже выручит — она идеально впишется в габариты комнаты и задействует каждый сантиметр.

Тумба под раковиной с выдвижными ящиками убирает мелочи с глаз
Тумба под раковиной с выдвижными ящиками убирает мелочи с глаз

Одновременно придерживайтесь минимализма. Не перегружайте интерьер декором: достаточно пары стильных акцентов, а на виду оставляйте только самое необходимое.

Даже совсем небольшая ванная комната может стать удобной и красивой – нужно лишь творчески подойти к задаче и применить правильные решения. Обратитесь в Академию Ремонта – наши эксперты помогут на всех этапах: от разработки дизайн-проекта до качественного ремонта под ключ, и превратят вашу маленькую ванную в уютный уголок вашего дома!

Свяжитесь с нами сегодня по телефону +7 (495) 135 46 01 и получите БЕСПЛАТНУЮ консультацию по вашему дизайн-проекту.

____________________________________________

Хотите получать больше полезной информации?

Подпишитесь на наш канал в Дзен

Подписывайтесь на наш Телеграм

____________________________________________