Найти в Дзене
Войти
Виталий Ананченко (Творческая группа Architipai)
23 подписчика
Подписаться
“3Д ПЛАНИТЫ” – Интерьер квартиры в Москве
27 декабря 2025
27 дек 2025
...
Читать далее
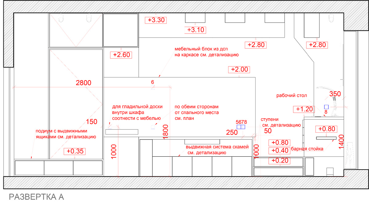
Проектная графика чертежей имеет свою специфическую эстетику. Тем временем работа над проектом квартиры кипит
Проектная графика чертежей имеет свою специфическую эстетику. Тем временем работа над проектом квартиры кипит