Найти в Дзене
Проекты Коттеджей

«Все проекты домов из газобетона».

Если вы когда-нибудь думали о собственном доме, то наверняка слышали о газобетоне — лёгком, тёплом и современном строительном материале. Сегодня такие дома массово выбирают те, кто хочет комфортный загородный коттедж без переплат за лишние метры и сложности строительства. Из этой статьи вы узнаете, чем разные проекты из газобетона могут отличаться друг от друга и какие варианты особенно интересны для жизни, отдыха или постоянного проживания. А в конце — ссылка, где можно сразу посмотреть все проекты домов из газобетона в одном месте и подобрать тот, который идеально подходит именно вам. Газобетон — это блоки с воздушной ячеистой структурой, которые обеспечивают отличную теплоизоляцию, низкий вес и быструю кладку.
Такие дома держат тепло зимой, прохладу летом, а строительство обходится значительно дешевле, чем из кирпича. К тому же, газобетон легко комбинируется с разными архитектурными стилями — от традиционного шале до современного европейского коттеджа. Один из классических примеров
Оглавление

Если вы когда-нибудь думали о собственном доме, то наверняка слышали о газобетоне — лёгком, тёплом и современном строительном материале. Сегодня такие дома массово выбирают те, кто хочет комфортный загородный коттедж без переплат за лишние метры и сложности строительства.

Из этой статьи вы узнаете, чем разные проекты из газобетона могут отличаться друг от друга и какие варианты особенно интересны для жизни, отдыха или постоянного проживания.

А в конце — ссылка, где можно сразу посмотреть все проекты домов из газобетона в одном месте и подобрать тот, который идеально подходит именно вам.

Почему газобетон — хит среди строительных материалов.

Газобетон — это блоки с воздушной ячеистой структурой, которые обеспечивают отличную теплоизоляцию, низкий вес и быструю кладку.
Такие дома
держат тепло зимой, прохладу летом, а строительство обходится значительно дешевле, чем из кирпича.

К тому же, газобетон легко комбинируется с разными архитектурными стилями — от традиционного шале до современного европейского коттеджа.

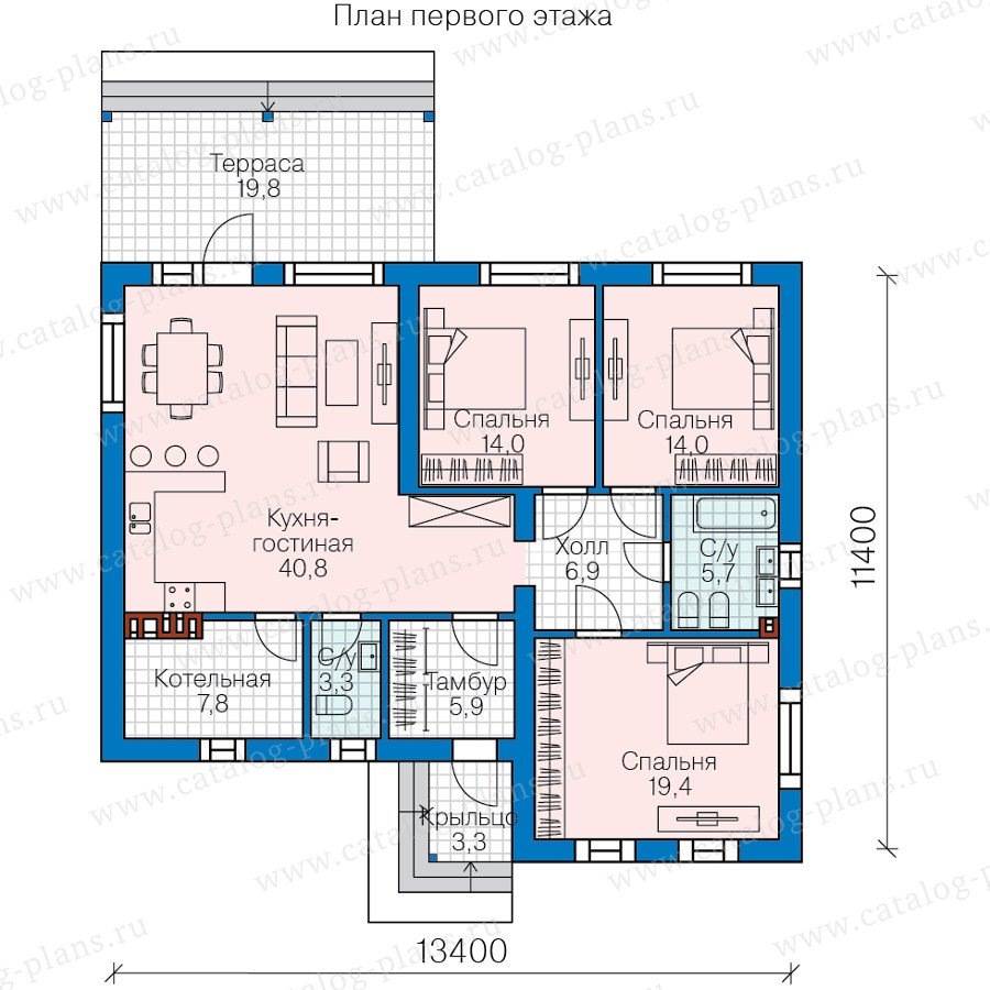
Уютный одноэтажный дом из газобетона проект 58-70.

Один из классических примеров компактного одноэтажного жилья — проект 58-70:

Что важно знать про него:

  • Общая площадь: 116 м²
  • Терраса / балкон: 23,1 м²
  • Габариты: 13,9 × 11,9 м
  • Наружные стены — газобетонные блоки 400 мм
  • Стиль — шале с отделкой под камень и клинкерную плитку
  • Фундамент — монолитная ж/б плита
  • Крыша — чердачная с металлочерепицей

Это комфортный одноэтажный дом с террасой, который легко вписывается в небольшой участок, а благодаря продуманной форме не выглядит громоздким.

-2

📌 Идеально подходит:
✔ для семьи из 3-4 человек,
✔ для постоянного проживания,
✔ для дачи с комфортом.

Подробнее о проекте https://catalog-plans.ru/catalog/58-70

Двухэтажный дом из газобетона 40-04B.

-3

Теперь давайте посмотрим немного «вверх по уровню комфорта» — проект 40-04B:

Главные параметры:

  • Общая площадь: 132 м²
  • Терраса / балкон: 25,12 м²
  • Габариты: 10 × 9,5 м
  • Стены — газобетонные блоки 400 мм
  • Стиль — европейский, с мягкой черепицей и штукатуркой фасада
  • Фундамент — монолитная ж/б плита
  • Перекрытия — монолит + деревянные балки
  • Дом имеет 2 этажа
  • Терраса — продолжение пространства для отдыха на свежем воздухе

Это отличный пример того, как материал газобетон подходит не только для компактных одноэтажек, но и для двухэтажных домов с зонированием пространства.

-4

-5

📌 Идеально подходит:
✔ для семьи из 4-5 человек,
✔ для тех, кто любит
чёткое разделение зон (гостиная и спальни на разных уровнях),
✔ для семей, ценящих традиционное распределение пространства.

Понравился проект, посмотри его тут https://catalog-plans.ru/catalog/40-04B

Оба приведённых проекта, и 58-70, и 40-04B, основаны на одном принципе:
👉
газобетон — это материал, который делает дом тёплым, доступным по цене и простым в строительстве.

Как выбрать свой проект из газобетона.

👇 Вот несколько вопросов, которые стоит себе задать перед выбором:

  1. Для чего вам дом?
    Для круглогодичного проживания или только летнего отдыха?
  2. Сколько человек будет жить?
    Если 2–3 — компактный одноэтажный коттедж может быть оптимальным. Если семья больше — имеет смысл смотреть двухэтажные варианты.
  3. Какой стиль вам ближе?
    Шале, европейский минимализм, современный — газобетон легко комбинируется с любым стилем.
  4. Какой бюджет на строительство?
    Газобетон часто даёт преимущество по стоимости и времени стройки.

И где всё это посмотреть.

Если хочется сравнить планировки, стили, площади и подобрать свой идеальный вариант, то вот отличная подборка всех проектов из газобетона в одном месте:
https://catalog-plans.ru/catalog/iz-gazobetona

Там собраны все готовые проекты — от компактных одноэтажек до просторных двухэтажных домов, с визуализациями, планами и вариантами отделки.