Добавить в корзинуПозвонить
Найти в Дзене
DIVAN.RU

ДО/ПОСЛЕ: преображение двушки 47 кв.м в хрущевке в яркий интерьер

Хозяйка этой двухкомнатной квартиры живет за рубежом. Унаследовав квартиру, она решила не продавать недвижимость, а полностью обновить ее для своих частых приездов. Дизайнеру Полине Чернышовой было поручено создать яркий и запоминающийся интерьер. Посмотрим, что получилось. До ремонта это была типовая двушка в хрущевке с проходной гостиной и маленькой кухней. После перепланировки кухню объединили с гостиной, перенеся вход и установив раздвижную дверь (квартира газифицирована). Дверь в спальню также перенесли для удобства. Кладовку расширили за счет спальни, превратив в гардеробную. В квартире провели полный демонтаж, заменили старую отделку, окна и двери. Пол покрыли кварц-виниловой плиткой, а стены подготовили к покраске и декорировали реечными панелями. Раскладной диван Сваут от divan.ru привлекает яркой обивкой и современным дизайном, а также служит дополнительным спальным местом. ➡️Товары бренда divan.ru Обратите внимание: в интерьере использована техника колор-блок: в обеденной зо
Оглавление

Хозяйка этой двухкомнатной квартиры живет за рубежом. Унаследовав квартиру, она решила не продавать недвижимость, а полностью обновить ее для своих частых приездов. Дизайнеру Полине Чернышовой было поручено создать яркий и запоминающийся интерьер. Посмотрим, что получилось.

  • Объект: двухкомнатная квартира 47 кв.м, г. Калининград (потолки 2,4 м)
  • Автор проекта: дизайнер Полина Чернышова, стилист Анна Семенова, автор фото Анна Орлова
  • Бюджет: 3 млн рублей

Пожелания заказчицы

  • Светлое и уютное пространство
  • Функциональная, полноформатная кухня
  • Наличие спальни с широкой кроватью

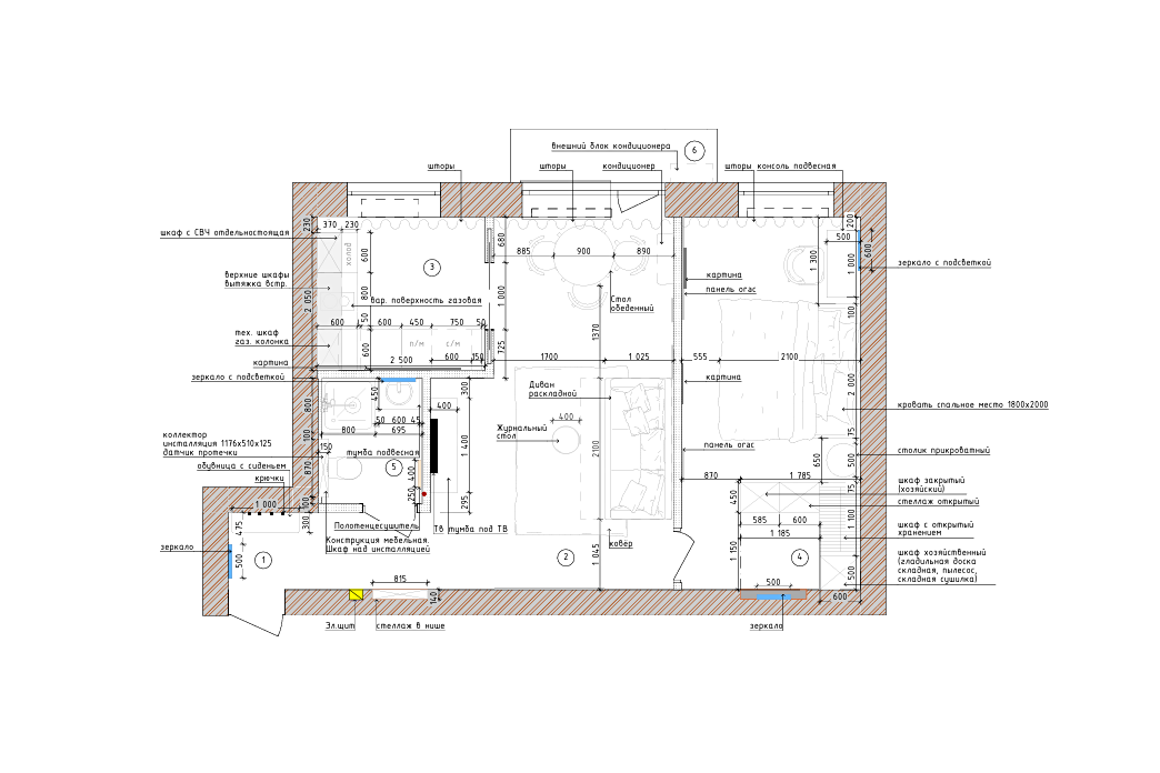
Планировочное решение

До ремонта это была типовая двушка в хрущевке с проходной гостиной и маленькой кухней. После перепланировки кухню объединили с гостиной, перенеся вход и установив раздвижную дверь (квартира газифицирована). Дверь в спальню также перенесли для удобства. Кладовку расширили за счет спальни, превратив в гардеробную.

Планировочное решение и расстановка мебели
Планировочное решение и расстановка мебели

Гостиная

В квартире провели полный демонтаж, заменили старую отделку, окна и двери. Пол покрыли кварц-виниловой плиткой, а стены подготовили к покраске и декорировали реечными панелями.

Раскладной диван Сваут от divan.ru привлекает яркой обивкой и современным дизайном, а также служит дополнительным спальным местом.

➡️Товары бренда divan.ru

Обратите внимание: в интерьере использована техника колор-блок: в обеденной зоне стены и рельефные панели вместе с потолком выкрашены в светло-бирюзовый цвет. На противоположной стене наклеены необычные обои с медузами.

Кухня

Кухня — самая яркая комната в квартире. Гарнитур заказали по индивидуальному проекту. Верхние фасады — перфорированный металл. Наполнение кухни максимально продумано: есть встроенный холодильник, газовая варочная поверхность, вытяжка, посудомоечная машина. Стиральная машина спрятана за нижним фасадом. Подоконник на кухне служит барной стойкой.

Обратите внимание: напольная плитка стилизована под герб Кенигсберга.

«Арт на кухне — моя идея, — отмечает дизайнер. — Я хотела нарисовать счастливых женщин с Балтики в пляжный сезон. Мы дали разработчикам четкий заказ, основанный на моих задумках и вкусах хозяйки».

Для гибкого разделения и объединения кухни и гостиной используется кассетная раздвижная дверь. Ее рифленое стекло вторит стеновым панелям в гостиной.

-8

Спальня

В спальне преобладают светлые тона, акцентом выступают обои с цветочным и фантазийным (рыбы с ножками) рисунком в изголовье кровати. Стена напротив декорирована зелеными панелями. Комната обставлена широкой кроватью (180 см) и туалетным столиком. Освещение: потолочные светильники и прикроватные бра с ридерами.

Гардеробная разделена на гостевую зону и зону хранения запасных одеял и подушек в шкафу.

-11
Удобство гардеробной дополняется наличием всего необходимого для уборки, включая компактную сушилку и гладильную доску.

Прихожая

Прихожая оформлена в терракотовых тонах, с ритмичным узором плитки на полу. У входа предусмотрены крючки для одежды и обувница, а в нише размещен встроенный стеллаж.

Санузел

Пол в санузле украшает плитка с геометричным узором, а стены облицованы бежевым керамогранитом. Яркие зеленые панели мебели создают контраст с нейтральным фоном, напоминая «арбуз на пляже». Для хранения предназначены тумба под раковину и навесной шкафчик над унитазом. Подсветка на потолке визуально расширяет помещение.

============================

☀️ Природа ждет тепла, а ваш дом — ярких красок и уюта. Мебель для солнечного настроения ждет в подборке со скидками до 45% на divan.ru >>

-15

============================

Оцените интерьер в комментариях, а если материал понравился — не забудьте поставить лайк👍

🖤divan.ru — не только блог про интерьеры, но и производитель доступной дизайнерской мебели. Ищите новые идеи и переходите на сайт, чтобы воплотить их в жизнь.

*Цены указаны на момент публикации