Добавить в корзинуПозвонить
Найти в Дзене
Дом Мечты

Дом «Майами» 95 м², в котором уместилось все

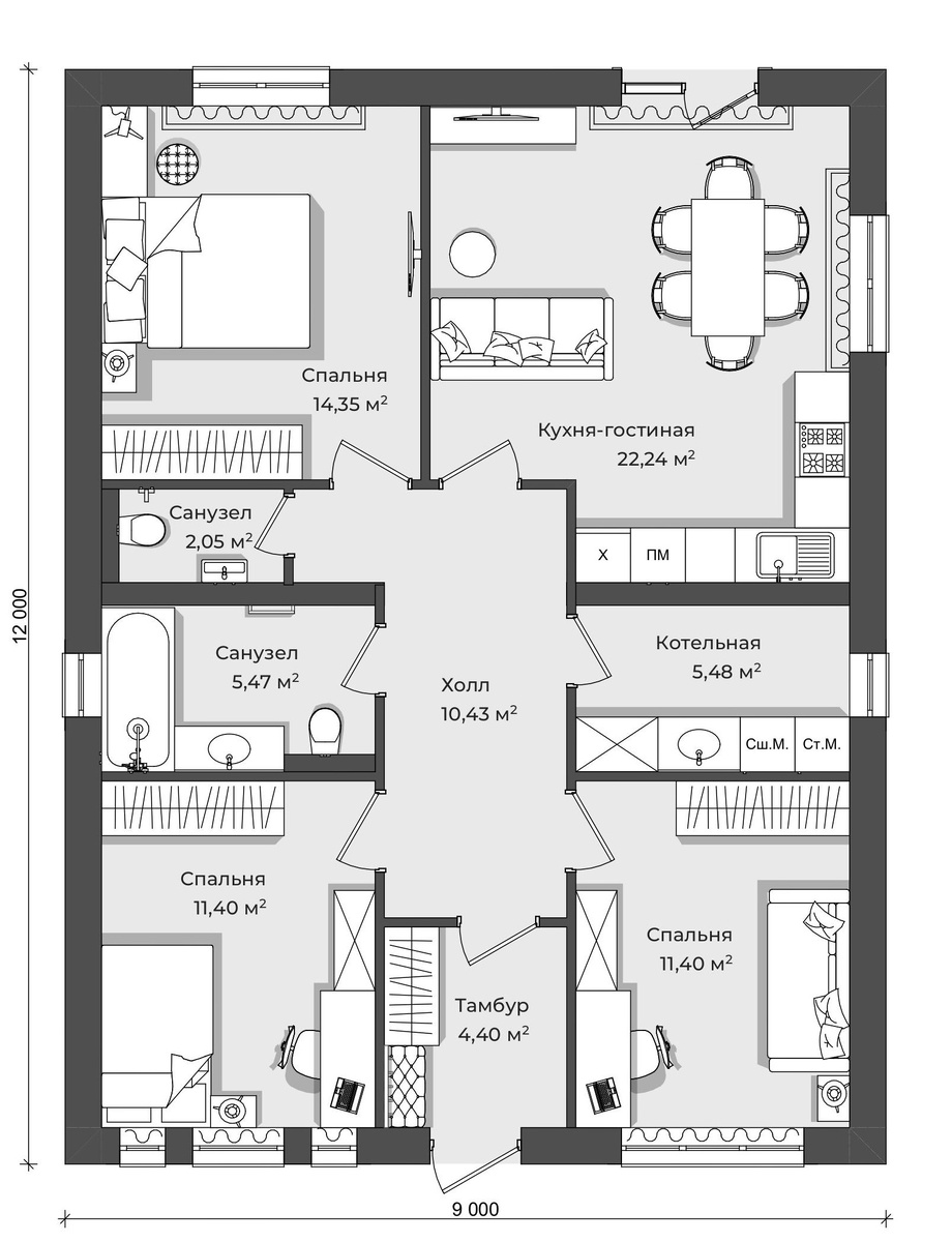
Когда речь заходит о частном доме, многие по-прежнему представляют себе либо огромные коттеджи на 150–200 квадратов, либо, наоборот, тесные дачные варианты «для лета». Проект «Майами» — это золотая середина. Одноэтажный дом площадью 95 квадратных метров, в котором удалось грамотно уместить всё необходимое для комфортной жизни семьи. Этот дом — наглядный пример того, как планировка и логика пространства важнее «голых» метров. Проект «Майами» выполнен в современном стиле. Фасад отделан декоративной штукатуркой типа «короед», что делает дом визуально аккуратным и долговечным в эксплуатации. Установлены ламинированные окна — практичное решение, которое хорошо смотрится снаружи и не требует постоянного ухода. Несмотря на компактные размеры, дом выглядит солидно и продуманно. Здесь нет лишних выступов, но есть чёткая геометрия, правильные пропорции и ощущение завершённости. На входе мы попадаем в прихожую. Часто в частных домах этому пространству уделяют минимум внимания, но именно здесь нач
Оглавление

Когда речь заходит о частном доме, многие по-прежнему представляют себе либо огромные коттеджи на 150–200 квадратов, либо, наоборот, тесные дачные варианты «для лета». Проект «Майами» — это золотая середина. Одноэтажный дом площадью 95 квадратных метров, в котором удалось грамотно уместить всё необходимое для комфортной жизни семьи.

Этот дом — наглядный пример того, как планировка и логика пространства важнее «голых» метров.

Внешний облик и архитектура

Проект «Майами» выполнен в современном стиле. Фасад отделан декоративной штукатуркой типа «короед», что делает дом визуально аккуратным и долговечным в эксплуатации. Установлены ламинированные окна — практичное решение, которое хорошо смотрится снаружи и не требует постоянного ухода.

Несмотря на компактные размеры, дом выглядит солидно и продуманно. Здесь нет лишних выступов, но есть чёткая геометрия, правильные пропорции и ощущение завершённости.

Прихожая: мелочь, которая решает многое

На входе мы попадаем в прихожую. Часто в частных домах этому пространству уделяют минимум внимания, но именно здесь начинается комфорт.

Важно, что в проекте предусмотрена глубокая ниша под шкаф — более 40–50 сантиметров. Это значит, что верхняя одежда, обувь и сезонные вещи не будут создавать хаос в доме. Есть место и для вешалки, и для обувницы.

Дополнительный плюс — возможность установить межкомнатную дверь между прихожей и остальной частью дома. В зимний период это позволяет разделять холодные и тёплые потоки воздуха, повышая энергоэффективность и комфорт.

Коридор без потери логики

Коридоры в частных домах часто критикуют — и справедливо. Они могут «съедать» полезную площадь. В проекте «Майами» коридор действительно присутствует, но он функционален: именно он аккуратно связывает жилые зоны, не нарушая приватность комнат.

Комнаты: честные метры без иллюзий

Площадь 12,5 м² — это комфортный минимум для спальни. Здесь спокойно размещаются кровать, шкаф, тумбы, телевизор. Если же планируется ещё и полноценная рабочая зона, стоит честно понимать: пространство будет использоваться максимально плотно. Проект не обещает невозможного — и в этом его плюс. Здесь нет «нарисованных» метров, которые в реальности оказываются тесными.

Большой санузел с окном — редкость и преимущество

Один из ключевых плюсов проекта — основной санузел площадью около 8 м². В нём удалось разместить:

  • ванну,
  • умывальник,
  • стиральную машину,
  • два полотенцесушителя (водяной и электрический),
  • зеркало с подсветкой.

Но главное — наличие окна. Многие опасаются этого решения, однако на практике окно в санузле — это огромный плюс. Дополнительная вентиляция, отсутствие постоянной влажности, быстрое проветривание — всё это напрямую влияет на комфорт и долговечность отделки.

Раздельный второй санузел

В доме предусмотрен и второй, отдельный санузел площадью около 2,5–3 м². Это удобное решение для семьи: утром не возникает очередей, а приватность сохраняется. Даже на небольшой площади предусмотрены полки и возможность доработки хранения под потребности хозяев.

Техническая часть — сердце дома

В проекте изначально предусмотрена отдельная техническая зона. Здесь размещены:

  • коллекторы тёплых водяных полов,
  • система регулировки отопления,
  • возможность установки газового котла и бойлера косвенного нагрева.

Дом отапливается тёплыми водяными полами, и это одно из самых комфортных решений для одноэтажного дома. Температуру можно регулировать по каждому контуру: где-то сделать теплее, где-то прохладнее.

Важно отметить: в проектах «Дома Мечты» котельные и технические помещения обычно проектируются площадью 4–6 м², чтобы инженерия не «съедала» жилое пространство и при этом оставалась доступной для обслуживания.

Детская или спальня — 15 м² света

Следующая комната площадью около 15 м². В данном исполнении она используется как детская. Светлые тона, рабочая зона, шкафы, место для отдыха — всё организовано логично и без перегруза.

Большие окна дают естественный свет и вид на частный сектор, что создаёт ощущение простора даже при компактной площади.

Кухня-гостиная — центр жизни дома

Сердце проекта «Майами» — кухня-гостиная площадью 25 м². Здесь уже установлен кухонный гарнитур, техника, мойка, варочная панель. Пространство полностью готово к жизни.

Интересное решение — скрытый газовый котёл, размещённый в нише кухонного гарнитура. Это позволяет сохранить эстетику интерьера. При этом изначально котёл планировался в технической части, но заказчики решили отдать это пространство под кладовую для хранения заготовок и бытовых вещей.

Это отличный пример гибкости проекта: планировку можно адаптировать под реальные привычки семьи.

Панорамное остекление и тепло

В кухне-гостиной предусмотрено панорамное остекление с выходом на участок. Чтобы минимизировать теплопотери, установлен напольный конвектор. Он создаёт тепловую завесу в холодное время года.

Альтернативное решение — более частый шаг укладки тёплого пола (10 см вместо 20 см), если хозяева не хотят конвекторы из-за пыли и ухода.

Возможность террасы или веранды

Проект «Майами» легко дорабатывается. С задней стороны дома можно организовать террасу или закрытую веранду. Это расширяет жилое пространство без увеличения площади дома и делает кухню-гостиную ещё более функциональной.

Чтобы детальнее погрузиться в проект, смотрите полный обзор можно посмотреть по ссылке

ВКонтакте | VK Видео

Кому подойдёт проект «Майами»?

Дом площадью 95 м² — это:

  • комфортное решение для семьи с 1–2 детьми,
  • альтернатива квартире без компромиссов по удобству,
  • понятная и логичная планировка,
  • возможность адаптации под образ жизни.

👉 Понравился проект? Оставьте заявку на сайте, и наши менеджеры проведут первичную консультацию, отправят каталог проектов и проведут бесплатный показ в Калуге или Обнинске.

Строительство и продажа домов в Калуге

Дом «Майами» доказывает: для комфортной жизни важны не квадратные метры, а продуманные решения.