Найти в Дзене

Когда меня спрашивают - почему мы не работаем в частном сегменте, я делаю глубокий вдох и на выдохе отвечаю - ну вы понимаете, специфика

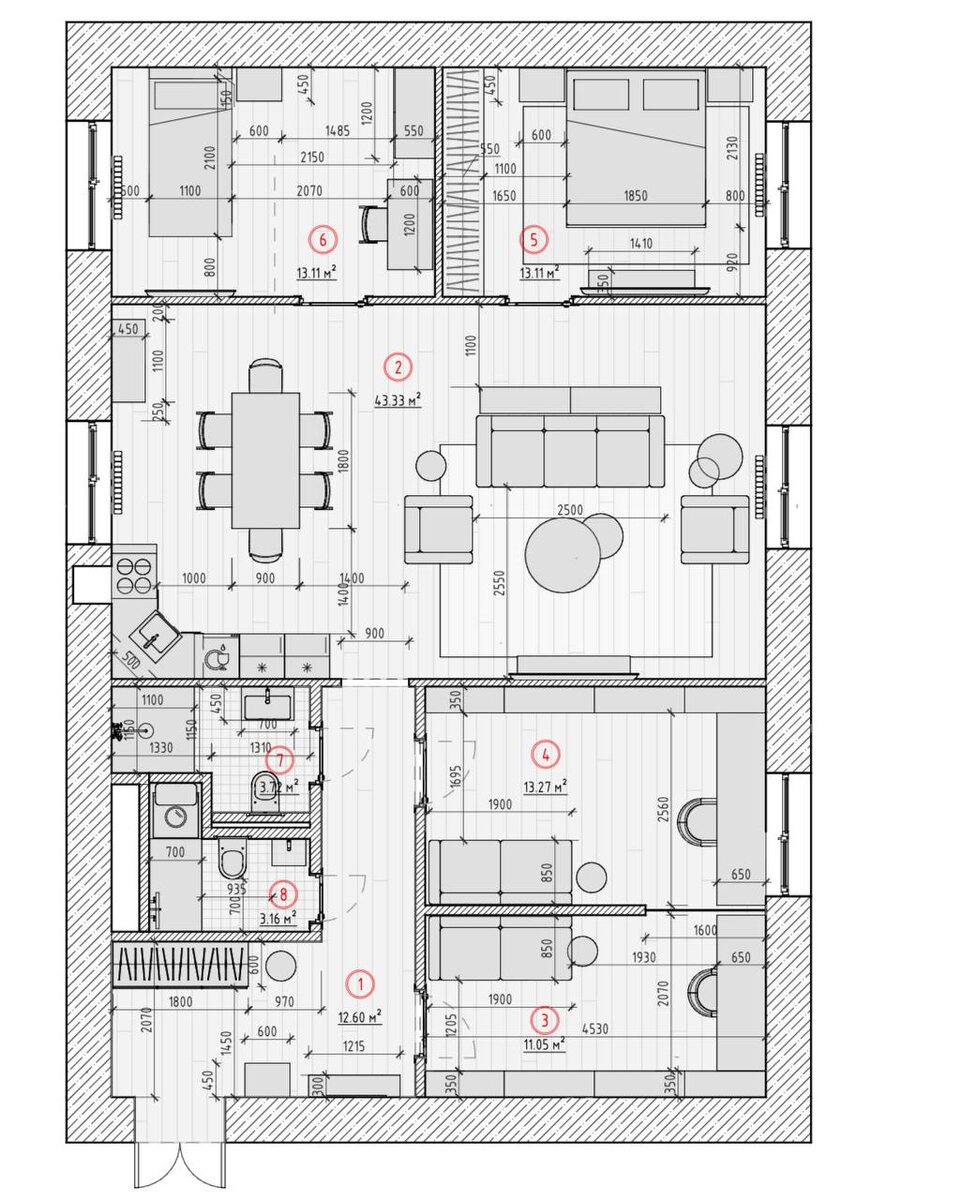
Когда меня спрашивают - почему мы не работаем в частном сегменте, я делаю глубокий вдох и на выдохе отвечаю - ну вы понимаете, специфика клиента В аренде мы можем сказать - неграмотное не продастся, задержит срок окупаемости, клиент не поедет - и это работает. В жилье все это неприменимо - хочу и баста! «Мы так живем, так хотим, круг недостаточно круглый, сделаете еще круглей» Иногда мы изменяем своим правилам и поддаемся на уговоры. Сейчас работаем над планировкой жилой квартиры в центре, где техническое задание явно входит в конфликт с данными квартиры. С годами я понял - планировка должна быть спокойной. Подвыперды, диагональки и прочие невиданные рядовому клиенту чудеса - это все не про хорошую квартиру. Это мещанское формотворчество. Такие квартиры продаются потом с большим дисконтом В советском мультике сапожник сшил и 8 шапок, правда, получились они маленькие.

Когда меня спрашивают - почему мы не работаем в частном сегменте, я делаю глубокий вдох и на выдохе отвечаю - ну вы понимаете, специфика клиента

В аренде мы можем сказать - неграмотное не продастся, задержит срок окупаемости, клиент не поедет - и это работает. В жилье все это неприменимо - хочу и баста! «Мы так живем, так хотим, круг недостаточно круглый, сделаете еще круглей»

Иногда мы изменяем своим правилам и поддаемся на уговоры. Сейчас работаем над планировкой жилой квартиры в центре, где техническое задание явно входит в конфликт с данными квартиры.

С годами я понял - планировка должна быть спокойной.

Подвыперды, диагональки и прочие невиданные рядовому клиенту чудеса - это все не про хорошую квартиру. Это мещанское формотворчество. Такие квартиры продаются потом с большим дисконтом

В советском мультике сапожник сшил и 8 шапок, правда, получились они маленькие.

-2