Добавить в корзинуПозвонить
Найти в Дзене

Посмотрите какой он удобный!

Давно не делали обзоры проектов. Поэтому сегодня предлагаем вам посмотреть новый проект дома с нашего сайта www.planistroy.ru Дом с мансардным этажом по вашему желанию может быть построен из кирпича, газобетона, теплой керамики, или каркаса. Классический стиль не выходит из моды и никогда не надоедает. Фасад дома Общая площадь дома 232м2 Площадь застройки 11,7х16м В доме 4 спальни, одна из которых, самая маленькая - гостевая, на первом этаже и три просторных на втором. Одна из них - мастер-спальня. 4 санузла. Зона кухни выделена в отдельную локацию и может быть отгорожена от гостиной раздвижными дверями или дверным проемом, например, по желанию. Обратите внимание, что площадь гостиной почти 40м2. Есть встроенный гараж на одну машину с входом в дом через тамбур, а также просторная терраса 22м2. Схема первого и второго этажа (листайте) Подробно о проекте и стоимости строительства такого дома вы можете ознакомиться на нашем сайте по этой ССЫЛКЕ. Много других разнообразных проектов домо

Давно не делали обзоры проектов. Поэтому сегодня предлагаем вам посмотреть новый проект дома с нашего сайта www.planistroy.ru

Дом с мансардным этажом по вашему желанию может быть построен из кирпича, газобетона, теплой керамики, или каркаса. Классический стиль не выходит из моды и никогда не надоедает.

Фасад дома
Фасад дома

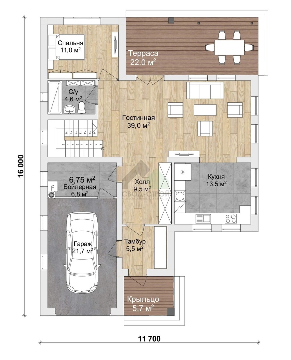
Общая площадь дома 232м2

Площадь застройки 11,7х16м

В доме 4 спальни, одна из которых, самая маленькая - гостевая, на первом этаже и три просторных на втором. Одна из них - мастер-спальня.

4 санузла.

Зона кухни выделена в отдельную локацию и может быть отгорожена от гостиной раздвижными дверями или дверным проемом, например, по желанию.

Обратите внимание, что площадь гостиной почти 40м2.

Есть встроенный гараж на одну машину с входом в дом через тамбур, а также просторная терраса 22м2.

Подробно о проекте и стоимости строительства такого дома вы можете ознакомиться на нашем сайте по этой ССЫЛКЕ.

Много других разнообразных проектов домов, бань, разных стилей и площадей, вы можете посмотреть на нашем сайте. Просто перейдите по этой ссылке сразу в поиск www.planistroy.ru. Задайте, интересующие вас параметры стиля, площади, этажности, количества спален или иные, и, возможно, Вы увидите дом своей мечты!

СПАСИБО ЗА ВАШИ ЛАЙКИ и ПОДПИСКУ!