Найти в Дзене

Проект дома 195 (205) кв.м Ди25-7, пять комнат, 15 фото дизайна

Залитый светом и близкий к природе двухэтажный дом. Любоваться звездами, лёжа в постели, улыбаться утреннему солнцу за стойкой для завтрака и наслаждаться открытым видом на окружающую природу за обеденным столом. Множество стеклянных стен создают ощущение единения с природой. Кроме того, свет и солнце проникают со всех сторон, создавая светлые комнаты с радостной атмосферой. Заказывайте проект дома под ключ по публикуемой концепции, предназначенной под строительство из кладочных материалов (кирпич, блоки). Предварительные размеры дома в плане составляют 11,5 на 11,5 метров. Открытая планировка гостиной на первом этаже, места для хранения вещей в коридоре и гардеробной, изящная прямая лестница и светлый атриум, в сочетании с вышеупомянутой концепцией дневного освещения, создают великолепную атмосферу. Три ванные комнаты расположены по обе стороны от трёх до четырёх спален. Это создаёт идеальные условия для спокойной семейной жизни или комфортного приёма гостей. Великолепная кухня и пр

Залитый светом и близкий к природе двухэтажный дом.

Любоваться звездами, лёжа в постели, улыбаться утреннему солнцу за стойкой для завтрака и наслаждаться открытым видом на окружающую природу за обеденным столом.

Множество стеклянных стен создают ощущение единения с природой. Кроме того, свет и солнце проникают со всех сторон, создавая светлые комнаты с радостной атмосферой.

Заказывайте проект дома под ключ по публикуемой концепции, предназначенной под строительство из кладочных материалов (кирпич, блоки).

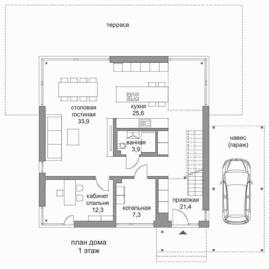
Предварительные размеры дома в плане составляют 11,5 на 11,5 метров.

Открытая планировка гостиной на первом этаже, места для хранения вещей в коридоре и гардеробной, изящная прямая лестница и светлый атриум, в сочетании с вышеупомянутой концепцией дневного освещения, создают великолепную атмосферу.

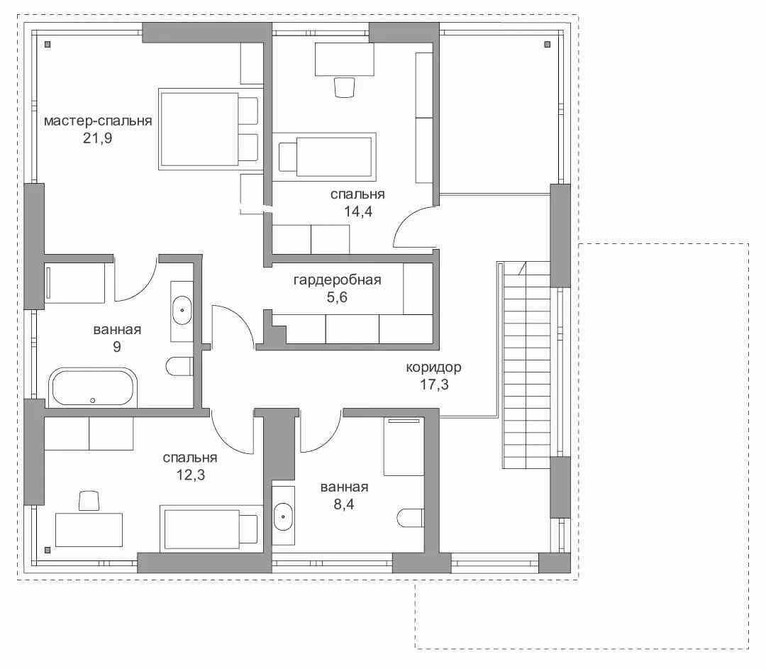
Три ванные комнаты расположены по обе стороны от трёх до четырёх спален. Это создаёт идеальные условия для спокойной семейной жизни или комфортного приёма гостей. Великолепная кухня и просторная обеденная зона превращают приготовление пищи в удовольствие, повседневную жизнь – в нечто особенное, а приём гостей – в настоящее событие.

Смотрим пятнадцать фото – дизайн дома.

Ценные породы дерева и эксклюзивная плитка создают в доме атмосферу роскоши и подчеркивают ваш исключительный вкус, который вы демонстрируете, выбирая этот дом, о чем свидетельствует уже прекрасный внешний вид с серыми оконными рамами и крупноформатными фасадными панелями.

Гармонично интегрированный навес для машины (можем спроектировать с гаражом), соединенный с домом через входной навес, не только практичен, но и красиво притягивает взгляд.

В публикуемую концепцию дома можем внести изменения: отредактировать планировочные решения, фасад спроектировать из лицевого кирпича и т.д.

Перейдя по ссылке на наш сайт (для удобства есть фильтр: площадь, этажность и др.), вы можете заказать проект дома под ключ, посмотреть визуализации и планировки в большем формате, прочесть подробные описания, а также большее количество проектов, в том числе несколько десятков готовых в качестве портфолио.

Мы выполняем:

1 Архитектурно-строительный (конструктивный) проект дома:

планы, разрезы, фасады, 3d виды, план крыши, ведомость оконных и дверных проёмов, план свайного поля, опалубочный план фундамента, армирование, сечения, узлы, планы перекрытий и перемычек, монолитные пояса, стропильная система и др.; сводная спецификация основных материалов строительства дома.

2 Предварительная смета строительства дома

2.1 Составляем по разработанному нами АС проекту дома.

2.2 По утверждённым планировочным и архитектурным решениям до разработки основной части проекта дома.

2.3 По понравившимся планировкам и визуализациям дома в интернете.

2.4 Другие варианты по согласованию с заказчиком.

3 Инженерный проект дома:

водоснабжение и канализация, отопление и вентиляция, электрика, другие разделы по согласованию.

4 Сопутствующие работы: выезд на участок застройки (посадка дома на участке и др.), технический надзор, обследование дома перед покупкой и другие по согласованию - по отдельному Договору с клиентом

* * *

Мы — это группа специалистов со стажем от 30-ти лет в строительной сфере и большим опытом эксплуатации частных домов.

Разработаем проект дома под ключ, состоящий из архитектурного и конструктивного разделов, по материалам которого составим предварительную смету (материалы, работа, техника) для оценки стоимости строительства.

У нас есть опыт не только проектирования, но и строительства частных домов — это позволяет выдавать подробный проект дома, понятный и бригадирам, и прорабам.

Далее, по желанию и согласованию с заказчиком, создадим проект инженерных систем частного дома.

Обо всём написать невозможно, поэтому звоните - подробнее при общении.

-4