Найти в Дзене
Альфа-Проект

Проект каркасного дома Барнхаус 83 м2 с лофтом и вторым светом: современный подход к строительству компактного, энергоэффективного и стильно

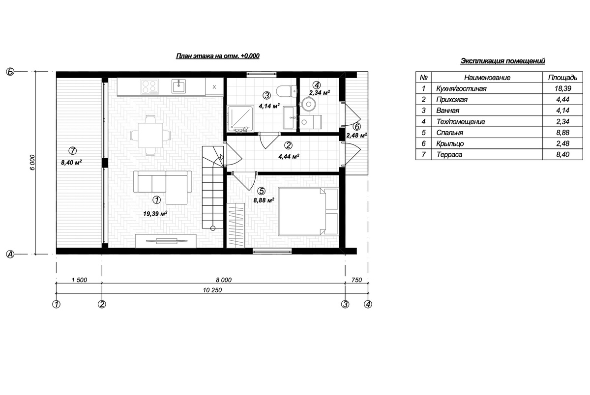
Сегодня формат домов в стиле Барнхаус стал одним из самых востребованных в загородном строительстве. Он сочетает в себе современные архитектурные решения, энергоэффективность и простоту возведения. Проект Барнхаус 83 м2 — один из наиболее удачных примеров подобного сочетания. Это дом, который при компактных габаритах обеспечивает максимум комфорта, света и полезного пространства. Что представляет собой Барнхаус 83 м2 В основе архитектурной концепции — высокие двухскатные скаты, панорамные окна и эффектный второй свет над зоной гостиной. Такой подход делает дом просторным, визуально легким и современным. Дополнительным преимуществом является спальный лофт — это полноценная зона отдыха, созданная без увеличения площади застройки. Общая площадь дома — 83 м2, включая лофт-этаж. Планировка продумана таким образом, чтобы обеспечить удобство жизни семье из 2–4 человек. Планировочные решения В доме предусмотрены: две спальни кухня-гостиная с вторым светом санузел техническое помещение прихожа
Оглавление

Сегодня формат домов в стиле Барнхаус стал одним из самых востребованных в загородном строительстве. Он сочетает в себе современные архитектурные решения, энергоэффективность и простоту возведения. Проект Барнхаус 83 м2 — один из наиболее удачных примеров подобного сочетания. Это дом, который при компактных габаритах обеспечивает максимум комфорта, света и полезного пространства.

Что представляет собой Барнхаус 83 м2

В основе архитектурной концепции — высокие двухскатные скаты, панорамные окна и эффектный второй свет над зоной гостиной. Такой подход делает дом просторным, визуально легким и современным. Дополнительным преимуществом является спальный лофт — это полноценная зона отдыха, созданная без увеличения площади застройки.

Общая площадь дома — 83 м2, включая лофт-этаж. Планировка продумана таким образом, чтобы обеспечить удобство жизни семье из 2–4 человек.

Планировочные решения

В доме предусмотрены:

  • две спальни
  • кухня-гостиная с вторым светом
  • санузел
  • техническое помещение
  • прихожая
  • терраса
  • крыльцо
  • лофт-этаж (спальный этаж)
-2
-3

За счет второго света гостиную наполняет естественный свет, создавая ощущение большого дома. Лофт удобно использовать как мастер-спальню, гостевую комнату или рабочее место.

Конструкция и технологии

Проект разработан в соответствии с современными инженерными требованиями.

Фундамент — свайный. Подходит для большинства типов грунтов, особенно если участок имеет перепады высот или сложные грунты.

Утепление стен и перекрытий — 200 мм. Это позволяет использовать дом для круглогодичного проживания, снижает расходы на отопление и улучшает общую энергоэффективность.

Каркас выполнен по проверенной технологии, обеспечивающей долговечность и устойчивость конструкции. Все узлы и соединения учитывают повышенные нагрузки, связанные с большими окнами и длительной эксплуатацией.

Что входит в состав проекта

Проект поставляется в полном комплекте:

  • эскизный проект
  • фундамент (свайное основание с расчетами)
  • конструкции деревянные
  • ведомости оконных и дверных проемов
  • смета по материалам

Такого набора документации достаточно как для строительства подрядчиком, так и для самостоятельного строительства.

Проект также подходит для получения ипотеки и регистрации дома.

Для кого подходит Барнхаус 83 м2

Этот проект выбирают:

  • семьи, которым нужен компактный, но комфортный дом
  • владельцы участков для строительства гостевых домов и загородных мини-отелей
  • инвесторы в арендную недвижимость
  • застройщики небольших коттеджных поселков
  • частные мастера, желающие построить дом своими силами

Дом универсален и вписывается как в лесной участок, так и в открытое пространство.

Преимущества проекта

  • стильная архитектура Барнхаус
  • лофт и второй свет
  • энергоэффективность
  • компактность
  • быстрая скорость строительства
  • универсальная планировка

Как купить проект

На сайте «Альфа-проект» можно купить проект онлайн. Просто добавьте его в корзину и оформите заказ — проект придет на почту в электронном виде через 5 минут.

Хотите больше проектов?

На нашем сайте projectalfa.ru доступна большая коллекция готовых проектов каркасных, деревянных, газобетонных, СИП-домов и бань. Каталог постоянно расширяется.

Если вам нужен дом, полностью соответствующий вашим задачам и участку, мы предлагаем услугу индивидуального проектирования. Создадим уникальный проект с учетом пожеланий, бюджета, особенностей участка и требований банка по ипотеке.

Посетите projectalfa.ru и выберите проект своей мечты.