Найти в Дзене

Проект двухэтажного дома из газобетона с террасой и гаражом в европейском стиле P1

Номер проекта: P1 Разделы проекта: Архитектурный и Конструктивный разделы Заказать проект можно на сайте deutek.ru или по телефону +7 (495) 175-30-40 Другие проекты можете посмотреть в этом разделе https://zen.yandex.ru/proektirovaniedomov Общая площадь: 213 м2
Габариты дома: 15.5 x 9.62 м
Этажность: 2 (вкл. Мансардный)
Фундамент: монолитная ж/б плита
Перекрытия: по деревянным балкам
Кровля: металлочерепица Фасад: облицовочный кирпич 120 мм Стиль: европейский Двухэтажный дом площадью 213 м2 выполнен в европейском стиле. К его достоинствам стоит отнести: внешнюю эстетичность, грамотную планировку, наличие одноместного гаража. Дом удачно скомпонован с пристроенным гаражом, где также через разделительную перегородку размещена котельная. Фундаментом в данном проекте выступает монолитная ж/б плита, а кровлей для полумансардной

Номер проекта: P1
Разделы проекта: Архитектурный и Конструктивный разделы
Заказать проект можно на сайте deutek.ru или по телефону
+7 (495) 175-30-40
Другие проекты можете посмотреть в этом разделе
https://zen.yandex.ru/proektirovaniedomov

Общая площадь: 213 м2
Габариты дома: 15.5 x 9.62 м
Этажность: 2 (вкл. Мансардный)
Фундамент: монолитная ж/б плита
Перекрытия: по деревянным балкам
Кровля: металлочерепица Фасад: облицовочный кирпич 120 мм Стиль: европейский

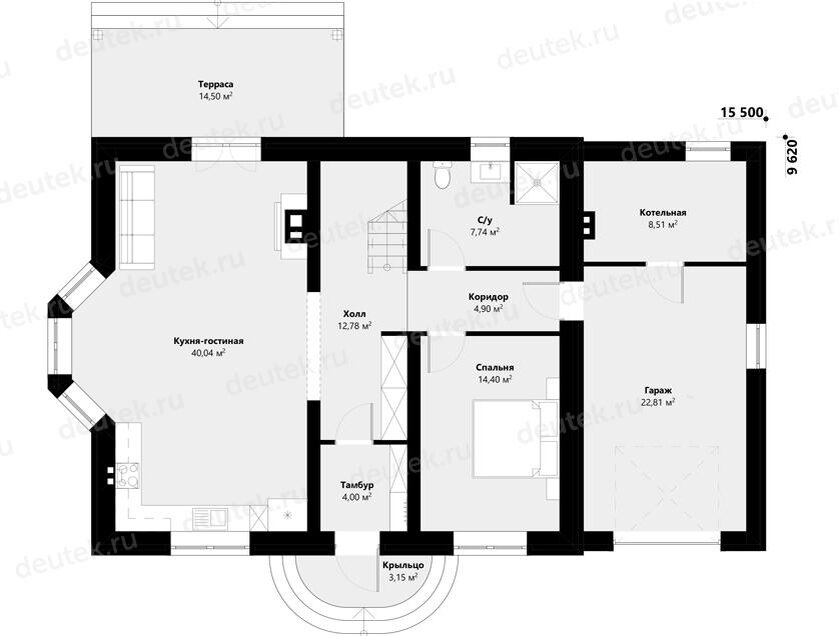
Двухэтажный дом площадью 213 м2 выполнен в европейском стиле. К его достоинствам стоит отнести: внешнюю эстетичность, грамотную планировку, наличие одноместного гаража. Дом удачно скомпонован с пристроенным гаражом, где также через разделительную перегородку размещена котельная. Фундаментом в данном проекте выступает монолитная ж/б плита, а кровлей для полумансардной крыши — металлочерепица. Цоколь защищен от преждевременного износа светлой каменной облицовкой, причем материал может быть природным или искусственным Планировка В дом ведет полукруглое крылечко.

-2

На первом уровне предусмотрены: • большая кухня-гостиная, • связующие помещения — холл, тамбур, коридор • жилая комната • просторный санузел • гараж площадью более 23 м2 • котельная. Терраса прилегает к гостиной, являясь, таким образом, продолжением зоны отдыха; для выхода наружу предусмотрено двустворчатое окно-дверь. Ниша эркера станет отличным местом для расположения большой обеденной группы. В холле первого этажа расположена компактная лестница на второй этаж.

-3

На верхнем уровне — три спальных комнаты, в двух есть выход на балкон. В каждой спальне свободно размещается двуспальная кровать. Также на этом уровне спроектирован общий санузел и большая гардеробная площадью 8 м2. Изюминка планировки — кровельное окно, освещающее одну из спален. Дом по проекту 105-80 — это великолепный выбор в пользу удобного жилья, возводимого по современным строительным стандартам.

Приятный глазу двухцветный дизайн, простые формы стен и кровли и светлая окантовка окон придают дому особую привлекательность. Идеально ровную геометрию стен разнообразит эркер, поддерживающий балкон второго этажа. В конструкции и планировке здания есть определенные особенности. Прежде всего, обращаем внимание заказчиков, что дом спроектирован для строительства из газобетона с наружным утеплением и облицовкой фасада 120-мм кирпичом.

Проект двухэтажного дома из газобетона с террасой и гаражом - P1

Подробнее с проектом можно ознакомиться на сайте deutek.ru

Подписывайтесь на канал, ставьте лайки.