Найти в Дзене
Формула Ремонта

83 м² и ТРИ спальни?! Да вы шутите! Как мы превратили обычную квартиру в полноценный семейный дом без хаоса

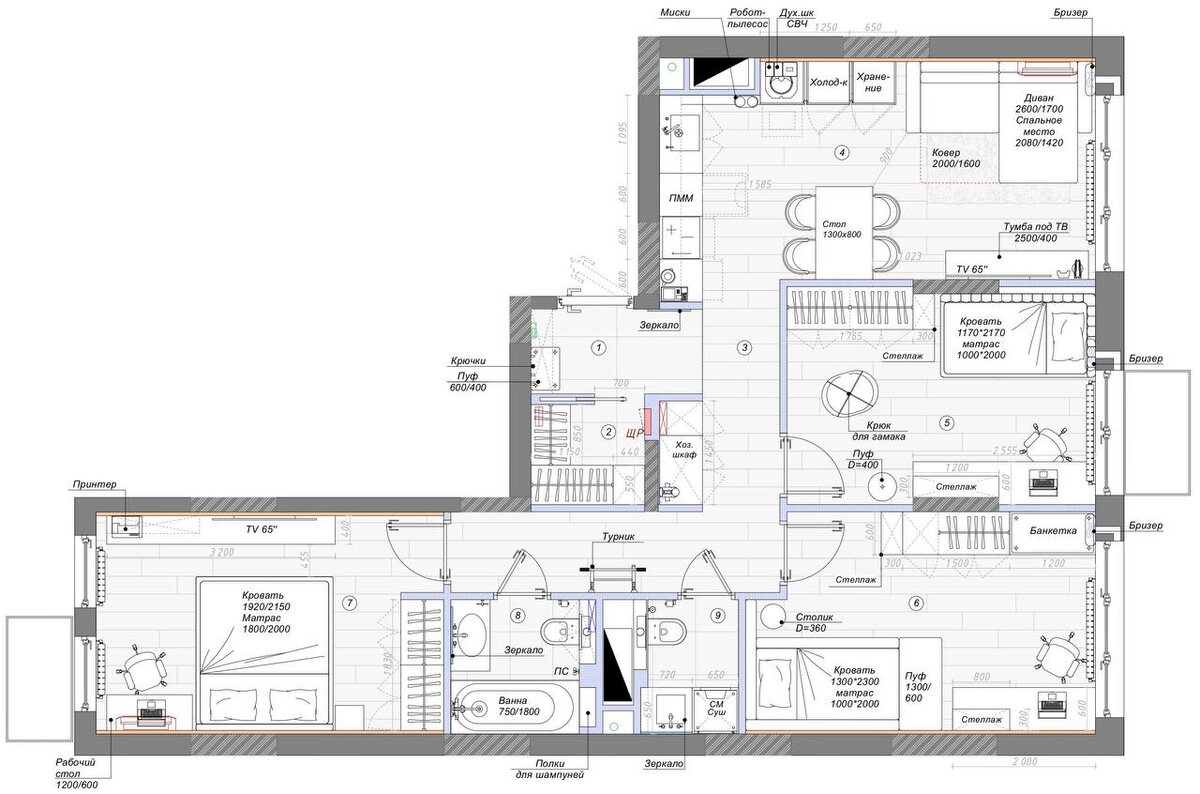
Когда к нам пришла семья с двумя детьми и квартирой свободной планировки, мы сразу поняли: это будет проект, который потребует предельной точности. На 83 м² нужно разместить три спальни, два санузла, гардероб и просторную кухню-гостиную. И всё — в стиле минимализм, без ощущения тесноты или визуального хаоса. Такие задачи не решаются наскоком. Сначала — два месяца плотной работы над планировкой, множество согласований и корректировок. Только после этого мы начали работу на самом объекте: возвели перегородки, оштукатурили стены, заложили инженерные коммуникации. Пространство, которое собирает семью Сердцем квартиры будет кухня-гостиная — главное место притяжения всех членов семьи. Мы стремимся сделать её спокойной, но функциональной. Кухня выстроена линейно, с закрытыми фасадами в приглушённом зелёном оттенке. Для лёгкости добавили витрины со стеклом и подсветкой, они оживляют пространство и создают ощущение глубины. Столовая группа стоит у больших окон. Днём здесь особенно светло:
Оглавление

Когда к нам пришла семья с двумя детьми и квартирой свободной планировки, мы сразу поняли: это будет проект, который потребует предельной точности.

На 83 м² нужно разместить три спальни, два санузла, гардероб и просторную кухню-гостиную. И всё — в стиле минимализм, без ощущения тесноты или визуального хаоса.

Такие задачи не решаются наскоком. Сначала — два месяца плотной работы над планировкой, множество согласований и корректировок.

  • Только после этого мы начали работу на самом объекте: возвели перегородки, оштукатурили стены, заложили инженерные коммуникации.

Пространство, которое собирает семью

Сердцем квартиры будет кухня-гостиная — главное место притяжения всех членов семьи. Мы стремимся сделать её спокойной, но функциональной.

Кухня выстроена линейно, с закрытыми фасадами в приглушённом зелёном оттенке.

  • Для лёгкости добавили витрины со стеклом и подсветкой, они оживляют пространство и создают ощущение глубины.

Столовая группа стоит у больших окон. Днём здесь особенно светло: мягкая тканевая штора и скрытая подсветка вдоль карниза создают атмосферу, которую невозможно передать только изображением.

Диван образует уютный уголок напротив ТВ — идеальное место, где семья будет собираться вечерами.

Две детские — два характера

Мы сразу решили: детские должны быть разными. Комната девочки — нежная, обволакивающая.

  • Кровать с мягким изголовьем, вертикальные рейки и спокойный голубой фон создают камерную, почти сказочную атмосферу. Свет — мягкий, рассеянный, с акцентом на уют.

Комната мальчика — энергичная и структурная. Стена с большой картой мира задаёт настроение: это пространство открытий.

  • У окна — продуманное рабочее место со стеллажом. Кровать расположена так, чтобы оставлять максимум свободной площади для игр.

Несмотря на разные настроения, обе комнаты объединяет одно правило: чистая визуальная линия. Закрытые системы хранения скроют всё лишнее — минимализм в детских работает особенно хорошо.

В нашем Телеграм-канале собрали ТОП-5 трендов детских комнат 2025–2026 — от минимализма с акцентами до персонализации и многофункциональных решений. Разобрали, как совместить стиль, удобство и безопасность в современной детской.

Спальня родителей: территория тишины

Спальню планируем выполнить в тёплой нейтральной гамме: мягкая кровать, спокойные текстуры, простые формы.

Встроенная группа мебели объединит открытые секции и закрытые модули, чтобы функциональность не противоречила стилю.

Аккуратный рабочий стол у окна сделает комнату универсальной — место, где можно и поработать.

Вертикальные акценты и деликатные подвесы визуально вытягивают пространство. Мы сознательно избегаем декоративных перегрузок — спальня должна дарить тишину.

Санузлы и хранение: где минимализм проявляется по‑настоящему

В ванной комнате тёплая вставка из вертикальных планок будет перекликаться с круглым зеркалом с подсветкой.

  • Такая композиция создаст спокойное, почти спа-настроение.

Во втором санузле мы спрячем постирочную зону: стиральная и сушильная машины будут аккуратно стоять в колонну, рядом — функциональные полки.

Хранение — отдельная история. Шкафы будут встроены почти в каждую нишу: у входа будет располагаться гардероб со скрытой подсветкой, в коридоре — хозяйственный шкаф и турник, в спальнях — продуманные системы для одежды и книг.

Минимализм держится именно на грамотной организации хранения.

Почему на реализацию проекта уйдёт почти год

Почти вся мебель будет изготавливаться индивидуально: кухня, шкафы, тумбы, стеллажи — каждая деталь создаётся под конкретные размеры и задачи семьи.

Параллельно будет идти монтаж инженерии, точная выверка света, подготовка под технику. Когда цель — сделать интерьер, который прослужит много лет и не потеряет актуальности, спешка невозможна.

Но результат полностью окупит вложенное время.

В этой квартиру у каждого члена семьи появится своё пространство, а все дороги приведут в общую зону, где семья станет проводить время вместе.

Для нас это напоминание о главном: минимализм — это не про пустоту, а про смысл. Оставить только нужное, убрать лишнее, сохранить тепло. Именно такой невероятный интерьер на 83 м² и получится.

Ставьте лайк и подписывайтесь на канал!