Найти в Дзене
Дом Мечты

Проект Бастер: дом, который называют убийцей квартир

Сегодня всё больше людей задумывается: а действительно ли квартира — единственный правильный вариант для жизни? Особенно если говорить о семьях, которые устали от тесных комнат, низких потолков, проблем с парковкой и вечной городской суеты. Именно здесь на сцену выходит формат, который ещё 20 лет назад вызывал скепсис. Речь о каркасных барнхаусах — стильных, светлых, теплых, энергоэффективных и, что важно, доступных по цене. Один из таких проектов — проект «Бастер» 6×13 площадью 60 м², который в компании «Дом Мечты» уже называют убийцей квартир, и на то есть причины. От «сарая» до стиля: как изменилось отношение к Barn-архитектуре Есть удивительная разница в том, как на один и тот же дом смотрят люди разных поколений. Поколение 60+ видит в Barn что-то знакомое с советских времён: бытовку, вагончик. Но молодёжь видит совершенно другое:
— современный стиль,
— большие окна,
— простые, но выразительные формы,
— атмосферу уюта и минимализма. И проект «Бастер» — один из лучших примеров того,
Оглавление

Сегодня всё больше людей задумывается: а действительно ли квартира — единственный правильный вариант для жизни? Особенно если говорить о семьях, которые устали от тесных комнат, низких потолков, проблем с парковкой и вечной городской суеты. Именно здесь на сцену выходит формат, который ещё 20 лет назад вызывал скепсис. Речь о каркасных барнхаусах — стильных, светлых, теплых, энергоэффективных и, что важно, доступных по цене.

Один из таких проектов — проект «Бастер» 6×13 площадью 60 м², который в компании «Дом Мечты» уже называют убийцей квартир, и на то есть причины.

От «сарая» до стиля: как изменилось отношение к Barn-архитектуре

Есть удивительная разница в том, как на один и тот же дом смотрят люди разных поколений. Поколение 60+ видит в Barn что-то знакомое с советских времён: бытовку, вагончик. Но молодёжь видит совершенно другое:
— современный стиль,
— большие окна,
— простые, но выразительные формы,
— атмосферу уюта и минимализма.

И проект «Бастер» — один из лучших примеров того, как далеко продвинулось представление о современном загородном жилье.

Фундамент, фасад, защита: дом, который строится под людей

1. Основа дома — сваи 150×150 мм или 200×200 мм, в зависимости от геологии участка: дом не ставится «как попало», он адаптируется под почву.

2. Далее — утепление. В «Доме Мечты» чаще всего используют тройной слой утеплителя: стены, пол, крыша. Всё сделано так, чтобы зимой было тепло, а летом прохладно.

3. Фасад — комбинация металлопрофиля и имитации бруса.
Цокольная часть аккуратно подшита деревом — это не просто красиво, но и защищает дом от влаги и снега.

4. И, конечно, установлен водосток и снегозадержатели. Дом создан для российский зим.

Панорамное остекление — изюминка проекта

Если искать самое яркое отличие Barn 6×13 от обычных домов этой площади, это, безусловно, панорамные окна.

С торцевой стороны огромный витраж, который делает дом визуально больше и наполняет его светом. Передняя часть тоже в стекле, что создаёт эффект простора, света и единства с природой.

Когда стоишь на террасе и смотришь на дом в сумерках — это действительно «кайф», как подмечает в обзоре коммерческий директор компании «Дом Мечты», Сергей Козлов.

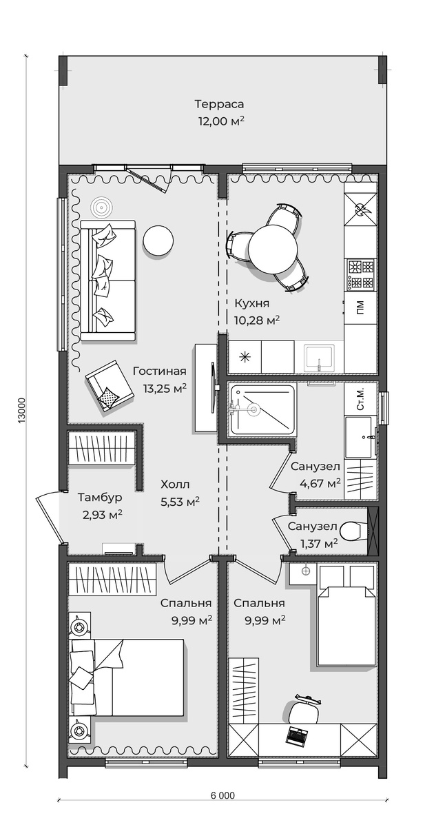
Планировка: как из 60 м² сделать пространство мечты

И вот мы заходим в дом.

Первое, что встречает — прихожая с межкомнатной дверью. Казалось бы, мелочь, но именно она не даёт холодному воздуху попадать в дом. В квартирах такой приятной «прослойки» часто не хватает.

Сразу справа — две комнаты:

  • детская
  • и родительская спальня.

Метраж 9–12 м², но за счёт цвета, света и отделки они кажутся просторными. Это не «клетушки» из вторичного жилья — это полноценные личные комнаты.

Отделка тоже радует:
— ламинат,
— тёплые водяные полы,
— стены из имитации бруса, окрашенные в два слоя,
— натяжной потолок,
— встроенные светильники.

Даже санузлы продуманы до мелочей:
— инсталляции,
— ниша под хозяйственный шкаф,
— ванна или душевая кабина на выбор.

-2

Кухня-гостиная — сердце дома

Высокие потолки, огромные окна, простор, которого совсем не ожидаешь от дома на 60 квадратов.

Это пространство — действительно сердце дома.
Здесь можно поставить удобный диван, создать зону отдыха, разместить рабочий. А рядом зона кухни, где будет установлен угловой гарнитур. Газовый котёл скрыт в аккуратном месте, и при этом остаётся доступным для обслуживания.

Терраса — 12 м² удовольствия

Отдельно стоит сказать о террасе. Если посмотреть на дом без неё — это один образ, с террасой совсем другой.

Выступ крыши, аккуратные ступени, возможность поставить стол, стулья, посидеть вечером, устроить семейный ужин летом — всё это создаёт атмосферу пригородного загородного уюта, который невозможно получить в квартире.

А если вечером включить контурное освещение, получается настоящая магия.

«Убийца квартир» — не преувеличение

Почему этот дом так называют?

  • стоит от 4 млн рублей в Калужской области,
  • даёт 60 квадратов личного пространства,
  • не ограничивает потолками в 2,5 м,
  • не заставляет слушать соседей сверху, снизу и сбоку,
  • создаёт уровень комфорта, который квартира просто не может дать.

Полный видео-обзор дома вы можете посмотреть по ссылке ниже, полноценно погрузившись в его визуал.

ДОМ БЕЗ НАЗВАНИЯ — Видео от Дом Мечты

👉 Понравился проект? Оставьте заявку на сайте, и наши менеджеры проведут первичную консультацию, отправят каталог проектов и проведут бесплатный показ в Калуге или Обнинске.

Строительство и продажа домов в Калуге

Это дом, где каждое утро начинается с тишины, чистого воздуха и естественного света. Дом, который можно назвать своим — полностью, а не условно.