Найти в Дзене
Альфа-Проект

Барнхаус 74 м2 — готовый проект для строительства

Барнхаус 74 м2 — современный проект компактного и функционального дома Каркасный дом в стиле Барнхаус площадью 74 м2 — это оптимальный вариант для постоянного проживания, аренды, дачи или строительства гостевых домов. Проект сочетает современную архитектуру, энергоэффективность и продуманную до мелочей планировку. За счет высокой геометрии скатов и больших окон дом выглядит стильно и дорого при низкой себестоимости строительства. Планировка Барнхауса 74 м2 — максимум комфорта в компактном формате В проекте предусмотрены все необходимые помещения для круглогодичного проживания: две полноценные спальни просторная кухня-гостиная санузел техническое помещение прихожая крыльцо Такой набор помещений делает дом функциональным, удобным для семьи, а также универсальным для любого участка. Конструкция и материалы — надежность и энергоэффективность Фундамент на сваях Проект предусматривает винтовые сваи — универсальное и экономичное решение, подходящее для большинства грунтов и ускоряющее стр
Оглавление

Барнхаус 74 м2 — современный проект компактного и функционального дома

Каркасный дом в стиле Барнхаус площадью 74 м2 — это оптимальный вариант для постоянного проживания, аренды, дачи или строительства гостевых домов. Проект сочетает современную архитектуру, энергоэффективность и продуманную до мелочей планировку. За счет высокой геометрии скатов и больших окон дом выглядит стильно и дорого при низкой себестоимости строительства.

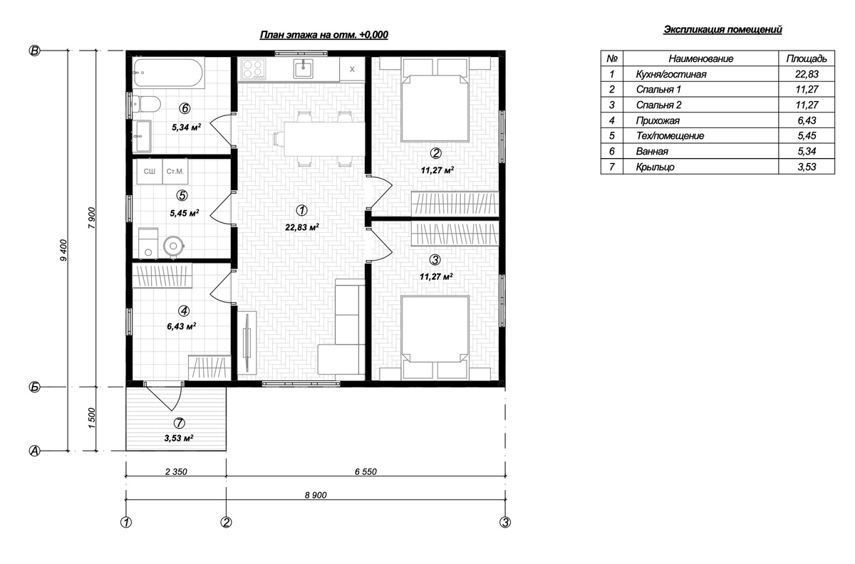
Планировка Барнхауса 74 м2 — максимум комфорта в компактном формате

В проекте предусмотрены все необходимые помещения для круглогодичного проживания:

  • две полноценные спальни
  • просторная кухня-гостиная
  • санузел
  • техническое помещение
  • прихожая
  • крыльцо

Такой набор помещений делает дом функциональным, удобным для семьи, а также универсальным для любого участка.

-2

Конструкция и материалы — надежность и энергоэффективность

Фундамент на сваях

Проект предусматривает винтовые сваи — универсальное и экономичное решение, подходящее для большинства грунтов и ускоряющее строительство.

Энергоэффективное утепление

  • перекрытия: 200 мм
  • стены: 150 мм

Такая толщина утепления обеспечивает комфортную температуру зимой и летом, снижает расходы на отопление и позволяет использовать дом как постоянное жилье.

Продуманная конструкция каркаса

Все узлы выполнены с учетом современных стандартов каркасного домостроения, что обеспечивает долговечность, прочность и устойчивость конструкции.

Что входит в состав проекта Барнхаус 74 м2

Полный набор проектной документации

Проект включает:

  • ЭП — эскизный проект
  • Фундамент (свайное основание с расчетами)
  • КД — конструкции деревянные
  • смету по материалам
  • ведомости оконных и дверных проемов

Готов для строительства и ипотеки

Документация подходит:

  • для самостоятельного строительства,
  • для подрядного строительства,
  • для подачи в банк на ипотеку,
  • для регистрации дома в соответствии с действующими нормами.

Как купить проект Барнхауса 74 м2

Купить проект можно онлайн прямо на сайте. Просто положите проект в корзину и оформите покупку. Готовый проект придет на вашу электронную почту в электронном формате через 5 минут.

Почему выбирают проект Барнхаус 74 м2 от «Альфа-проект»

5 ключевых преимуществ

  1. Современный стиль Барнхаус
  2. Полная документация для строительства
  3. Точный расчет материалов
  4. Энергоэффективные решения
  5. Универсальная планировка для семьи и сдачи в аренду

Закажите проект Барнхауса 74 м2 прямо сейчас и начинайте строительство уже в ближайшее время.