Найти в Дзене

Как мы создаём планировку удобной?

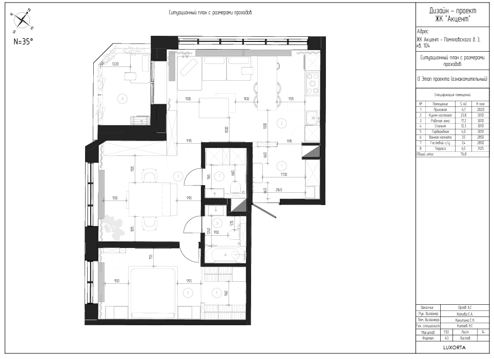
Может казаться, что для создания планировки достаточно карандаша и бумаги. На практике идеальная планировка начинается с глубокого анализа и точных замеров. При разработке дизайн-проекта наши дизайнеры учитывают: 1. Образ жизни и привычки. Необходимо не просто узнать, сколько человек в семье. Мы выясняем: • Распорядок дня: кто и в какое время встаёт? Кто работает из дома и нуждается в тишине? Смотрят ли члены семьи телевизор? • Сценарии жизни: любят ли будущие хозяева принимать гостей большими компаниями или предпочитают уютные семейные вечера Нужна ли мастерская для хобби или игровая зона для детей? Задавая эти и другие уточняющие вопросы, дизайнер персонализирует планировку. 2. Технические детали. Красота невозможна без функциональности. Мы досконально изучаем «анатомию» квартиры: • Несущие стены и коммуникации: проверяем планы квартиры с соседними, чтобы будущая планировка получилась полностью законной и безопасной. • Геометрия и свет: проводим точный замер, определяем

Может казаться, что для создания планировки достаточно карандаша и бумаги. На практике идеальная планировка начинается с глубокого анализа и точных замеров.

При разработке дизайн-проекта наши дизайнеры учитывают:

1. Образ жизни и привычки. Необходимо не просто узнать, сколько человек в семье.

Мы выясняем:

• Распорядок дня: кто и в какое время встаёт? Кто работает из дома и нуждается в тишине? Смотрят ли члены семьи телевизор?

• Сценарии жизни: любят ли будущие хозяева принимать гостей большими компаниями или предпочитают уютные семейные вечера Нужна ли мастерская для хобби или игровая зона для детей?

Задавая эти и другие уточняющие вопросы, дизайнер персонализирует планировку.

2. Технические детали. Красота невозможна без функциональности. Мы досконально изучаем «анатомию» квартиры:

• Несущие стены и коммуникации: проверяем планы квартиры с соседними, чтобы будущая планировка получилась полностью законной и безопасной.

• Геометрия и свет: проводим точный замер, определяем стороны света. Это важно для планирования расположения солнечной гостиной и прохладной спальни, а также для организации света, чтобы в квартире было уютно в любое время суток.

Перед тем как приступить к первым эскизам, необходимо заложить основу.

Подробнее о том, как мы создаем удобную планировку: https://luxorta.ru/blog/897-kak-my-sozdaem-planirovku-udobnoj
#дизайнпроект #планировка #удобнаяквартира #практичныйинтерьер #советыдизайнера #каксоздатьуют #организацияпространства #дизайнерспб #люксорта