Добавить в корзинуПозвонить
Найти в Дзене

Проект дома 131 кв.м Ди25-6, рациональная планировка, дизайн интерьера

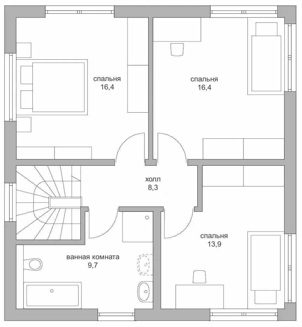
Планировка дома включает три спальни, кухню - столовую - гостиную, котельную, санузел с душем, большую ванную комнату, прихожую и холл. Разработаем проект дома под ключ по публикуемой концепции (характеристики ниже), предназначенной под строительство из кладочных материалов (кирпич, блоки). Планировка делит дом на две зоны: первый этаж - дневная, второй - ночная. Примерные габариты дома в плане составляют 9 на 10 метров - точные размеры будут известны после утверждения строительных материалов наружных стен. В публикуемую концепцию дома можем внести изменения: отредактировать планировочные решения, фасад спроектировать из лицевого кирпича, спроектировать уникальную входную группу и т.д. Дизайн дома (вариант): интерьеры гостиной, кухни, ванной. Перейдя по ссылке на наш сайт (для удобства есть фильтр: площадь, этажность и др.), вы можете заказать проект дома под ключ, посмотреть визуализации и планировки в большем формате, прочесть подробные описания, а также большее количество проекто

Планировка дома включает три спальни, кухню - столовую - гостиную, котельную, санузел с душем, большую ванную комнату, прихожую и холл.

Разработаем проект дома под ключ по публикуемой концепции (характеристики ниже), предназначенной под строительство из кладочных материалов (кирпич, блоки).

Планировка делит дом на две зоны: первый этаж - дневная, второй - ночная.

Примерные габариты дома в плане составляют 9 на 10 метров - точные размеры будут известны после утверждения строительных материалов наружных стен.

В публикуемую концепцию дома можем внести изменения: отредактировать планировочные решения, фасад спроектировать из лицевого кирпича, спроектировать уникальную входную группу и т.д.

Дизайн дома (вариант): интерьеры гостиной, кухни, ванной.

Перейдя по ссылке на наш сайт (для удобства есть фильтр: площадь, этажность и др.), вы можете заказать проект дома под ключ, посмотреть визуализации и планировки в большем формате, прочесть подробные описания, а также большее количество проектов, в том числе несколько десятков готовых в качестве портфолио.

Мы выполняем:

1 Архитектурно-строительный (конструктивный) проект дома:

планы, разрезы, фасады, 3d виды, план крыши, ведомость оконных и дверных проёмов, план свайного поля, опалубочный план фундамента, армирование, сечения, узлы, планы перекрытий и перемычек, монолитные пояса, стропильная система и др.; сводная спецификация основных материалов строительства дома.

2 Предварительная смета строительства дома

2.1 Составляем по разработанному нами АС проекту дома.

2.2 По утверждённым планировочным и архитектурным решениям до разработки основной части проекта дома.

2.3 По понравившимся планировкам и визуализациям дома в интернете.

2.4 Другие варианты по желанию заказчика.

3 Инженерный проект дома:

водоснабжение и канализация, отопление и вентиляция, электрика, другие разделы по согласованию.

4 Сопутствующие работы: выезд на участок застройки (посадка дома на участке и др.), технический надзор, обследование дома перед покупкой и другие по согласованию - по отдельному Договору с клиентом

* * *

Мы — это группа специалистов со стажем от 30-ти лет в строительной сфере и большим опытом эксплуатации частных домов.

Разработаем проект дома под ключ, состоящий из архитектурного и конструктивного разделов, по материалам которого составим предварительную смету (материалы, работа, техника) для оценки стоимости строительства.

У нас есть опыт не только проектирования, но и строительства частных домов — это позволяет выдавать подробный проект дома, понятный и бригадирам, и прорабам.

Далее, по желанию и согласованию с заказчиком, создадим проект инженерных систем частного дома.

Обо всём написать невозможно, поэтому звоните - подробнее при общении.