Добавить в корзинуПозвонить
Найти в Дзене

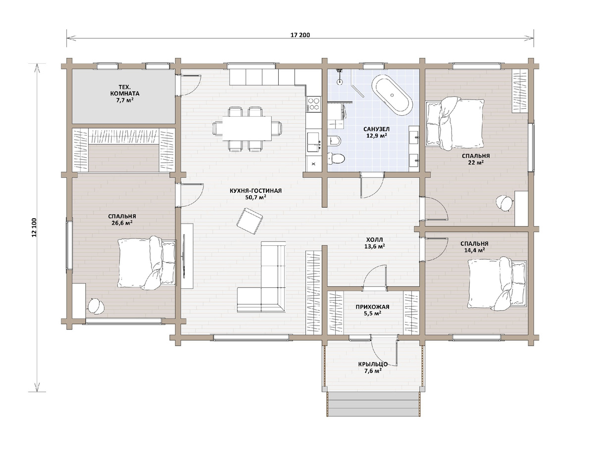
Проект КБ-1. Одноэтажный дом 161 м2

Сегодня расскажем о вместительном одноэтажном доме из клеёного бруса, площадью 161 м². Проект КБ - 1 мы создавали для семьи из 4-6 человек - с акцентом на комфорт и удобство в повседневной жизни. Продуманная планировка: В доме предусмотрено всё необходимое для постоянного проживания: 3 спальни, просторная кухня-гостиная, где удобно собираться всей семьёй, вместительный холл большая ванная, гардеробная для удобного хранения одежды, техническое помещение для инженерных систем. Все зоны продуманы так, чтобы жить здесь было удобно и по - домашнему уютно. Архитектура КБ - 1 выполнен в современном стиле: лаконичные линии, большие окна, гармоничные пропорции и естественные материалы. Такой дом выглядит современно, но при этом сохраняет естественное тепло дерева. Понравился дом? Заполните форму по ссылке - и мы вышлем вам презентацию проекта КБ-1 с планировкой, сориентируем по стоимости и вариантам комплектации. Также расскажем, как адаптировать его под ваш участок и пожелания.

Сегодня расскажем о вместительном одноэтажном доме из клеёного бруса, площадью 161 м².

Проект КБ - 1 мы создавали для семьи из 4-6 человек - с акцентом на комфорт и удобство в повседневной жизни.

Продуманная планировка:

В доме предусмотрено всё необходимое для постоянного проживания:

-2
  • 3 спальни,
  • просторная кухня-гостиная, где удобно собираться всей семьёй,
  • вместительный холл
  • большая ванная,
  • гардеробная для удобного хранения одежды,
  • техническое помещение для инженерных систем.

Все зоны продуманы так, чтобы жить здесь было удобно и по - домашнему уютно.

Архитектура

КБ - 1 выполнен в современном стиле: лаконичные линии, большие окна, гармоничные пропорции и естественные материалы.

Такой дом выглядит современно, но при этом сохраняет естественное тепло дерева.

Понравился дом?

Заполните форму по ссылке - и мы вышлем вам презентацию проекта КБ-1 с планировкой, сориентируем по стоимости и вариантам комплектации.

Также расскажем, как адаптировать его под ваш участок и пожелания.