Добавить в корзинуПозвонить
Найти в Дзене
СК Новый дом

Популярный проект дома 106 м.кв 3 спальни 1 этаж 9 на 12

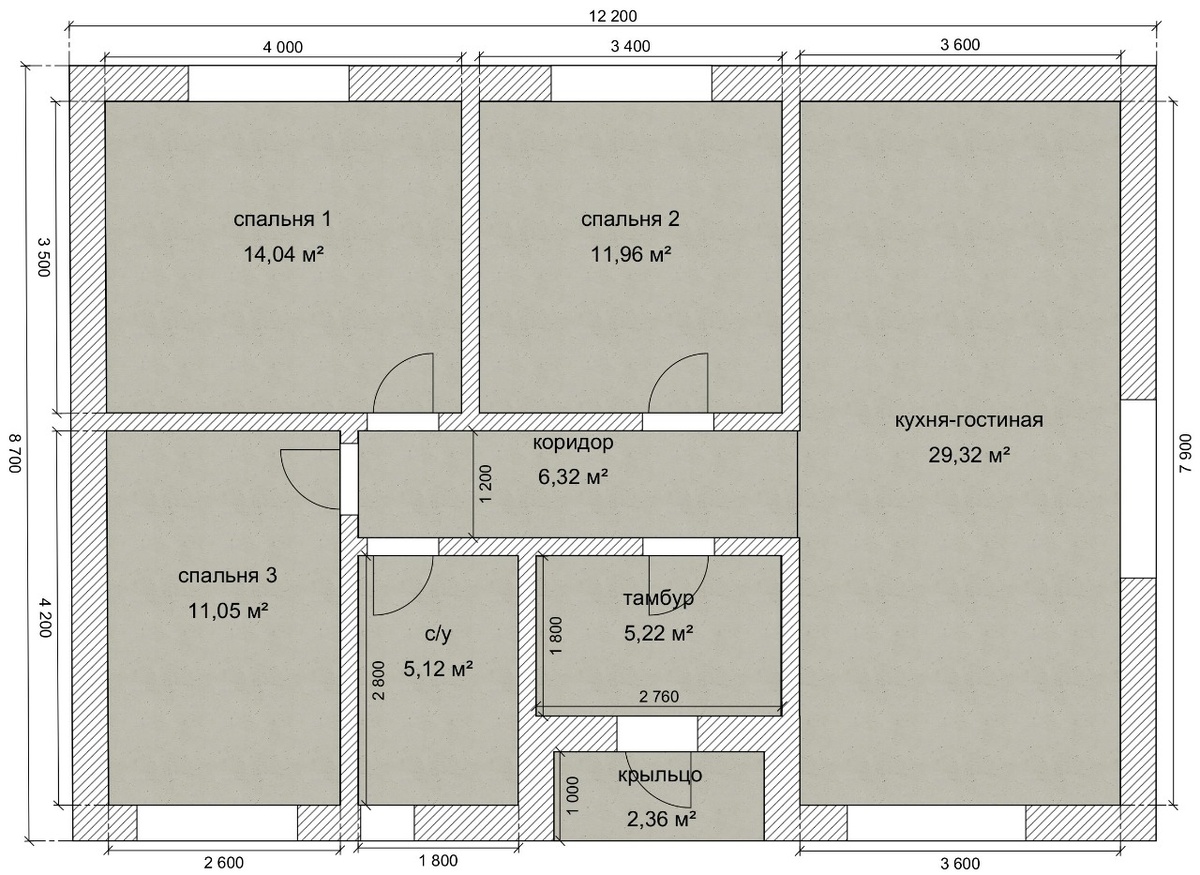
Проект строительства одноэтажного частного дома площадью 106 м.кв — это идеальное решение для семьи, ценящей комфорт и практичность. Компактные размеры 9 на 12 м позволят разместить здание даже на участке с ограниченным пространством. В проекте предусмотрены три уютные спальни и просторная кухня-гостиная — функциональная планировка аналогична удобной трехкомнатной квартире. 106 м.кв - дом один этаж 9 х 12 метров 3 спальни Комплектация Сметный расчет стоимости комплектации "предчистовая" - с фасадом, окнами, входной дверью, разводкой сетей и внутренней отделкой. Фундамент ленточный. Кровля металлочерепица четырехскатная. Фасад фактурная штукатурка. Цена строительства 5 636 437 руб - газоблок 300 мм Каждую неделю новые проекты - Подписаться на канал Смета на странице проекта - https://nd-dsk.ru/simfer/nd-7214-2/
Оглавление

Проект строительства одноэтажного частного дома площадью 106 м.кв — это идеальное решение для семьи, ценящей комфорт и практичность. Компактные размеры 9 на 12 м позволят разместить здание даже на участке с ограниченным пространством. В проекте предусмотрены три уютные спальни и просторная кухня-гостиная — функциональная планировка аналогична удобной трехкомнатной квартире.

  • 106 м.кв - дом один этаж
  • 9 х 12 метров
  • 3 спальни

Комплектация

Сметный расчет стоимости комплектации "предчистовая" - с фасадом, окнами, входной дверью, разводкой сетей и внутренней отделкой. Фундамент ленточный. Кровля металлочерепица четырехскатная. Фасад фактурная штукатурка.

Цена строительства

  • 5 636 437 руб - газоблок 300 мм
-2
-3
-4
-5
-6

Каждую неделю новые проекты - Подписаться на канал

Смета на странице проекта - https://nd-dsk.ru/simfer/nd-7214-2/