Найти в Дзене

Проект 80 м2 4-х комнатного дома "Квадрат" 10 на 10 метров

3D Визуализация №1 В эпоху дорогих кредитов и высокой стоимости энергоресурсов компактные дома лидируют, не до бильярдных сейчас. Планировка Все комнаты максимально с минимальной площадью возможной для хоть какого-то использования, главное не покупать "мягкую" пузатую мебель 90-х годов, чтобы всё влезло. 3D Визуализация №2 Облицовка всего дома выполнена в едином песочном кирпиче. 3D Визуализация №3 Окна максимально беспроблемные. 3D Визуализация №4 Из элементов комфорта, лишь крыльцо снаружи, т.к. терраса сейчас уже роскошь, на неё надо что-то пить и кушать, а с этим сейчас туго. 3D Визуализация №5 Форма крыши - всеми любимая 4-х скатная, вальмовая. А вот больше готовых проектов домов по супер низкой цене, от нас на OZON и WB по ссылочкам в комментариях.
3D Визуализация №1
3D Визуализация №1

В эпоху дорогих кредитов и высокой стоимости энергоресурсов компактные дома лидируют, не до бильярдных сейчас.

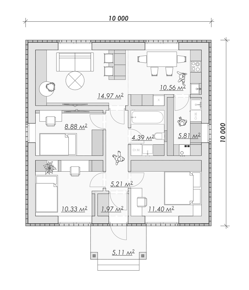
Планировка
Планировка

Все комнаты максимально с минимальной площадью возможной для хоть какого-то использования, главное не покупать "мягкую" пузатую мебель 90-х годов, чтобы всё влезло.

3D Визуализация №2
3D Визуализация №2

Облицовка всего дома выполнена в едином песочном кирпиче.

3D Визуализация №3
3D Визуализация №3

Окна максимально беспроблемные.

3D Визуализация №4
3D Визуализация №4

Из элементов комфорта, лишь крыльцо снаружи, т.к. терраса сейчас уже роскошь, на неё надо что-то пить и кушать, а с этим сейчас туго.

3D Визуализация №5
3D Визуализация №5

Форма крыши - всеми любимая 4-х скатная, вальмовая.

А вот больше готовых проектов домов по супер низкой цене, от нас на OZON и WB по ссылочкам в комментариях.