Найти в Дзене
ДОМ с умом

Проект "Дея" - компактный дуплекс для комфортной жизни в городе

Это стильный двухэтажный дом-дуплекс, где каждая семья имеет свое изолированное жилье с отдельным входом. Коттедж отличается минимализмом архитектуры и простым, но в то же время элегантным оформлением фасадов. Его ключевое преимущество — компактные габариты, которые позволяют легко разместить дом даже на небольшом участке, что особенно актуально в условиях плотной городской застройки. Характеристики: Общая площадь - 168 кв.м
Площадь одной секции - 84,4 кв.м
Габариты - 11,4х 11,4 м
Фундамент: монолитная железобетонная плита
Стены: керамзитоблок 390 мм, утеплитель 100 мм
Отделка фасада: кирпич
Межэтажные перекрытия - сборные железобетонные плиты перекрытия, чердачные - по деревянным балкам
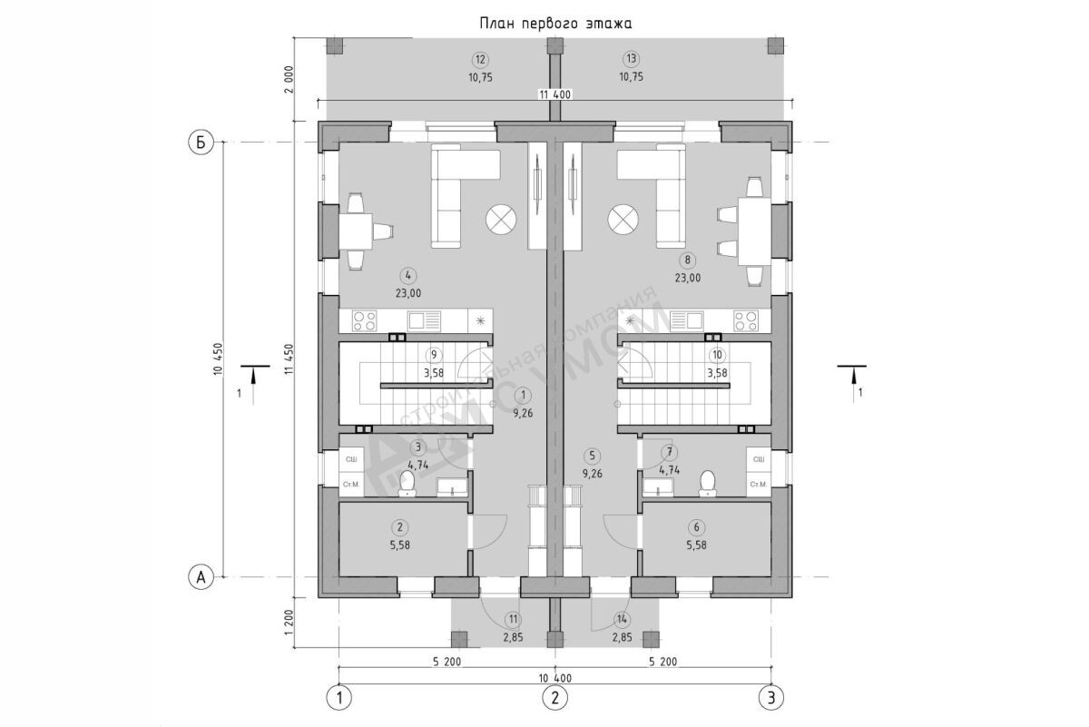
Крыша - из металлочерепицы по деревянной стропильной системе Планировка: Пространство организовано максимально рационально. На первом этаже расположена функциональная кухня-гостиная площадью 23 кв.м — здесь приятно готовить и собираться вечерами всей семьей. Эта зона гармонично объединена, что создает
Оглавление

Это стильный двухэтажный дом-дуплекс, где каждая семья имеет свое изолированное жилье с отдельным входом. Коттедж отличается минимализмом архитектуры и простым, но в то же время элегантным оформлением фасадов. Его ключевое преимущество — компактные габариты, которые позволяют легко разместить дом даже на небольшом участке, что особенно актуально в условиях плотной городской застройки.

Характеристики:

Общая площадь - 168 кв.м
Площадь одной секции - 84,4 кв.м
Габариты - 11,4х 11,4 м
Фундамент: монолитная железобетонная плита
Стены: керамзитоблок 390 мм, утеплитель 100 мм
Отделка фасада: кирпич
Межэтажные перекрытия - сборные железобетонные плиты перекрытия, чердачные - по деревянным балкам
Крыша - из металлочерепицы по деревянной стропильной системе

Планировка:

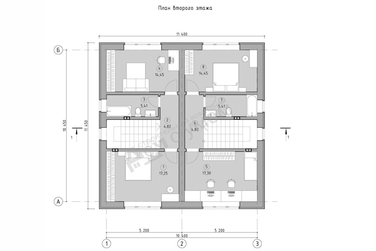
Пространство организовано максимально рационально. На первом этаже расположена функциональная кухня-гостиная площадью 23 кв.м — здесь приятно готовить и собираться вечерами всей семьей. Эта зона гармонично объединена, что создает ощущение простора, несмотря на общую компактность. Также на этаже размещены ванная комната и котельная. Приватная зона с личными комнатами находится на втором этаже. Здесь расположены 2 спальные комнаты и ванная.

📌Площадь одной секции – 84,4 кв.м
📌Кухня-гостиная – 23 кв.м
📌Спальни – 2 шт.