Найти в Дзене
Marina interior designer

Квартира, которая стала больше своей планировки

Про свет, вертикали и то самое ощущение легкости Иногда кажется, что проблема — в метрах. В низком потолке, узком коридоре, нехватке воздуха. Но эта квартира быстро показала: семья ищет не площадь, а состояние — лёгкость, дыхание, пространство, которое подстраивается под жизнь. Задач было много: визуально поднять потолок, «убрать» длинный коридор, спланировать детскую для будущего второго ребёнка, найти место для будуара, расширить кухню-гостиную. Всё решаемо — но интерьер рождается не из ремесла, а из ощущения. Оно появилось, когда мы рассматривали каталоги Applico. Нисходящие ветви с золотистыми мазками, пушистые злаки в лавандовой дымке — рисунки, которые не привлекают яркостью, а просто существуют. Тогда и стало ясно: интерьер будет светлым, перламутровым, вертикальным. Вдохновение Когда пространство сопротивляется При первом визите стало понятно: планировка работает против людей. Коридор на 16 м² крал воздух, потолок 2,60 давил. Решение — вернуть эти метры в жизнь квартиры: отда
Оглавление

Про свет, вертикали и то самое ощущение легкости

Иногда кажется, что проблема — в метрах. В низком потолке, узком коридоре, нехватке воздуха. Но эта квартира быстро показала: семья ищет не площадь, а состояние — лёгкость, дыхание, пространство, которое подстраивается под жизнь.

Задач было много: визуально поднять потолок, «убрать» длинный коридор, спланировать детскую для будущего второго ребёнка, найти место для будуара, расширить кухню-гостиную. Всё решаемо — но интерьер рождается не из ремесла, а из ощущения.

Оно появилось, когда мы рассматривали каталоги Applico. Нисходящие ветви с золотистыми мазками, пушистые злаки в лавандовой дымке — рисунки, которые не привлекают яркостью, а просто существуют. Тогда и стало ясно: интерьер будет светлым, перламутровым, вертикальным.

Вдохновение
Вдохновение

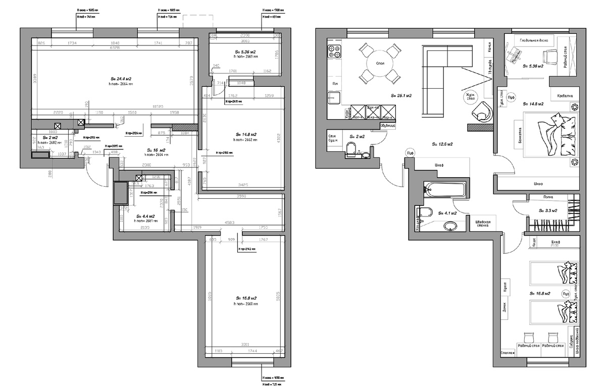
Когда пространство сопротивляется

При первом визите стало понятно: планировка работает против людей. Коридор на 16 м² крал воздух, потолок 2,60 давил. Решение — вернуть эти метры в жизнь квартиры: отдать кухне-гостиной, гардеробной, ванной.

Вход сохранили: компактная прихожая с деревянными панелями и вертикальным светом, а с обратной стороны — шкафы и встроенная техника. Максимум функции в одном объёме.

Планировка до и после
Планировка до и после

Кухня-гостиная: больше воздуха, чем по плану

По документам — небольшая, по смыслу — центр дома. Чтобы она «дышала», всё выстроили вокруг вертикальных линий: шпон, световые полосы, жемчужные фасады, подсветка по периметру.

Отдельная история — свет над столом. Потерять высоту нельзя, поэтому вместо подвеса выбрали акварельные стеклянные капли Cangini & Tucci. Питание подвели сбоку, и капли будто висят на воздухе. Маленький трюк, который сделал пространство легким.

Дизайн кухни-гостиной
Дизайн кухни-гостиной

Спальня: перламутровая тишина

На центральной стене — ручная роспись Applico. Рядом — рельефные панели какао. Палитра жемчужная, сиреневая, с акцентами голубого бархата. Спальня выглядит собранной из ощущений, а не предметов.

Спальня и роспись
Спальня и роспись

Будуар: территория творчества

У хозяйки — работа руками. Ей нужна была собственная зона. Широкий стол, зеркало, манекен, стеклянные перегородки. Не просто рабочее место — личный остров внимания и тишины.

-5

Детская: растущая вместе с семьёй

Сегодня здесь живёт шестилетняя девочка, завтра — двое детей. Две кровати, регулируемые парты, большая система хранения.

Фиолетовый — выбор ребёнка, а мягко-сиреневые стены делают комнату светлой. Обои Applico со злаками — спокойный природный фон.

Фиолетовые оттенки выбрал ребенок
Фиолетовые оттенки выбрал ребенок

Гостевой санузел: маленькое, но выразительное пространство

Здесь вертикаль раскрыта через тонкую мозаику, похожую на дождь. Волнистое зеркало, мягкая подсветка — утренний луч.

Правая стена полностью функциональна: система хранения скрывает стиральную и сушильную машины. Помещение маленькое, но многослойное.

-7

Основная ванная: природная графика и свет

Песочная мозаика напоминает камень, светильники — кристаллы, подсветка поднимает высоту. Повтор плитки связывает пространство с остальными зонами.

-8

Когда интерьер начинает жить

Интерьер рождается не из планировки, а из совпадения с людьми.

Эта квартира обрела свой голос — тихий, вертикальный, лёгкий. Такой, который будет меняться вместе с семьёй, но всегда останется их домом.

#дизайнинтерьера #квартира #ремонт #дизайнпроект #светвинтерьере #стильныйдом #кейсдизайнера #кухнягостиная #интерьерквартиры #обустройстводома #дизайнспальни #детскаякомната #санузел #красивыеквартиры #современныйинтерьер