Добавить в корзинуПозвонить
Найти в Дзене

Ценообразование на индивидуальные проекты

Знакомство, опыт и основные принципы работы Примеры работ: Проект: «Мини дом с баней» Когда я пытаюсь ответить на этот вопрос, завидую людям, предлагающим простую, однозначную услугу. Например, укладка керамической плитки. Цена за 1 м2 умножается на количество метров – всё просто и понятно. Прозрачная система расчёта упрощает коммуникацию с заказчиком. Под словосочетанием «Проект жилого дома» скрывается настолько разный продукт, насколько разная озвучивается цена за тот же м2. Я встречал заявленные цены от 200р/м2, до 50 000р/м2. Низкая цена вызывает недоверие. Так может стоить только «Типовой проект» или «Типовой проект» с минимальными поправками. В «Типовом проекте» нет ничего плохого - он реально экономит время и деньги. Но мы говорим о другом. Об «Индивидуальном проекте». «Индивидуальный проект» - требует гораздо больше потраченного времени. В этом случае важно погрузится в творческий процесс, процесс обсуждения с заказчиком разных сценариев создаваемой среды, поиска гармоничного
Оглавление

Знакомство, опыт и основные принципы работы

Примеры работ:

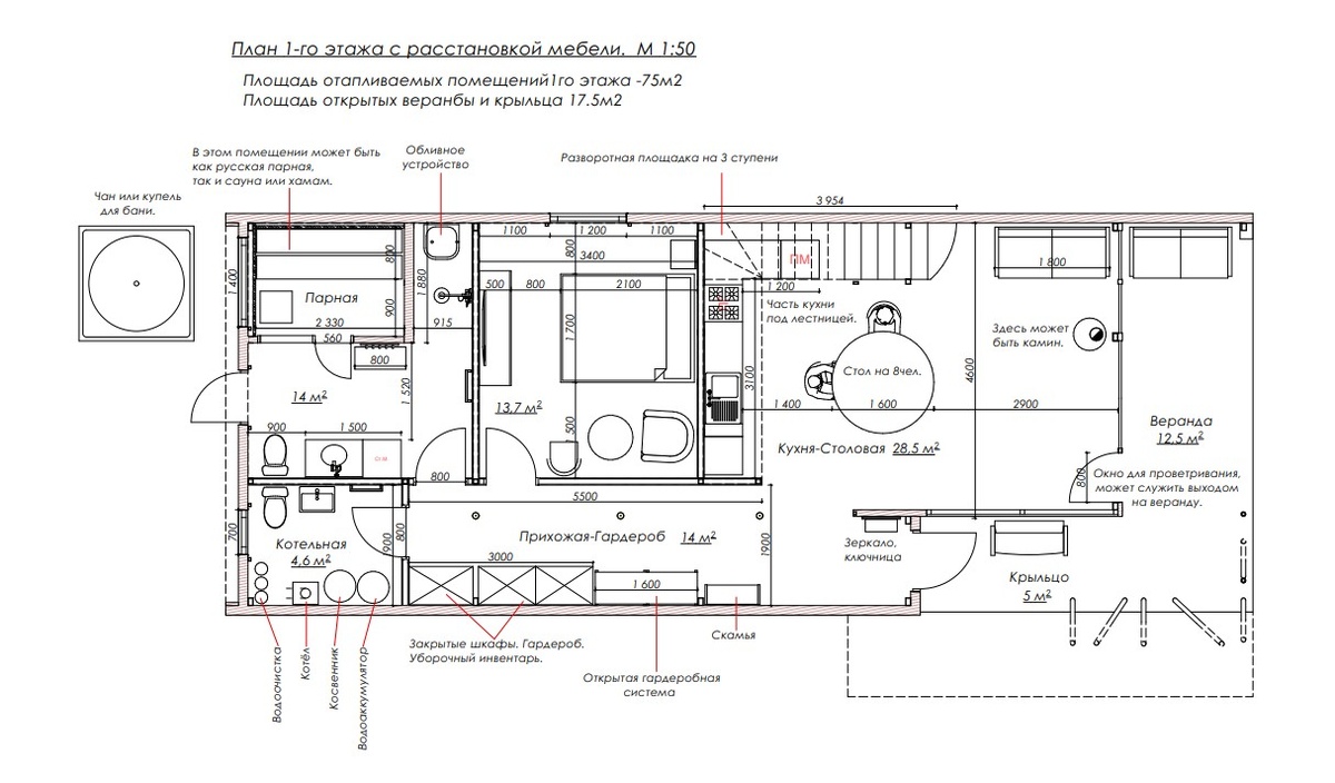
Проект: «Мини дом с баней»

Почему большой разброс цен на проектирование жилого дома?

Когда я пытаюсь ответить на этот вопрос, завидую людям, предлагающим простую, однозначную услугу. Например, укладка керамической плитки. Цена за 1 м2 умножается на количество метров – всё просто и понятно. Прозрачная система расчёта упрощает коммуникацию с заказчиком.

Под словосочетанием «Проект жилого дома» скрывается настолько разный продукт, насколько разная озвучивается цена за тот же м2. Я встречал заявленные цены от 200р/м2, до 50 000р/м2.

Низкая цена вызывает недоверие. Так может стоить только «Типовой проект» или «Типовой проект» с минимальными поправками. В «Типовом проекте» нет ничего плохого - он реально экономит время и деньги. Но мы говорим о другом. Об «Индивидуальном проекте».

«Индивидуальный проект» - требует гораздо больше потраченного времени. В этом случае важно погрузится в творческий процесс, процесс обсуждения с заказчиком разных сценариев создаваемой среды, поиска гармоничного экстерьера дома, вместе с сопутствующими постройками и ландшафтом. Нужно хотя бы пару месяцев, чтобы найти решение и оформить его в чертежи. Вряд ли адекватный архитектор будет работать 2 месяца за 50т.р.

И это только архитектурный раздел.

Высокая стоимость проекта расстраивает, но она более честная. Она учитывает полный комплект проектной документации, над которой работала команда из нескольких человек (Архитектор, Конструктор, Инженеры по коммуникациям, Дизайнеры ландшафта и интерьера) в течении 5-6 месяцев. Стоимость такого проекта начинается от 10 000р/м2.

Есть ещё такой ориентир, по которому уже очень много лет во всём мире определяется стоимость проектной документации, это 5-10% от стоимости всего здания с отделкой под ключ.

Как уменьшить стоимость индивидуального проекта?

Сделать только архитектурный или эскизный проект, а инженерный раздел и конструктивные расчёты делегировать подрядчику.

На мой взгляд комфортная работа над проектом выглядит так:

  • Вначале архитектор коммуницируя с заказчиком создаёт эскизный проект.
  • Затем стоит выбрать и подключить к обсуждению подрядчика, чтобы обсудить задуманное с конструктором и инженерами уже на этом раннем этапе, и внести коррективы.
  • Опираясь на эти коррективы, если они будут, закончить архитектурный проект.
  • Для подрядчика такой проект служит тех. заданием. На его основе узкие специалисты делают для себя схемы инженерных коммуникаций, план стропильной системы и фундамента. Если нужно согласуют с архитектором.
При таком подходе архитектор остаётся независимым, а подрядчик вовлечён в проектирование и несёт ответственность за построенный объект. Я с такими подрядчиками сотрудничаю, но заказчик может пригласить свою строительную компанию.

Архитектурный проект также можно разбить на 3 этапа, и ограничится первым или первыми двумя этапами. Именно на первых этапах решаются задачи комфортного проживания на долгие десятилетия, и экономятся основные деньги, за счёт правильно выбранной концепции.

Разделить архитектурный проект на этапы, удобно по двум причинам:

  • Если Вам не нужен весь объём чертежей, а достаточно посоветоваться, обсудить и утвердиться. А утвердившись довести задуманное до конца самостоятельно.
  • Вторая причина закончить работу над проектом раньше, на одном из этапов – это, не совпадение взглядов и невозможность совместно закончить проект.

1-ый Этап. «Наброски»

Длится не больше недели и стоит 20-30т.р.

За это время мы успеем: 1-Определится с пожеланиями заказчика, 2-Сделать примерный и схематичный генплан участка со всеми сопутствующими объектами, и 3-Примерный план с расстановкой мебели.

2-й Этап. «Эскизный проект»

Длится от 3 недель до 2 месяцев и стоит 500-1000р/м2.

Считаем по периметру дома. Например; проект одноэтажного дома размером 10х10 метров будет стоить 50-100т.р. Другие намеченные постройки на участке не берём в расчет, но и не занимаемся плотно их конструктивом, только расстановкой мебели.

За это время нужно найти окончательную концепцию расположения на участке дома и сопутствующих объектов. Утвердить расстановку мебели.

Состав проекта:

1- Пояснительная записка, 2-Ген.План участка, 3-План с расстановкой мебели, 4-Кладочный план, 5,6.- Разрезы, 7- Разрез по стене. (Для понимания состава пирога стены, кровли и фундамента.) 8 - несколько фотографий визуализации, 9,10,11, 12-Фасады. 13.-План с расстановкой сантехники с привязкой к трубам канализации. 14-План кровли, 15-Развёртка кровли.

3-й Этап. «Архитектурный проект».

Длится 1-3 месяца. (Зависит от объёма работ и вовлечённости заказчика.) Стоит 1000 -1500р/м2. Считаем по периметру дома. Например; проект одноэтажного дома размером 10х10 метров будет стоить 100-150т.р. Другие намеченные постройки на участке не берём в расчет, но и не занимаемся плотно их конструктивом, только расстановкой мебели.

Состав проекта: К уже выполненным чертежам прибавятся 16-План окон и дверей, 17-Ведомость окон, 18-Ведомость дверей, 19-Более подробные планы остальных строений на участке, 20-Дополнительные узлы и решения которые могут возникнуть в процессе проектирования.

Из этого видео вы узнаете, почему проект — это самая важная часть строительства, сколько стоит хороший проект и почему лучше избегать типовых проектных решений. Архитектор Илья Елисеев

ПРОЕКТ ДОМА | ЦЕНА СРОКИ ПОДХОД