Добавить в корзинуПозвонить
Найти в Дзене
ЭТО ВАШ ИНТЕРЬЕР

Что здесь было — не описать словами! Но мы с мужем рискнули и купили эту ветхую квартиру. Фото ДО и ПОСЛЕ поражают

В самом центре величественного Санкт-Петербурга, где история переплетается с современностью, одна семейная пара решила обновить свою жизнь в новой квартире, наполненной светом и стилем. Они сделали шаг в мир, где каждое помещение — это не просто пространство, а отражение их мечты и безграничного вдохновения. Итак, давайте переместимся вместе с ними в эту увлекательную историю преображения. Квартира расположена на тихой улице, затерянной в историческом лабиринте города, где каждое здание хранит своей загадки и тайны прошлого. Площадь квартиры — 64 квадратных метра — достаточно для уютного гнездышка, в котором наши герои планируют проводить время время от времени, наслаждаясь атмосферой северной столицы. Когда они только стали обладателями этого пространства, их ожидания столкнулись с реальностью: старое здание требовало много внимания и силы, чтобы освежить устаревший интерьер. Главной сложностью стала необходимость сохранить несущие стены, что ограничивало возможности в перепланировке.
Оглавление

В самом центре величественного Санкт-Петербурга, где история переплетается с современностью, одна семейная пара решила обновить свою жизнь в новой квартире, наполненной светом и стилем. Они сделали шаг в мир, где каждое помещение — это не просто пространство, а отражение их мечты и безграничного вдохновения. Итак, давайте переместимся вместе с ними в эту увлекательную историю преображения.

Локация, полная жизни

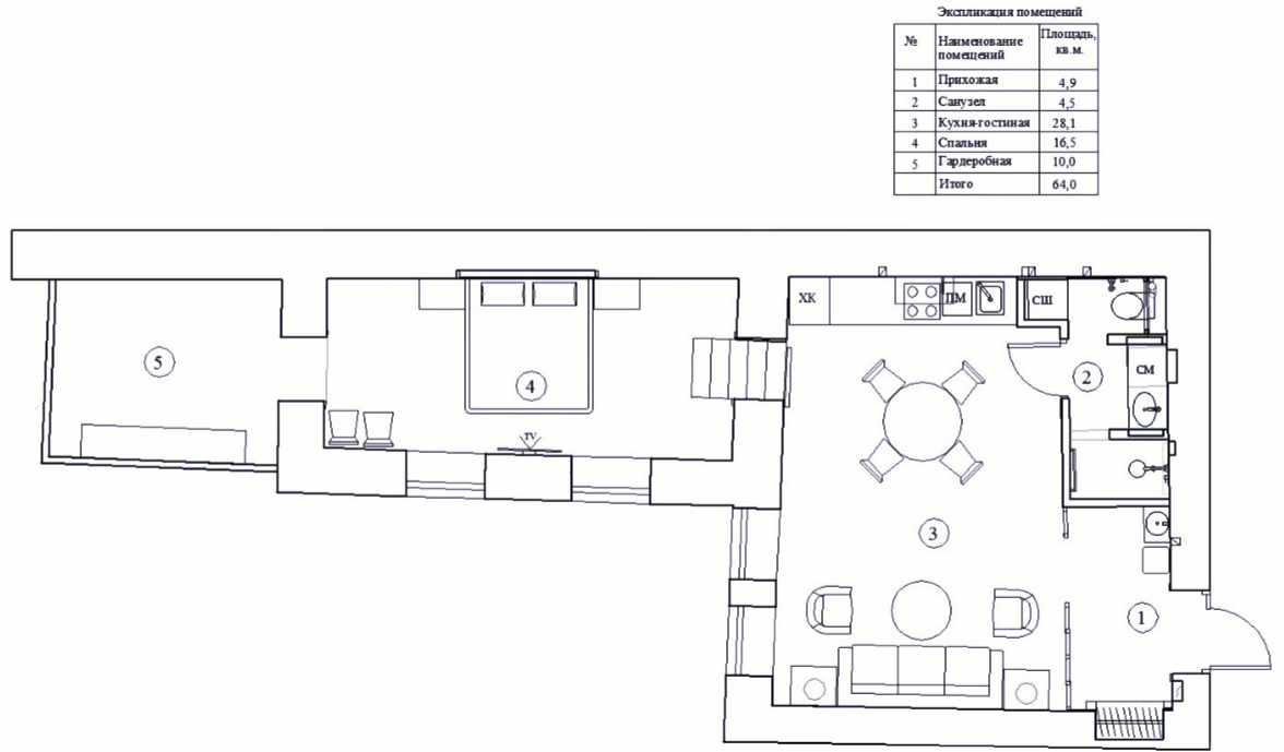
Квартира расположена на тихой улице, затерянной в историческом лабиринте города, где каждое здание хранит своей загадки и тайны прошлого. Площадь квартиры — 64 квадратных метра — достаточно для уютного гнездышка, в котором наши герои планируют проводить время время от времени, наслаждаясь атмосферой северной столицы.

Когда они только стали обладателями этого пространства, их ожидания столкнулись с реальностью: старое здание требовало много внимания и силы, чтобы освежить устаревший интерьер. Главной сложностью стала необходимость сохранить несущие стены, что ограничивало возможности в перепланировке. Однако это не остановило их: они обратились к опытному дизайнеру, который взял на себя задачу создать гармоничное сочетание неоклассики и этнических элементов, наполненных теплотой и стильной элегантностью.

-2

Прихожая

Первые шаги в квартиру делают через прихожую, пространство, которое в первую очередь вызывает восторг и любопытство. Устаревшая отделка, не видевшая свежего ремонта более трех десятков лет, стала объектом полного обновления. Теперь же, в сердце этого пространства, вздымается стеклянная перегородка, отделяющая прихожую от остальной части квартиры. Этот дизайнерский ход не только делит пространство, но и создает эффект легкости и воздушности.

-3

Слева от входа — стильный шкаф, выполненный на заказ, с белыми фасадами, которые идеально контрастируют с темной входной дверью. Когда вы будете проходить мимо, ваше внимание может быть унесено в мир зеркальных отражений: одна из стен прихожей полностью покрыта зеркалом с геометрическими элементами, которые отражают другие детали интерьера и создают захватывающую игру света и пространства.

Однако наиболее примечательной деталью является раковина в прихожей — неожиданный, но, несомненно, практичный элемент. Здесь можно быстро освежиться после прогулки по городу, умыть ноги своему четвероногому другу или протереть обувь, прежде чем войти в дом. Это сразу же задает тон всему пространству: здесь ценят удобство и практичность.

-4

Гостиная

Двигаясь дальше, попадаем в светлую и уютную гостиную. Здесь дизайнер, словно художник, создал вдохновляющую палитру: светлые однотонные стены, вперемешку с насыщенными и теплыми цветами мебели. Главным акцентом стало сочетание большого темного дивана и двух ярких красных кресел, создающих атмосферу дружелюбия и уюта, в которой легко собираются семьи и друзья.

-5

Приглушенный свет, проникающий через окна, выходящие на двор-колодец, приобрел волшебство благодаря витражам в стиле Тиффани. Эти красочные стеклянные вставки обрамлены подсветкой, которая мягко освещает комнату, придавая ей некую магию и загадочность.

-6

Чтобы обеспечить максимальное количество солнечного света, откосы окон были дополнительно обработаны зеркальными панелями, что создает эффект увеличенного пространства и светимости.

Кухня

Кухня, которая когда-то была местом с газовой плитой, теперь олицетворяет современные технологии и стиль. Вместо традиционного газового оборудования хозяева выбрали индукционную плиту. Этот переход был не только шагом к новым кулинарным экспериментам, но и стремлением к упрощению.

-7

Поскольку кухня лишена природного света, было решено объединить её с просторной гостиной, создавая идеальное место для общения и семейных трапез. Первоначальная идея о «островке» с раковиной в центре кухни была отклонена — из-за ограниченных возможностей, связанных с коммуникациями.

Тем не менее, харизматичный черный кухонный гарнитур, прослеживаемый аккуратными линиями, стал центральной точкой кухни, удачно контрастируя со светлыми стенами и потолком.

-8

Примечательной особенностью является специальный фартук, который был изготовлен в той же мастерской, что и перегородка, разделяющая входную зону и гостиную. Его дизайнерское решение гармонировало с общей концепцией пространства, создавая единый стиль.

-9

Однако настоящей жемчужиной всей кухни стала откатная дверь, ведущая в спальню. Эта древняя дверь, привезенная с востока, украшенная ручной чеканкой и инкрустациями из верблюжьей кости, вносит в помещение атмосферу настоящего бесконечного путешествия. Несмотря на свой большой вес, современный механизм позволяет легко открывать и закрывать её, как будто она сама знает, когда необходимо впустить гостей.

-10

Спальня

Когда приступили к ремонтным работам, мастера наткнулись на загадку: в спальне существовало второе перекрытие, на метр ниже уровня пола. Этот необычный архитектурный штрих был добавлен, когда несколько зданий были объединены в одно. Дизайнер принял смелое решение оставить пол на нижнем уровне, что позволило создать уютную атмосферу и углубить восприятие пространства.

-11

Постельное место в спальне размещено в специальной нише, обрамленной узорчатыми обоями, которые создают эффект спокойствия и уюта. Эти детали словно обнимают жильцов, позволяя им погружаться в мир снов и расслабления после бурного дня на улицах Санкт-Петербурга.

Когда вы входите в эту атмосферную спальню, словно окунаетесь в нежные объятья утреннего рассвета. Стены, окрашенные в светлые тона, создают ощущение простора и легкости, а яркие акценты расставляют необходимую динамику. Прикоснувшись к кровати, вы сразу понимаете, что это не просто предмет мебели — это центр вашего личного комфорта и отдыха. Синий оттенок, как будто бы заимствованный у бездонного океана, привносит в пространство ощущение спокойствия и глубины.

-12

Окна, обрамленные шторами с золотистым цветом, играют с солнечными лучами, создавая удивительные блистательные эффекты. Свет, проникая через эти мягкие ткани, наполняет комнату теплом и сиянием, превращая обычные утренние часы в нечто волшебное. Возникает желание остановиться на мгновение и насладиться этим моментом, когда мечты и реальность пересекаются в уютном гнездышке.

Ванная комната

Следующий шаг, который через порог двери ведет в ванную комнату, погружает вас в мир, где свет и тень танцуют в неразрывной гармонии. Пространство оформлено в светлых, деликатных тонах, которые создают иллюзию бесконечности. Однако, контрастируя с этими нежными оттенками, черные элементы — раковина, инсталляция и стиральная машина — становятся яркими акцентами, притягивающими взгляд и добавляющими индивидуальности.

-13

Над унитазом, словно шедевр современного искусства, расположены витражные дверцы. Они не только исполняют практическую функцию, скрывая техническую нишу, но и становятся настоящим украшением места. Каждый раз, когда открываются эти двери, возникает чувство таинства, как будто за ними сокрыты истории прошлого, которые ждут своего часа, чтобы быть рассказанными.

-14

Эта игра контрастов в ванной комнате отражает стремление дизайнеров создать среду, сочетающую в себе элегантность и функциональность. Каждый элемент продуман до мелочей, что делает пространство не только стильным, но и удобным для повседневного использования.