Найти в Дзене
ГосземляРФ

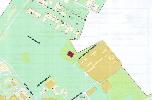
Название: Земельный участок с кадастровым номером 40:04:050107:1175 площадь 2000 кв.м., по адресу Калужская область, Дзержинский район, п

Название: Земельный участок с кадастровым номером 40:04:050107:1175 площадь 2000 кв.м., по адресу Калужская область, Дзержинский район, п. Товарково Канал: Госземля Калужская область Область: обл Калужская Район: м.р-н Дзержинский Населенный пункт: г.п. поселок Товарково, п Товарково Локация: Смотреть на карте ВРИ: Для ведения личного подсобного хозяйства (приусадебный земельный участок) Кадастровый номер: 40:04:050107:1175 Кадастровая стоимость: - Вид сделки: Аренда Площадь: 2000 м² Начальная цена: - руб. Дата завершения: 28.12.2025 Подробнее: ГИС ТОРГИ #госземля #земляотгосударства #земля #земельныйучасток #земельныеторги #торги #аукцион #арендаземли #аренда #калужскаяобласть

Название: Земельный участок с кадастровым номером 40:04:050107:1175 площадь 2000 кв.м., по адресу Калужская область, Дзержинский район, п. Товарково

Канал: Госземля Калужская область

Область: обл Калужская

Район: м.р-н Дзержинский

Населенный пункт: г.п. поселок Товарково, п Товарково

Локация: Смотреть на карте

ВРИ: Для ведения личного подсобного хозяйства (приусадебный земельный участок)

Кадастровый номер: 40:04:050107:1175

Кадастровая стоимость: -

Вид сделки: Аренда

Площадь: 2000 м²

Начальная цена: - руб.

Дата завершения: 28.12.2025

Подробнее: ГИС ТОРГИ

#госземля #земляотгосударства #земля #земельныйучасток #земельныеторги #торги #аукцион #арендаземли #аренда #калужскаяобласть