Добавить в корзинуПозвонить
Найти в Дзене

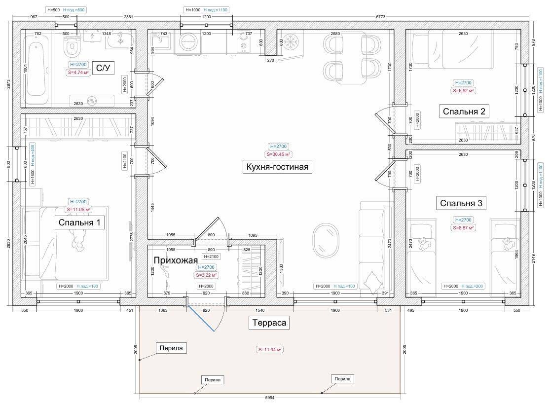
Мы заключили ещё один договор на строительство модульного дома с индивидуальной планировкой «Карагай» 78м2

• Площадь дома: 66м2 • Увеличенная терраса: 12м2 Цена от 3 466 290 рублей. Точную стоимость рассчитываем индивидуально в зависимости от дополнительных опций и удаленности доставки. Что мы предлагаем: • Качественный монтаж в кратчайшие сроки • Продуманный проект с оптимальной планировкой • Современные материалы и технологии строительства • Полное соответствие всем строительным нормам Хотите узнать больше о наших проектах? Пишите в личные сообщения или звоните — мы с радостью ответим на все вопросы! 89514420666 Олег 89995837972 Евгений 89049704593 Екатерина 📡: https://vk.com/ stroikarkaschel 😍: https://www.instagram.com/stroikarkas74?igsh=ZGM3eDRmdHRnNmRx&utm_source=qr #модульныедома #строительстводомов #семейноежильё #ипотека6процентов #материнскийкапитал #доммечты #стройка #строительство

Мы заключили ещё один договор на строительство модульного дома с индивидуальной планировкой «Карагай» 78м2

• Площадь дома: 66м2

• Увеличенная терраса: 12м2

Цена от 3 466 290 рублей. Точную стоимость рассчитываем индивидуально в зависимости от дополнительных опций и удаленности доставки.

Что мы предлагаем:

• Качественный монтаж в кратчайшие сроки

• Продуманный проект с оптимальной планировкой

• Современные материалы и технологии строительства

• Полное соответствие всем строительным нормам

Хотите узнать больше о наших проектах?

Пишите в личные сообщения или звоните — мы с радостью ответим на все вопросы!

89514420666 Олег

89995837972 Евгений

89049704593 Екатерина

📡: https://vk.com/

stroikarkaschel

😍: https://www.instagram.com/stroikarkas74?igsh=ZGM3eDRmdHRnNmRx&utm_source=qr

#модульныедома #строительстводомов #семейноежильё #ипотека6процентов #материнскийкапитал #доммечты #стройка #строительство

-2