Добавить в корзинуПозвонить
Найти в Дзене
«Калужские новости»

Новый жилой район на Правом берегу: калужане опасаются пробок и нехватки школ

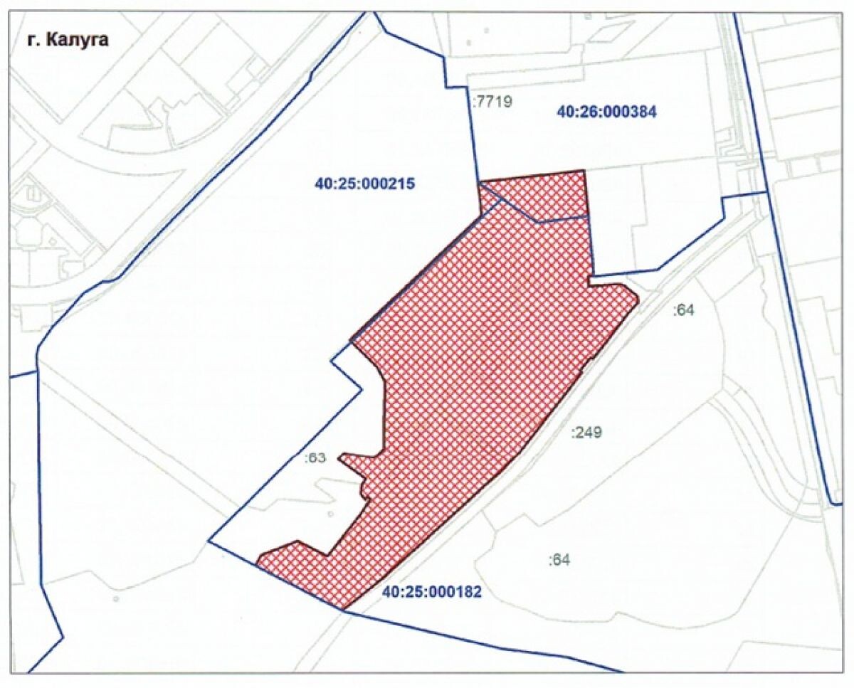
Решение о комплексном развитии незастроенной территории у 3-го Академического проезда на Правом берегу вызвало широкий резонанс среди калужан. Напомним, речь идёт о 233,5 тыс. кв. метров, где планируется построить новый жилой район. Объектов под снос нет, проект будет реализован по итогам торгов за 13 лет. Новость быстро разлетелась по местным сообществам, где жители выразили обеспокоенность судьбой микрорайона, уже страдающего от перегруженной транспортной сети. Многие калужане уверены: прежде чем строить новые дома, нужно решить проблему выезда с Правобережья. «Вообще не выехать будет. Пару мостов через Оку не хотят ли прежде построить?» — возмущается одна из жительниц. Калужане отмечают, что в часы пик движение «встаёт» не только утром, но и вечером: нагрузка на Гагаринский мост и Тульское шоссе давно достигла предела. «Дорога одна на целый город» — резюмирует другой комментатор. Несколько горожан предложили вернуться к идее нового моста или полноценной альтернативной развязки. Втор

Решение о комплексном развитии незастроенной территории у 3-го Академического проезда на Правом берегу вызвало широкий резонанс среди калужан. Напомним, речь идёт о 233,5 тыс. кв. метров, где планируется построить новый жилой район. Объектов под снос нет, проект будет реализован по итогам торгов за 13 лет.

Новость быстро разлетелась по местным сообществам, где жители выразили обеспокоенность судьбой микрорайона, уже страдающего от перегруженной транспортной сети.

Многие калужане уверены: прежде чем строить новые дома, нужно решить проблему выезда с Правобережья.

«Вообще не выехать будет. Пару мостов через Оку не хотят ли прежде построить?» — возмущается одна из жительниц.

Калужане отмечают, что в часы пик движение «встаёт» не только утром, но и вечером: нагрузка на Гагаринский мост и Тульское шоссе давно достигла предела.

«Дорога одна на целый город» — резюмирует другой комментатор.

Несколько горожан предложили вернуться к идее нового моста или полноценной альтернативной развязки.

Второй главный страх – отсутствие соцобъектов.

«Школа будет?»

«А потом все в одну школу в четыре смены?»

Люди напоминают: на Правом берегу уже есть долгострои. Например, строительство школы на Комфортной так и не завершено, а в Кречетниковом парке к строительству даже не приступали, хотя по проекту школа там предусмотрена.

Звучат вопросы и к состоянию коммунальной инфраструктуры:

«Канализация не справляется, дождевая вода не уходит».

«Зачем столько жилья, если население убывает?»

Некоторые жители считают, что темпы жилищного строительства опережают потребности:

«Губернаторы должны отчитаться, что наращивают квадратные метры. А инфраструктура? А люди?»

Другие убеждены в обратном – спрос на жильё есть:

«Посмотрите на новые ИЖС-посёлки – строится много и активно».

«Сначала воткнём коробку – потом будем думать»

Сквозной мотив обсуждений – недоверие к планированию застройки. Калужане боятся повторения сценария уже существующих микрорайонов, где дома выросли быстрее дорог, парковок и медучреждений.

«Принимать решения они научились. Отвечать за ошибки – нет».

Есть и прямые обвинения:

«Всех интересуют только деньги и больше ничего».

Часть жителей переживает, что новые кварталы «съедят» зелёные зоны:

«Парк обнесут высотками и всё».

Проект планировки уже утверждён. Впереди торги на право освоения участка. После заключения договора у инвестора будет 13 лет, чтобы построить новый район.

Но общественное мнение ясно: жители Правого берега ждут от властей открытого диалога и гарантированного решения ключевых проблем – транспорта, школ, медицины и инженерных сетей.