Добавить в корзинуПозвонить
Найти в Дзене

#Krasnov_Токсово

#Krasnov_Токсово Как вы помните в проекте изначально заложена тёмная палитра. Освещение и материалы привязаны к архитектуре, а не наоборот. Акцентная стена за изголовьем — один из ключевых элементов. В спальне три материала, собранные по принципу ритма: вертикальные панели с видом жженого дерева, глубокий графит с текстурой, центральная панель с современным этническим орнаментом — отсылка к традиционным славянским узорам, но в минималистичной геометрии. А ещё больше решений — в презентации. Если планируете дизайн и ремонт, скачайте по ссылке: https://clck.ru/3QXSte . Там собраны интерьеры, с которых часто начинается проект. Материалы: матовое дерево, фактурная штукатурка, плотный текстиль и немного металла. Цвет — приглушённый, диапазон от глубокого серо-коричневого до кремового. Контраст — только за счёт фактур. Освещение: скрытое, направленное по краям и в верхнюю конструкцию. Нет точечной засветки. Свет создаёт ощущение глубины, не вмешивается в композицию. Планировка: Все ра

#Krasnov_Токсово

Как вы помните в проекте изначально заложена тёмная палитра. Освещение и материалы привязаны к архитектуре, а не наоборот.

Акцентная стена за изголовьем — один из ключевых элементов.

В спальне три материала, собранные по принципу ритма: вертикальные панели с видом жженого дерева, глубокий графит с текстурой, центральная панель с современным этническим орнаментом — отсылка к традиционным славянским узорам, но в минималистичной геометрии.

А ещё больше решений — в презентации. Если планируете дизайн и ремонт, скачайте по ссылке: https://clck.ru/3QXSte .

Там собраны интерьеры, с которых часто начинается проект.

Материалы: матовое дерево, фактурная штукатурка, плотный текстиль и немного металла. Цвет — приглушённый, диапазон от глубокого серо-коричневого до кремового. Контраст — только за счёт фактур.

Освещение: скрытое, направленное по краям и в верхнюю конструкцию. Нет точечной засветки. Свет создаёт ощущение глубины, не вмешивается в композицию.

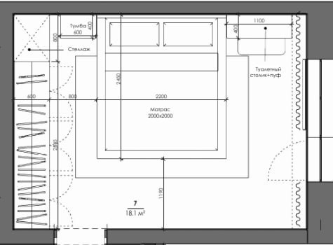
Планировка: Все размеры рассчитаны так, чтобы не пришлось менять модели мебели после закупки, вертикальные линии (ручки, панели) совпадают с осью кровати — поэтому интерьер выглядит собранным даже в тёмной палитре

Важно не просто выбрать оттенок, а точно рассчитать масштаб, освещение и конструктив.

Мы делаем проекты с точностью до сантиметра, чтобы после ремонта не пришлось передвигать мебель, переделывать электрику и «облегчать» интерьер светлой краской.

-2
-3
-4
-5
-6
-7