Найти в Дзене
ЭТО ВАШ ИНТЕРЬЕР

Мне 55 лет и я наконец-то могу пожить для себя! Я решила дать своей старой и темной квартире новую светлую жизнь (Показала фото До и После)

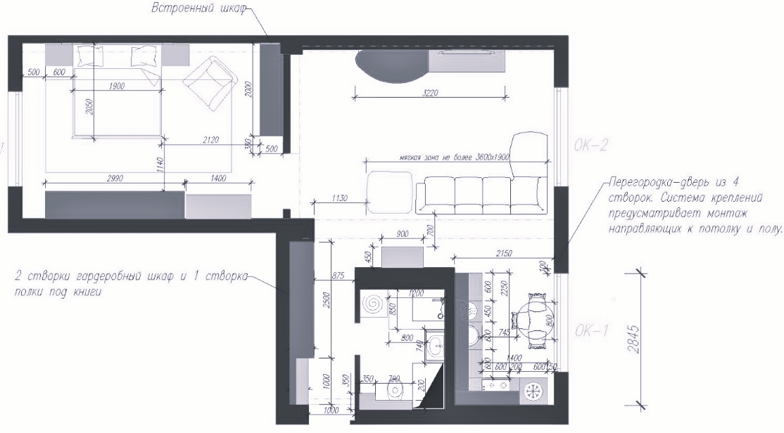
В Алма-Ате, где традиции смешиваются с урбанизмом, женщина средних лет решила обновить свою квартиру в 64 кв. м не просто ради красоты, а чтобы отразить личный путь к спокойствию после лет семейных хлопот. Старый интерьер, унаследованный от 1990-х, казался тесным и темным, вызывая ощущение замкнутости. Она хотела света, воздуха и организованности без перепланировки — для сохранения прочности здания в старом районе. Центральная идея: заменить темное на светлое, добавить зеркала для иллюзии пространства и спроектировать зоны хранения, которые облегчат повседневность. Это решение основано на принципах визуального дизайна: отражения увеличивают площадь на 10-15%, что подтверждено исследованиями в интерьерной психологии. Светлые, пастельные тона выбраны, чтобы бороться с сезонной хандрой в континентальном климате Казахстана. Прихожая стала зоной порядка, где порядок рождает спокойствие, избавляя от утренней суеты. Желание хозяйки — расширить хранение — реализовали, обновив отделку: шкафы
Оглавление

В Алма-Ате, где традиции смешиваются с урбанизмом, женщина средних лет решила обновить свою квартиру в 64 кв. м не просто ради красоты, а чтобы отразить личный путь к спокойствию после лет семейных хлопот. Старый интерьер, унаследованный от 1990-х, казался тесным и темным, вызывая ощущение замкнутости.

Она хотела света, воздуха и организованности без перепланировки — для сохранения прочности здания в старом районе. Центральная идея: заменить темное на светлое, добавить зеркала для иллюзии пространства и спроектировать зоны хранения, которые облегчат повседневность.

Это решение основано на принципах визуального дизайна: отражения увеличивают площадь на 10-15%, что подтверждено исследованиями в интерьерной психологии. Светлые, пастельные тона выбраны, чтобы бороться с сезонной хандрой в континентальном климате Казахстана.

-2

Прихожая

Прихожая стала зоной порядка, где порядок рождает спокойствие, избавляя от утренней суеты. Желание хозяйки — расширить хранение — реализовали, обновив отделку: шкафы из 1990-х, громоздкие и неудобные, заменили на светлые с зеркалами, создающими глубину, как бесконечные городские горизонты. Рядом поставили мягкую кушетку с открытыми полками под обувь, предотвращая хаос; над ней антресольные секции с безопасной лестницей для доступа.

-3

Напольная плитка из натурального камня — морозостойкая и влагостойкая — решает проблему алматинской грязи. Теперь прихожая не вход, а переход к домашнему миру, где раздвижная зеркальная дверь символизирует шаг от стресса к комфорту, и хозяйка отмечает легкость, словно после прогулки в парке.

Гостиная и кухня

Гостиная — сердце квартиры. Для хозяйки это пространство должно было эволюционировать из тесного, темного угла с акцентом на практичность в открытую зону отдыха, где светлые тона и зеркала создают ощущение простора, едва ли не двоящего площадь.

-4

Вдохновение пришло от воспоминаний о детстве в степях, где горизонты казались безграничными — дизайнеры повторили эту идею, убрав ненужные перегородки и добавив светоотражающие элементы. Замена темных стен на пастельные, почти молочные, не только снижает напряжение глаз, что особенно важно для зрелого возраста (по данным исследований офтальмологов, естественный свет улучшает зрение на 20-30%), но и создает атмосферу умиротворения, контрастирующую с суетой алматинских улиц.

-5

Мягкий диван с подушками в нейтральных оттенках стал островом комфорта, где хозяйка теперь любит почитать книги. Напротив дивана расположили ТВ-стенку, которая осталась от прежнего интерьера (она очень нравилась владелице и поэтому ее было решено вписать в новый интерьер). А за мягкой группой был установлен стильный биокамин, о котором всегда мечтала хозяйка.

-6

В итоге гостиная из места вынужденных компромиссов превратилась в семейный центр, где каждый предмет способствует гармонии, а хозяйка отмечает, как пространство теперь дышит жизнью, напоминая о бесконечных возможностях, которые открылись с этим шагом.

Кухня, смежная и функциональная, стала лабораторией для кулинарных экспериментов с блюдами традиционной казахской кухни, от бешбармака до плова, но в современном ключе. Желание хозяйки — порядок и легкость в приготовлении — воплотилось в светлой мебели, лишенной массивных элементов прошлого, вместо них — гладкие фасады в в молочном оттенке. Дизайнеры учли эргономику: рабочая зона на уровне глаз для комфорта в зрелом возрасте, с продуманным хранением инвентаря в глубоких ящиках под столешницей.

-7

Холодильник замаскировали, чтобы не нарушать эстетику. Напольная плитка в кухне, подобная прихожей, выдерживает температуры колебания, типичные для региона. Хозяйка делится историей: раньше кухня вызывала стресс от поиска вещей среди хаоса, теперь каждый предмет на своем месте, и приготовление стало удовольствием, полным воспоминаний о семейных застольях. В этой пространстве соединились прагматизм и тепло — кухня не просто готовит еду, она готовит моменты радости для тех, кто здесь живет.

-8

Спальня и Ванная комната

Спальня, последнее прибежище в квартире хозяйки, превратилась из тесной каморки с пожелтевшими обоями в оазис покоя, вдохновленный казахскими степями и шатровыми юртами предков. Этот мотив воплотился в светлых стенах теплого бежевого оттенка с текстурой, имитирующей песок, и прикроватными столиками из натурального камня, приносящими ощущение земли.

-9

Убирание громоздкой мебели высвободило пространство, добавив зону для медитации у окна — маленькая скамья с подушками стала местом утренних размышлений, где хозяйка наблюдает за восходом солнца.

-10

Кровать с высоким изголовьем стала центром, а встроенные шкафы с зеркалами визуально увеличили комнату, маскируя хранение одежды и белья без загромождения. Мягкое освещение создает атмосферу заката, идеальную для чтения перед сном, когда шум города затихает. Элементы зелени, как фикус в углу, добавляют свежести. Все создано для комфорта в зрелом возрасте, с акцентом на удобство и минимализм.

-11

Ванная комната, компактная и практичная, эволюционировала из сырого пространства с трещинами в плитке в современное санузел, где чистота и функциональность гармонируют с эстетикой. Вдохновение пришло от горных источников Казахстана, как Боровое озеро с его прозрачной водой, — дизайнеры использовали плитку с текстурой камня создавая ощущение чистоты и свежести.

Увеличение зеркала над раковиной с подсветкой не только удваивает пространство визуально, но и облегчает будничные ритуалы, особенно при слабом освещении вечеров. Душевая кабина с тропическим душем заменила старую ванну, сэкономив место и добавив терапевтический эффект — хозяйка делится, как ежедневные процедуры теперь восстанавливают силы после долго трудового дня.

-12

Хранение в навесных шкафчиках с влагостойкими полками организовано для удобства: косметика и полотенца на виду, но без хаоса, а теплый пол, имитирующим камень, предотвращает скольжение, что особенно важно после 50 лет.

Проект перепланировки квартиры занял несколько месяцев и был вдохновлен казахскими традициями. Каждая комната, от холла до гостиной, отобразила элементы культуры: натуральные материалы, устойчивые цвета и узоры, что сделало пространство более комфортным.