Добавить в корзинуПозвонить
Найти в Дзене
Гармония жизни

Базовый проект дизайна помещения.

«Что входит в базовый проект дизайна интерьера? Разбираем по полочкам!» Привет, друзья! ✨ Часто ко мне обращаются с вопросом: «Мы хотим сделать дизайн-проект, но не знаем, что он в себя включает и за что мы платим?». Давайте разложим всё по полочкам и посмотрим, из чего состоит классический базовый проект — тот необходимый минимум, который спасет от ошибок и хаоса во время ремонта. Итак, готовый проект условно можно разделить на две большие части: «Бумажную» (или эскизную) и «Рабочую». --- 📝 ЧАСТЬ 1. ЭСКИЗНЫЙ ПРОЕКТ («Бумажная» часть) Это — «лицо» вашего будущего дома. Здесь мы решаем, КАК всё будет выглядеть. · Планировочное решение: Определяемся с расстановкой мебели и зонированием. Сносим ли стены? Где будет стоять диван? Где розетки? Это основа основ! · Стилевое решение (концепция): Подбираем референсы, цветовую гамму, общую атмосферу. Будет ли это сканди, лофт или неоклассика? · 3D-визуализация: Самый зрелищный этап! Вы увидите фотореалистичные картинки вашего интерьера со

«Что входит в базовый проект дизайна интерьера? Разбираем по полочкам!»

Привет, друзья! ✨

Часто ко мне обращаются с вопросом: «Мы хотим сделать дизайн-проект, но не знаем, что он в себя включает и за что мы платим?».

Давайте разложим всё по полочкам и посмотрим, из чего состоит классический базовый проект — тот необходимый минимум, который спасет от ошибок и хаоса во время ремонта.

Итак, готовый проект условно можно разделить на две большие части: «Бумажную» (или эскизную) и «Рабочую».

---

📝 ЧАСТЬ 1. ЭСКИЗНЫЙ ПРОЕКТ («Бумажная» часть)

Это — «лицо» вашего будущего дома. Здесь мы решаем, КАК всё будет выглядеть.

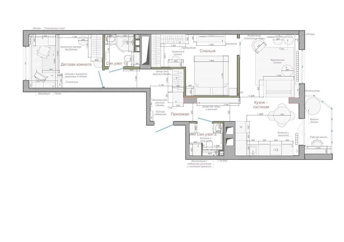
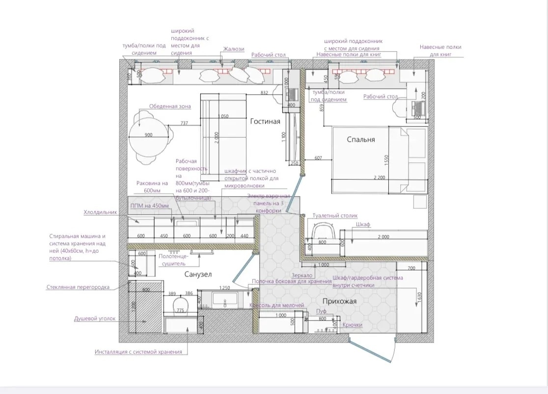
· Планировочное решение: Определяемся с расстановкой мебели и зонированием. Сносим ли стены? Где будет стоять диван? Где розетки? Это основа основ!

· Стилевое решение (концепция): Подбираем референсы, цветовую гамму, общую атмосферу. Будет ли это сканди, лофт или неоклассика?

· 3D-визуализация: Самый зрелищный этап! Вы увидите фотореалистичные картинки вашего интерьера со всех ракурсов. Это помогает сразу понять и, если что, скорректировать задумку.

---

⚒️ ЧАСТЬ 2. РАБОЧИЙ ПРОЕКТ («Инструкция» для строителей)

Это — техническая документация, по которой работают прорабы и мастера. Без неё начинать ремонт — всё равно что строить дом без фундамента.

· Обмерный чертеж: Точный план помещения «как есть» до ремонта.

· План демонтажа и монтажа стен: Где и что мы сносим и возводим.

· План расстановки мебели: Тот же, что и в эскизной части, но в виде четкого чертежа.

· План полов: Указывается тип покрытия (плитка, ламинат) и уровни стяжки.

· План потолков: Вид, тип, уровни, карнизы и расположение светильников.

· План освещения: Привязка всех светильников, выключателей и их групп (где какая клавиша что включает).

· План розеток и электроснабжения: Расположение всех розеток, выключателей, слаботочных точек (интернет, ТВ).

· План сантехнических приборов: Разводка труб, привязка смесителей, унитаза, душевой кабины.

---

Почему это важно?

✅ Экономит деньги: Вы заранее знаете, сколько и каких материалов нужно, нет лишних покупок и переделок.

✅ Экономит нервы и время: Строители работают по четкому плану, вам не приходится каждые 5 минут решать, куда поставить розетку.

✅ Гарантирует результат: В итоге вы получаете именно тот интерьер, который видели на визуализациях, а не «нечто», получившееся по воле случая.

Надеюсь, теперь стало немного понятнее! 😊

Если остались вопросы — смело задавайте в комментариях!

---

✍️

#дизайнинтерьера #ремонт #дизайнпроект #интерьер #квартира #вк_дизайн #дизайнерин

-2

терьера #базовыйпроект #ремонтквартиры #vk_дизайн