Найти в Дзене
«Калужские новости»

Новый жилой район появится на Правобережье Калуги?

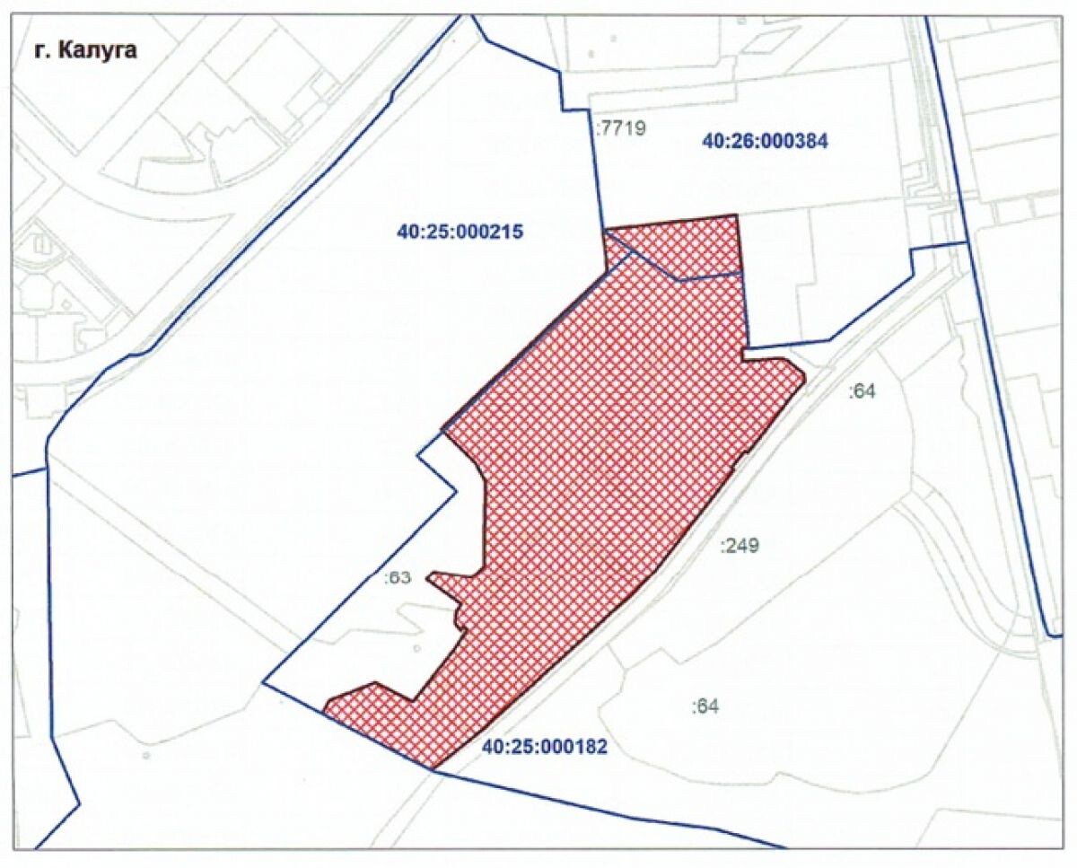
Администрация Калуги приняла решение о комплексном развитии незастроенной территории в районе 3-го Академического проезда на Правом берегу. Соответствующее постановление подписано главой города Дмитрием Денисовым и опубликовано 24 ноября. Речь идет об участке общей площадью 233 тыс 465 квадратных метров. Согласно документу, опубликованному на официальном сайте городской администрации, данная территория будет развиваться комплексно. В рамках проекта планируется возведение нового жилого района. Объекты, подлежащие сносу или реконструкции, на данной территории отсутствуют. Реализация проекта комплексного развития территории будет осуществляться по результатам торгов на право заключения соответствующего договора. Максимальный срок реализации проекта установлен в 13 лет с момента заключения договора. Документация по планировке территории утверждена постановлением городской управы. Определены основные виды разрешенного использования земельных участков и объектов капитального строительства, а

Администрация Калуги приняла решение о комплексном развитии незастроенной территории в районе 3-го Академического проезда на Правом берегу. Соответствующее постановление подписано главой города Дмитрием Денисовым и опубликовано 24 ноября.

Речь идет об участке общей площадью 233 тыс 465 квадратных метров. Согласно документу, опубликованному на официальном сайте городской администрации, данная территория будет развиваться комплексно.

В рамках проекта планируется возведение нового жилого района. Объекты, подлежащие сносу или реконструкции, на данной территории отсутствуют.

Реализация проекта комплексного развития территории будет осуществляться по результатам торгов на право заключения соответствующего договора. Максимальный срок реализации проекта установлен в 13 лет с момента заключения договора.

Документация по планировке территории утверждена постановлением городской управы. Определены основные виды разрешенного использования земельных участков и объектов капитального строительства, а также перечень предельных параметров разрешенного строительства и реконструкции в границах территории.