Найти в Дзене
Берег Песочной

Представляем наш новый проект — Дом БП-156 в стиле Барнхаус

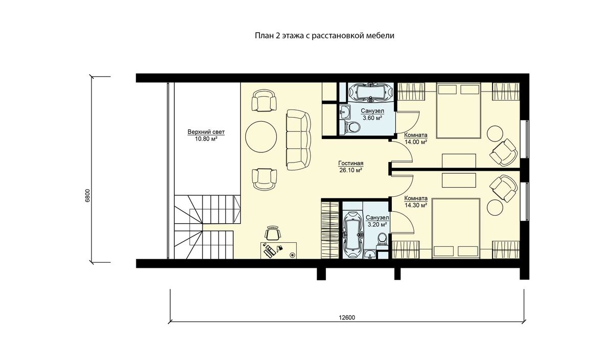
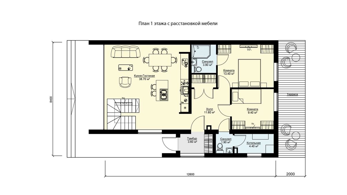
🏡 Представляем наш новый проект — Дом БП-156 в стиле Барнхаус! Общая площадь 179 м², включает просторную террасу. Построен из ЖБ-панелей БЭНПАН и украшен внешней отделкой фальц в сочетании с планкеном, что придает дому современный и уютный вид. Планировка дома: Первый этаж: тамбур, просторный холл, 2 спальни (одна с собственным санузлом), гостевой санузел, котельная и светлая гостиная с кухней, из которой открывается панорамный вид на участок. Из спален есть выход на террасу — место для отдыха на свежем воздухе. Второй этаж: атриумное пространство с видом на гостиную из зоны отдыха, а также 2 спальни с отдельными санузлами. Этот дом — идеальное сочетание стиля, функциональности и комфорта. Свяжитесь с нами, чтобы узнать больше! Узнайте больше о проекте: https://beregpesochnoy.ru/house/lot-no7b
📞 +7 (495) 260-98-32 Этот уютный и современный дом отлично подойдет для семейной жизни в окружении природы и комфорта! #ЗагородныйДом #ПроектПБ154 #Строительство #ЖильеМечты #СовременныйКоттед

🏡 Представляем наш новый проект — Дом БП-156 в стиле Барнхаус! Общая площадь 179 м², включает просторную террасу. Построен из ЖБ-панелей БЭНПАН и украшен внешней отделкой фальц в сочетании с планкеном, что придает дому современный и уютный вид.

-2
-3
-4
-5
-6
-7

Планировка дома:

Первый этаж: тамбур, просторный холл, 2 спальни (одна с собственным санузлом), гостевой санузел, котельная и светлая гостиная с кухней, из которой открывается панорамный вид на участок. Из спален есть выход на террасу — место для отдыха на свежем воздухе.

Второй этаж: атриумное пространство с видом на гостиную из зоны отдыха, а также 2 спальни с отдельными санузлами.

Этот дом — идеальное сочетание стиля, функциональности и комфорта. Свяжитесь с нами, чтобы узнать больше!

Узнайте больше о проекте: https://beregpesochnoy.ru/house/lot-no7b
📞 +7 (495) 260-98-32

Этот уютный и современный дом отлично подойдет для семейной жизни в окружении природы и комфорта!

#ЗагородныйДом #ПроектПБ154 #Строительство #ЖильеМечты #СовременныйКоттедж #Энергоэффективность #ДомМечты #ЖБПанели