Добавить в корзинуПозвонить
Найти в Дзене
ГосземляРФ

Название: указан в разделе документы

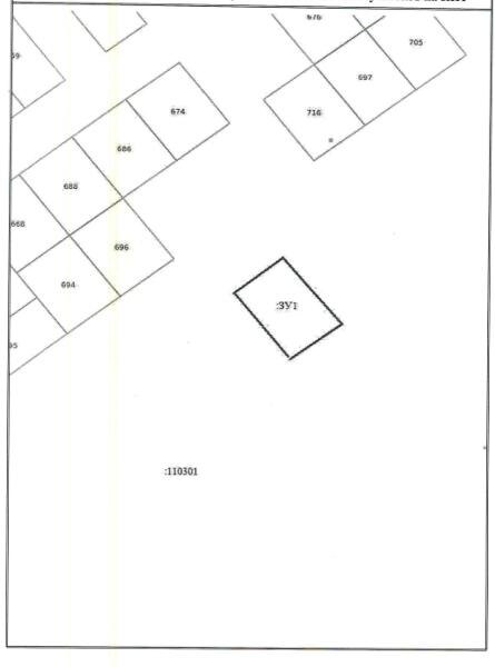
Название: указан в разделе документы Канал: Госземля Республика Башкортостан Область: Респ Башкортостан с. Кармаскалы Район: ул. Ахмерова Населенный пункт: д. 8 Локация: Смотреть на карте ВРИ: Для ведения личного подсобного хозяйства (приусадебный земельный участок) Кадастровый номер: 02:31:110301:1 Кадастровая стоимость: - Вид сделки: Аренда Площадь: 1135 м² Начальная цена: - руб. Дата завершения: 20.12.2025 Подробнее: ГИС ТОРГИ #госземля #земляотгосударства #земля #земельныйучасток #земельныеторги #торги #аукцион #арендаземли #аренда #республикабашкортостан

Название: указан в разделе документы

Канал: Госземля Республика Башкортостан

Область: Респ Башкортостан с. Кармаскалы

Район: ул. Ахмерова

Населенный пункт: д. 8

Локация: Смотреть на карте

ВРИ: Для ведения личного подсобного хозяйства (приусадебный земельный участок)

Кадастровый номер: 02:31:110301:1

Кадастровая стоимость: -

Вид сделки: Аренда

Площадь: 1135 м²

Начальная цена: - руб.

Дата завершения: 20.12.2025

Подробнее: ГИС ТОРГИ

#госземля #земляотгосударства #земля #земельныйучасток #земельныеторги #торги #аукцион #арендаземли #аренда #республикабашкортостан