Найти в Дзене
ДОМ с умом

Проект "Алевтина" - стильный дом с удобной организацией внутреннего пространства

Коттедж отличается минимализмом архитектуры и простым, но в то же время, элегантным оформлением фасадов. Площадь дома 170 кв.м, планировка подходит для комфортной жизни семьи из пяти человек. Общая площадь - 170,2 кв.м
Жилая площадь - 156,1 кв.м
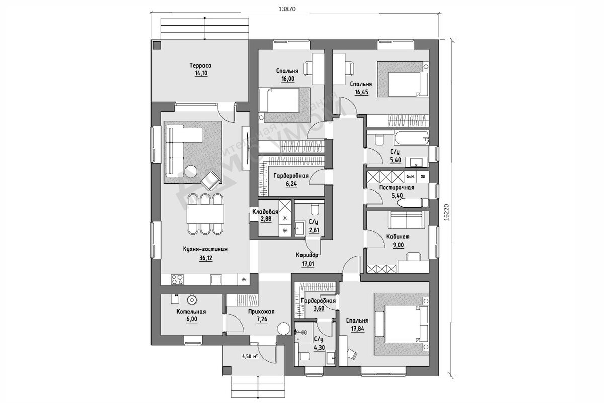
Габариты - 13,9 х 16,2 м
Фундамент: лента мелкого заложения
Стены: газобетонный блок 400 мм, утеплитель - 50 мм.
Отделка фасада: штукатурка и планкен
Крыша - из гибкой черепицы по деревянной стропильной системе
Чердачное перекрытие - по деревянным балкам В доме расположены: просторная кухня-гостиная с большим остеклением и выходом на террасу, три спальни, одна из которых мастер-спальня, кабинет, предусмотрены большая ванная комната, прачечная, кладовая, гардеробная и котельная. 📌Жилая площадь – 156,1 кв.м
📌Кухня-гостиная – 36,1 кв.м
📌Спальни – 4 шт.
📌Терраса – 14,1 в.м
Оглавление

Коттедж отличается минимализмом архитектуры и простым, но в то же время, элегантным оформлением фасадов. Площадь дома 170 кв.м, планировка подходит для комфортной жизни семьи из пяти человек.

Характеристики:

Общая площадь - 170,2 кв.м
Жилая площадь - 156,1 кв.м
Габариты - 13,9 х 16,2 м
Фундамент: лента мелкого заложения
Стены: газобетонный блок 400 мм, утеплитель - 50 мм.
Отделка фасада: штукатурка и планкен
Крыша - из гибкой черепицы по деревянной стропильной системе
Чердачное перекрытие - по деревянным балкам

Планировка:

В доме расположены: просторная кухня-гостиная с большим остеклением и выходом на террасу, три спальни, одна из которых мастер-спальня, кабинет, предусмотрены большая ванная комната, прачечная, кладовая, гардеробная и котельная.

-2

📌Жилая площадь – 156,1 кв.м
📌Кухня-гостиная – 36,1 кв.м
📌Спальни – 4 шт.
📌Терраса – 14,1 в.м