Добавить в корзинуПозвонить
Найти в Дзене
ГосземляРФ

Название: Адрес: Пензенская область, город Пенза г.о., г

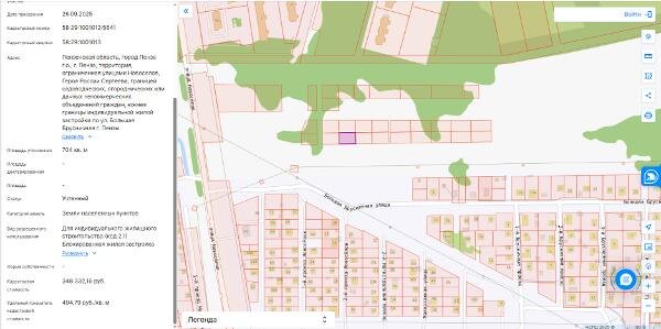
Название: Адрес: Пензенская область, город Пенза г.о., г. Пенза, территория, ограниченная улицами Новоселов, Героя России Сергеева, границей садоводческих, огороднических или дачных некоммерческих объединений граждан, южнее границы индивидуальной жилой застройки по ул. Большая Брусничная г. Пензы. Площадь: 704 кв. м. Кадастровый номер: 58:29:1001013:5641. Разрешенное использование (назначение): Для индивидуального жилищного строительства (код 2.1) Блокированная жилая застройка (код 2.3). Канал: Госземля Пензенская область Область: обл Пензенская Район: г.о. город Пенза Населенный пункт: г Пенза, ул Брусничная Б. Локация: Смотреть на карте ВРИ: Для индивидуального жилищного строительства Кадастровый номер: 58:29:1001013:5641 Кадастровая стоимость: - Вид сделки: Аренда Площадь: 704 м² Начальная цена: 348332.00 руб. Дата завершения: 17.12.2025 Подробнее: ГИС ТОРГИ #госземля #земляотгосударства #земля #земельныйучасток #земельныеторги #торги #аукцион #арендаземли #аренда #пензенскаяобласть

Название: Адрес: Пензенская область, город Пенза г.о., г. Пенза, территория, ограниченная улицами Новоселов, Героя России Сергеева, границей садоводческих, огороднических или дачных некоммерческих объединений граждан, южнее границы индивидуальной жилой застройки по ул. Большая Брусничная г. Пензы. Площадь: 704 кв. м. Кадастровый номер: 58:29:1001013:5641. Разрешенное использование (назначение): Для индивидуального жилищного строительства (код 2.1) Блокированная жилая застройка (код 2.3).

Канал: Госземля Пензенская область

Область: обл Пензенская

Район: г.о. город Пенза

Населенный пункт: г Пенза, ул Брусничная Б.

Локация: Смотреть на карте

ВРИ: Для индивидуального жилищного строительства

Кадастровый номер: 58:29:1001013:5641

Кадастровая стоимость: -

Вид сделки: Аренда

Площадь: 704 м²

Начальная цена: 348332.00 руб.

Дата завершения: 17.12.2025

Подробнее: ГИС ТОРГИ

#госземля #земляотгосударства #земля #земельныйучасток #земельныеторги #торги #аукцион #арендаземли #аренда #пензенскаяобласть