Найти в Дзене

Галерея идей LOYMINA Group: роскошная квартира в стиле ар-деко по проекту Галины Соколовой

Стиль ар-деко — это актуальный тренд нынешнего года, который будет востребован и в 2026: совсем недавно мы рассказывали вам о нём подробно в этой статье. А сегодня мы представим вам проект в этой стилистике, который смотрится по-настоящему изысканно, и всё благодаря искусству дизайнера Галины Соколовой мастерски миксовать винтаж и современность! Глядя на этот дизайн, сложно представить, что это — московская квартира в новостройке: кажется, что это интерьер фамильной усадьбы с обложки глянцевого журнала, и в этой обители живёт уже не одно поколение семьи. При этом пространство не выглядит старомодным — напротив, здесь чётко виден баланс между актуальностью и уважением к прошлому. Галина рассказала, как у неё получилось создать интерьер квартиры в стиле ар-деко, в котором живёт атмосфера дома с историей, где ценят искусство и подлинную красоту. Галина Соколова — дизайнер интерьера, архитектор, выпускница МАРХИ по специальности «Ландшафтная архитектура». С 2006 года как независимый архите
Оглавление

Стиль ар-деко — это актуальный тренд нынешнего года, который будет востребован и в 2026: совсем недавно мы рассказывали вам о нём подробно в этой статье. А сегодня мы представим вам проект в этой стилистике, который смотрится по-настоящему изысканно, и всё благодаря искусству дизайнера Галины Соколовой мастерски миксовать винтаж и современность!

Обои Loymina в проекте дизайнера Галины Соколовой
Обои Loymina в проекте дизайнера Галины Соколовой

Глядя на этот дизайн, сложно представить, что это — московская квартира в новостройке: кажется, что это интерьер фамильной усадьбы с обложки глянцевого журнала, и в этой обители живёт уже не одно поколение семьи. При этом пространство не выглядит старомодным — напротив, здесь чётко виден баланс между актуальностью и уважением к прошлому. Галина рассказала, как у неё получилось создать интерьер квартиры в стиле ар-деко, в котором живёт атмосфера дома с историей, где ценят искусство и подлинную красоту.

Об авторе

Галина Соколова — дизайнер интерьера, архитектор, выпускница МАРХИ по специальности «Ландшафтная архитектура». С 2006 года как независимый архитектор и дизайнер занимается архитектурным проектированием, декорированием и авторским надзором. За время работы реализовала множество проектов по оформлению интерьеров квартир, частных жилых домов и офисных помещений. Её профессиональный принцип — превращать литературные идеи, мечты и образы заказчика в визуализации интерьера, которые потом становятся рабочими чертежами, а в итоге — готовым интерьером, в котором всё настолько идеально, что нечего ни добавить, ни отнять.

Посмотреть работы Галины можно на её официальном сайте.

О проекте

Параметры объекта

Город: Москва, ЖК Homecity

Объект: 3-комнатная квартира

Площадь: 90 м²

Отличительные черты: квартира в новостройке со свободной планировкой

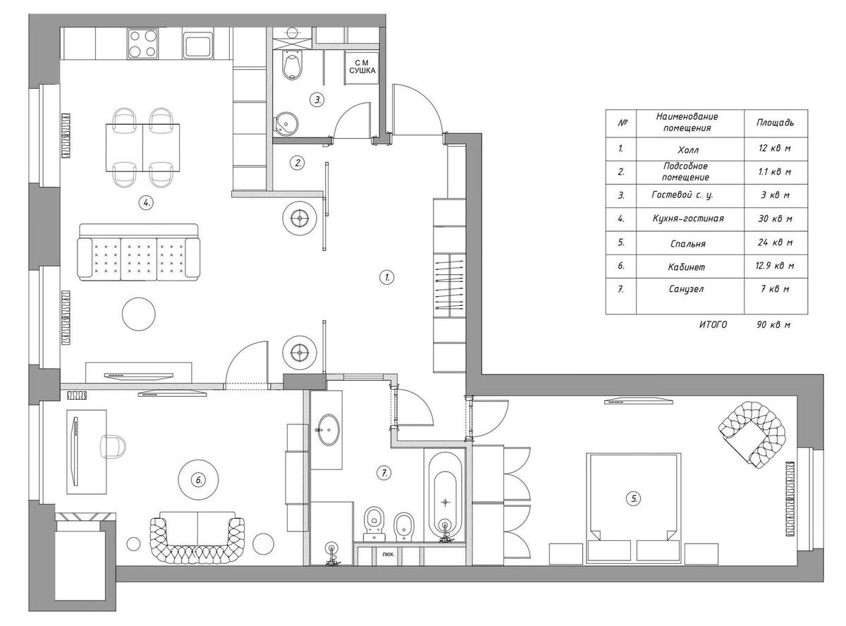
Планировка квартиры от дизайнера Галины Соколовой
Планировка квартиры от дизайнера Галины Соколовой

Требования заказчика

«Квартира принадлежит семейной паре. По требованиям клиентов, мне предстояло создать функциональный современный интерьер с классическими нотками и элементами ар-деко. Также нужно было органично вписать в пространство любимую мебель заказчиков, дополнив её яркими современными решениями, и предусмотреть достаточное количество мест для хранения».

Обои LIB4 001 Hicks из коллекции Liberty от бренда Loymina в интерьере спальни
Обои LIB4 001 Hicks из коллекции Liberty от бренда Loymina в интерьере спальни

Концепция интерьера

Философия проекта строится на гармоничном соединении нового и старого, актуальных элементов и предметов с богатой историей. Галина так говорит об этом: «Заказчики хотели привнести в свою новую квартиру любимую и дорогую сердцу винтажную мебель —книжный шкаф и спальный гарнитур, сочетая их с яркими современными акцентами. Поэтому именно винтаж становится центром интерьера, тогда как вся функциональная мебель окрашена в цвет стен и не привлекает к себе внимание».

Кабинет из проекта Галины Соколовой с обоями CLR3 002 из коллекции Clair от Loymina
Кабинет из проекта Галины Соколовой с обоями CLR3 002 из коллекции Clair от Loymina

Отделочные материалы

В этом проекте дизайнер сделала ставку на материалы в стиле ар-деко, рядом с которыми роскошные винтажные предметы заказчиков смотрятся максимально уместно и эффектно. Нужное настроение с тонкими нотками шика и аристократизма помещениям задают обои из коллекций Loymina с геометричными орнаментами, в которых присутствует деликатное металлизированное сияние — оно отлично комбинируется с элементами декора в оттенке латуни.

Спальня

Винтажная деревянная кровать с ажурной вставкой в изголовье с растительным мотивом — главная героиня этого помещения. Чтобы поддержать её стилистику, дизайнер дополнила интерьер элементами с настроением начала XX века — прикроватными тумбами с маленькими ящиками из дерева в близком оттенке, картиной в стиле супрематизм и декоративными подставками в полоску на тумбе. Отличным фоном для всех этих деталей выступают обои Hicks из коллекции Liberty от бренда Loymina в нейтральном бежевом оттенке, которые задают чёткий ритм помещению и гармонизируют богатое линиями и фактурами пространство.

Обои LIB4 001 Hicks из коллекции Liberty от бренда Loymina
Обои LIB4 001 Hicks из коллекции Liberty от бренда Loymina

Кабинет

Большой книжный шкаф арочной формы — гордость владельцев — точка притяжения взгляда в интерьере кабинета. В качестве «соседей», достойных его уникальности, дизайнер выбрала синий диван-кушетку в стилистике ар-деко, массивные журнальные столики цвета латуни и броские арт-объекты, а само рабочее пространство оформила минималистичной современной мебелью. Дополняют интерьер обои с крупным геометрическим рисунком из коллекции Clair от бренда Loymina — они придают помещению динамику и объём.

Обои CLR3 002 из коллекции Clair от бренда Loymina
Обои CLR3 002 из коллекции Clair от бренда Loymina

Интересные детали

В этом интерьере Галина позаботилась о приватности частных зон: «Спальня выделена в отдельное пространство с хорошей шумоизоляцией, а кабинет скрыт за дверью-невидимкой, которая находится в гостиной зоне». Помимо этого, она уделила огромное внимание предметам искусства, которых здесь очень много. Об одном из них она говорит так: «В кабинете на контрасте с винтажной мебелью я разместила на стене литографию Виктора Вазарели “Зебры”. Это произведение искусно дополняет пространство, а инсталляция из металла скульптора и художника Владимира Говоркова выглядит очень декоративно и оригинально». Благодаря этому подходу интерьер напоминает галерею современного искусства!

Обои CLR3 002 из коллекции Clair от бренда Loymina в интерьере кабинета
Обои CLR3 002 из коллекции Clair от бренда Loymina в интерьере кабинета

Трендовые настенные покрытия для ваших проектов вы найдёте на нашем официальном сайте loymina.ru. Не забывайте подписываться на наш канал, чтобы не пропускать истории героев рубрики «Галерея идей LOYMINA Group» и актуальные новости из мира интерьерного дизайна!

Как вам этот проект? Пишите в комментариях!