Найти в Дзене
ЭТО ВАШ ИНТЕРЬЕР

Мне досталась в наследство квартира от бабушки в плачевном виде... Пришлось её полностью преобразить (показываю фото ДО и После)

Молодая женщина по имени Анна унаследовала квартиру от бабушки, которая прожила здесь всю жизнь, наполняя пространство воспоминаниями о семейных ужинах и детских играх. Квартира располагалась в центре Москвы, на Патриарших прудах, с живописным видом на воду, который всегда успокаивал бабушку после долгого дня. Анна жила неподалёку, но решила не продавать жильё, а сдавать его в аренду, чтобы сохранить семейную связь с этим местом. Однако состояние квартиры оставляло желать лучшего: обшарпанные стены, устаревшая мебель и общее ощущение заброшенности. Она поняла, что без ремонта квартира не привлечёт арендаторов, и решила пригласить знакомого дизайнера, чтобы преобразить пространство. Вместе они поставили цель создать универсальный интерьер в спокойных нейтральных тонах, но с яркими акцентами, которые добавят характера, не ограничивая вкусы будущих жильцов. Проект охватывал 60 квадратных метров, и Анна хотела, чтобы ремонт отразил баланс между практичностью и уютом, вдохновлённый сканд
Оглавление

Молодая женщина по имени Анна унаследовала квартиру от бабушки, которая прожила здесь всю жизнь, наполняя пространство воспоминаниями о семейных ужинах и детских играх. Квартира располагалась в центре Москвы, на Патриарших прудах, с живописным видом на воду, который всегда успокаивал бабушку после долгого дня. Анна жила неподалёку, но решила не продавать жильё, а сдавать его в аренду, чтобы сохранить семейную связь с этим местом.

Однако состояние квартиры оставляло желать лучшего: обшарпанные стены, устаревшая мебель и общее ощущение заброшенности. Она поняла, что без ремонта квартира не привлечёт арендаторов, и решила пригласить знакомого дизайнера, чтобы преобразить пространство. Вместе они поставили цель создать универсальный интерьер в спокойных нейтральных тонах, но с яркими акцентами, которые добавят характера, не ограничивая вкусы будущих жильцов.

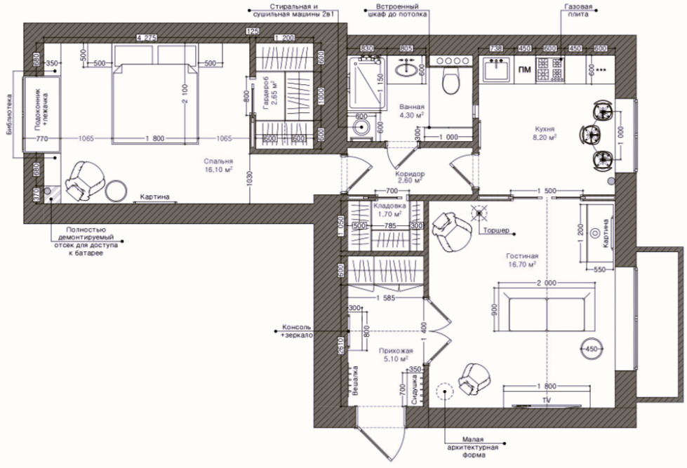
Проект охватывал 60 квадратных метров, и Анна хотела, чтобы ремонт отразил баланс между практичностью и уютом, вдохновлённый скандинавскими традициями простоты и функциональности. Дизайнер предложил объединить кухню с гостиной через большой проём, но поскольку кухня была газифицирована, установили раздвижные двери для безопасности. В коридоре появились системы хранения, а в спальне создали гардеробную, что позволило избавиться от шкафов по всей квартире.

Санузлы тоже объединили, чтобы оптимизировать пространство. Этот подход не только модернизировал квартиру, но и сделал её готовой к долгосрочной аренде, сохраняя при этом атмосферу семейного тепла.

Планирование и планировка

После того как Анна и дизайнер определились с видением, они углубились в планирование, которое стало ключом к превращению устаревшего пространства в современное и функциональное. Квартира площадью 60 квадратных метров требовала тщательного подхода: нужно было сохранить открытость, вдохновлённую скандинавским стилем, где свет и простор играют главную роль, но адаптировать под практические нужды арендаторов. Они начали с анализа исходной планировки — типичной для старых московских домов, с маленькими комнатами и неэффективным использованием площади.

-2

Дизайнер предложил снести перегородки между кухней и гостиной, создав единое пространство, которое сразу же добавит ощущения свободы и позволит естественному свету из окон на Патриаршие пруды проникать глубже. Однако, поскольку кухня была на газу, вместо полного объединения установили раздвижные стеклянные двери — практичное решение, которое обеспечивает безопасность и разделяет зоны при необходимости, но не создаёт барьеров. Это не только улучшило циркуляцию воздуха, но и сделало квартиру более привлекательной для арендаторов, ценящих гибкость.

-3

В спальне акцент сделали на создание гардеробной: встроенный шкаф вдоль стены занял место старых громоздких конструкций, освободив пространство для отдыха.

-4
Факт: такие гардеробные на 20–30% увеличивают полезную площадь, по данным исследований в дизайне интерьеров, и позволяют хранить одежду сезонно, что удобно для долгосрочной аренды.

Санузлы объединили в один просторный, с ванной и душевой кабиной, что сэкономило место и упростило обслуживание — в старых квартирах это стандартный ход для модернизации. В коридоре и прихожей установили системы хранения: полки и ниши под потолком, чтобы разместить обувь, сумки и мелкие вещи без захламления.

-5

Выбрав планировку, Анна и дизайнер перешли к выбору материалов, где приоритетом стала практичность для аренды — вещи должны выдерживать интенсивное использование, быть долговечными и простыми в уходе. Они вдохновлялись скандинавским стилем: натуральные текстуры, светлые тона и функциональность. Для стен выбрали водоэмульсионную краску в белом и бежевом цветах — она экологична, устойчива к истиранию и легко моется, что идеально для арендаторов с детьми или животными.

-6

Полы покрыли керамогранитом в прихожей и ванной — он не боится влаги и царапин, прослужит десятилетиями без ремонта. В жилых комнатах постелили ламинат с фактурой дерева, который теплее и тише керамогранита, создавая уют, но оставаясь прочным.

-7

Кухню и ванную облицевали керамической плиткой в нейтральных тонах с глянцевым блеском, чтобы визуально увеличить пространство. Анна решила сохранить некоторые бабушкины вещи: старый комод отреставрировали и интегрировав в интерьер как акцент. Это добавило эмоциональную глубину — каждый раз, глядя на него, она вспоминала семейные истории. Потолки с матовой поверхностью, которые скрыли неровности и улучшили освещение.

-8

Мебель и декор

Когда материалы легли на место, настало время наполнить квартиру мебелью и декором, чтобы она заиграла жизнью. Анна хотела, чтобы каждый предмет был не только красивым, но и функциональным — идеально для арендаторов, которые ценят комфорт без излишеств. Вдохновляясь скандинавским минимализмом, они выбрали универсальную мебель: простые формы, натуральные материалы вроде сосны и дуба, и светлые оттенки, которые не выходят из моды.

-9

В гостиной поставили диван-кровать, модульный и удобный, с мягкой обивкой из ткани, устойчивой к пятнам — факт: такие модели выдерживают до 10 лет интенсивного использования, по отзывам пользователей. Рядом — журнальный столик, который легко передвинуть для уборки или вечеринок, добавляя гибкости пространству.

-10

Кухонный гарнитур собрали из готовых модулей, модифицированных под размеры. Шкафы для хранения закрытые, с ручками в минималистичном стиле. В спальне — кровать с большим и мягким изголовьем, прикроватные тумбочки и компактный комод, где можно спрятать вещи, не загромождая комнату. Гардеробная заполнилась вешалками и выдвижными ящиками, организованными по сезонам, что упрощает жизнь арендаторам.

-11
Факт: правильная организация хранения снижает стресс на 30%, согласно исследованиям психологов интерьера.

Декор добавил души: на стенах — картины в чёрно-белых тонах, купленные на блошином рынке, и зелёные растения в керамических горшках, которые очищают воздух и создают ощущение природы. Текстиль — льняные шторы и пледы в бежевых оттенках, мягкие под пальцами и практичные в стирке.

-12

Анна чувствовала гордость: квартира стала не просто ремонтом, а историей — от бабушкиных воспоминаний к современному уюту, где каждый элемент работает на гармонию. Эмоциональный пик: открывая дверь, она ощущала, как пространство дышит спокойствием, готовое принять новых жителей с их мечтами.

-13

Завершение проекта и уроки

Ремонт подошёл к финалу, и Анна стояла в центре квартиры, осматривая результат. То, что начиналось как смелый шаг, превратилось в уютное убежище — пространство, которое дышит скандинавским спокойствием. Она вспоминала дни, когда пыль летела от старых обоев, а теперь светлые стены сияли свежестью, отражая зимний снег за окном. Квартира стала не просто ремонтом, а мостом между прошлым и будущим — бабушкины вещи гармонично вписались в современный дизайн, напоминая о семейных корнях.

-14

Анна наняла местных мастеров, которые работали аккуратно, минимизируя шум для соседей. Она училась на ходу: выбирала материалы онлайн, тестировала краски на образцах, чтобы избежать ошибок. Один урок — проверять отзывы: ламинат, который казался идеальным, пришлось заменить из-за шума под ногами, но в итоге выбрали вариант с лучшей звукоизоляцией.

Для арендаторов квартира стала готовой к жизни: практичные поверхности выдержат игры детей, встроенное хранение упростит переезды, а нейтральные тона позволят добавить личные акценты. Анна советует начинающим: планируйте бюджет с 10% запасом на неожиданности, выбирайте мебель вне зависимости от моды и тренда, чтобы не менять её часто, и не бойтесь эмоций — ремонт меняет не только стены, но и душу.

Ремонт научил её ценить простоту: меньше вещей — больше свободы. Если вы мечтаете о подобном, начните с идей, набросайте план и действуйте шаг за шагом. Ваша квартира может стать таким же уголком спокойствия.