Добавить в корзинуПозвонить
Найти в Дзене

ЖК «Свет»: каждая деталь планировки продумана

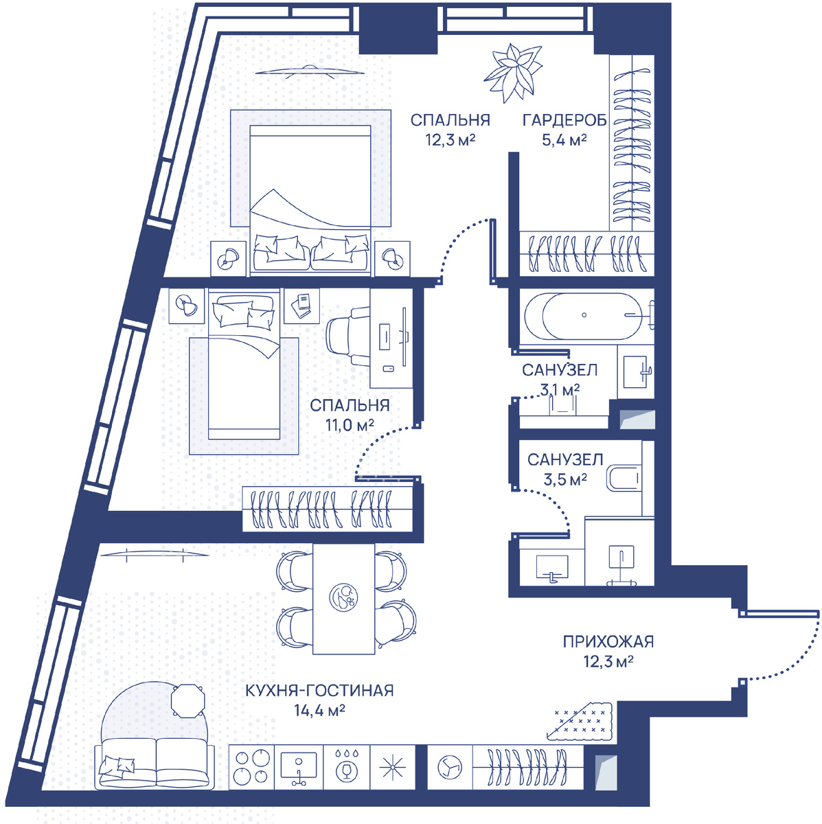
В современном мегаполисе квартира уже давно перестала быть просто жильем. Это гибкий инструмент жизни: место работы, отдыха, творчества, встреч. Поэтому неудивительно, что покупатели всё чаще обращают внимание не столько на метраж, сколько на качество пространства. Именно с этой позиции стоит смотреть на ЖК «СВЕТ» — амбициозный и продуманный жилой комплекс, в котором всё сделано с оглядкой на будущее. Даже планировки. Жизнь по-новому — планировка по-новому Что такое типовая квартира? Это набор изолированных комнат, соединённых коридорами. Это наследие прошлого, рассчитанное на другие потребности и образ жизни. А теперь сравним: В ЖК «СВЕТ» вас встречают панорамные окна, которые заливают пространство светом и открывают шикарные виды. Потолки до 3 метров дают ощущение объёма даже в квартире 30–40 м². Открытые, зонируемые пространства позволяют самому формировать сценарии жизни: утром — светлая рабочая зона, вечером — место для друзей или отдыха. Это пространство возможностей , это гибк
Оглавление

В современном мегаполисе квартира уже давно перестала быть просто жильем. Это гибкий инструмент жизни: место работы, отдыха, творчества, встреч. Поэтому неудивительно, что покупатели всё чаще обращают внимание не столько на метраж, сколько на качество пространства. Именно с этой позиции стоит смотреть на ЖК «СВЕТ» — амбициозный и продуманный жилой комплекс, в котором всё сделано с оглядкой на будущее. Даже планировки.

Жизнь по-новому — планировка по-новому

Что такое типовая квартира? Это набор изолированных комнат, соединённых коридорами. Это наследие прошлого, рассчитанное на другие потребности и образ жизни. А теперь сравним:

  • В ЖК «СВЕТ» вас встречают панорамные окна, которые заливают пространство светом и открывают шикарные виды.
  • Потолки до 3 метров дают ощущение объёма даже в квартире 30–40 м².
  • Открытые, зонируемые пространства позволяют самому формировать сценарии жизни: утром — светлая рабочая зона, вечером — место для друзей или отдыха.

Это пространство возможностей , это гибкость. Это планировки, которые растут вместе с вашими потребностями, а не диктуют вам, как жить.

Стиль — с первого дня

Нестандартные планировки требуют особого подхода — и мы его предусмотрели. В ЖК «СВЕТ» вы получаете готовый интерьерный проект, созданный Студией Артемия Лебедева.

Умный дом — это не только гаджеты

Обычно «умный дом» ассоциируется с голосовыми помощниками или подсветкой по хлопку. В «СВЕТ» смысл глубже: вся среда проектируется как интеллектуальная система.

  • Вы управляете домофоном, бронируете переговорные, заказываете пропуск — всё через мобильное приложение.
  • В доме — двухуровневый подземный паркинг с зарядками для электромобилей и выделенными местами хранения (келлерами).
  • Пространства общего пользования — не просто холлы, а интерактивные мультимедийные зоны: свет, звук и видеопанели синхронизируются с временем суток, создавая нужную атмосферу.
-4

Пространство вне квартиры

Один из главных плюсов «СВЕТ» — то, что жизнь здесь не ограничивается четырьмя стенами. Вам доступен SocialHUB — ваше личное пространство для общения, работы и встреч , открытый только для резидентов:

  • Коворкинг с рабочими местами и переговорными;
  • Студия контента для видео, подкастов и онлайн-презентаций;
  • Зал для ивентов, лекций и кинопоказов;
  • Пространство для гейминга и стриминга.

Это не просто модный бонус — это часть образа жизни. В условиях, когда границы между «домом» и «работой» стираются, такой подход становится необходимостью.

-5

Ландшафт, где хочется быть

Проект благоустройства разработан студией WOWHAUS — это не просто двор, а сценарное общественное пространство:

  • Амфитеатр для отдыха ;
  • Воркаут-зоны,
  • Пешеходные маршруты, зелёные насаждения, арт-объекты.

Таким образом, даже если вы не выезжаете за пределы комплекса, вы получаете насыщенную городскую среду — прямо под окнами.

-6

Итог: квартира — это больше, чем стены

ЖК «СВЕТ» — не про стандарт, а про новый формат жилья. Здесь нет привычных рамок, но есть свобода, технологии, среда. Планировки могут удивить вначале, но быстро становятся удобными и родными. Они идеально отражают то, как мы живём сегодня: легко, удобно и по-своему.

Если вы готовы выйти за пределы «так принято», то вы поймёте: здесь всё логично, удобно и стильно. Просто иначе.

Следующий шаг

Отдел продаж: +7 (495) 106-51-86

Режим работы: ежедневно с 9:00 до 21:00

Или перейдите по ссылке, чтобы оставить заявку на обратный звонок, и мы сами свяжемся с вами в рабочее время.

О компании

Застройщик проекта Dominanta – девелопер, создающий достопримечательности для города и его жителей.

ЗАСТРОЙЩИК И РЕКЛАМОДАТЕЛЬ ООО "СЗ "ЛАЗУРИТ". ПРОЕКТНАЯ ДЕКЛАРАЦИЯ НА САЙТЕ НАШ.ДОМ.РФ. DOMINANTA – ДОМИНАНТА.