Добавить в корзинуПозвонить
Найти в Дзене

❄️ Зима- замечательное время для ландшафтного проектирования

❄️ Зима- замечательное время для ландшафтного проектирования 🌿 Почему? Разработка концепции требует времени, а ландшафтный проект — это продуманная концепция, она особенно важна для участков свыше 10 соток . В готовом проекте тщательно продумано зонирование,растительные группы, эстетика, видовые точки. 🗂️ После концепции рабочая документация формируется в полный пакет чертежей: дендроплан, разбивочные чертежи мощений и конструктивов, схемы инженерных коммуникаций (освещение, полив, дренаж), схемы МАФ. Все элементы тщательно рассчитываются и прорабатываются для точного воплощения проекта. 💰 Смета создается на основе документации и требует внимательных расчетов. Корректировки можно вносить спокойно, без спешки, что обеспечивает точность бюджета и планирования. 🌱 Проект, выполненный в зимний период, позволяет получить качественную концепцию, точную документацию и смету, а также время для корректировок до реализации, обеспечивая функциональность и эстетическое качество сада.

❄️ Зима- замечательное время для ландшафтного проектирования

🌿 Почему?

Разработка концепции требует времени, а ландшафтный проект — это продуманная концепция, она особенно важна для участков свыше 10 соток . В готовом проекте тщательно продумано зонирование,растительные группы, эстетика, видовые точки.

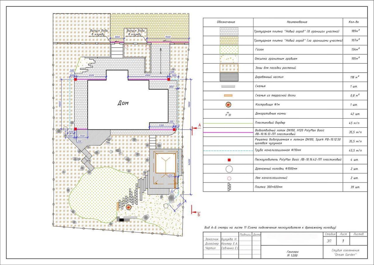
🗂️ После концепции рабочая документация формируется в полный пакет чертежей: дендроплан, разбивочные чертежи мощений и конструктивов, схемы инженерных коммуникаций (освещение, полив, дренаж), схемы МАФ. Все элементы тщательно рассчитываются и прорабатываются для точного воплощения проекта.

💰 Смета

создается на основе документации и требует внимательных расчетов. Корректировки можно вносить спокойно, без спешки, что обеспечивает точность бюджета и планирования.

🌱 Проект, выполненный в зимний период, позволяет получить качественную концепцию, точную документацию и смету, а также время для корректировок до реализации, обеспечивая функциональность и эстетическое качество сада.

-2
-3
-4
-5
-6
-7
-8