Добавить в корзинуПозвонить
Найти в Дзене

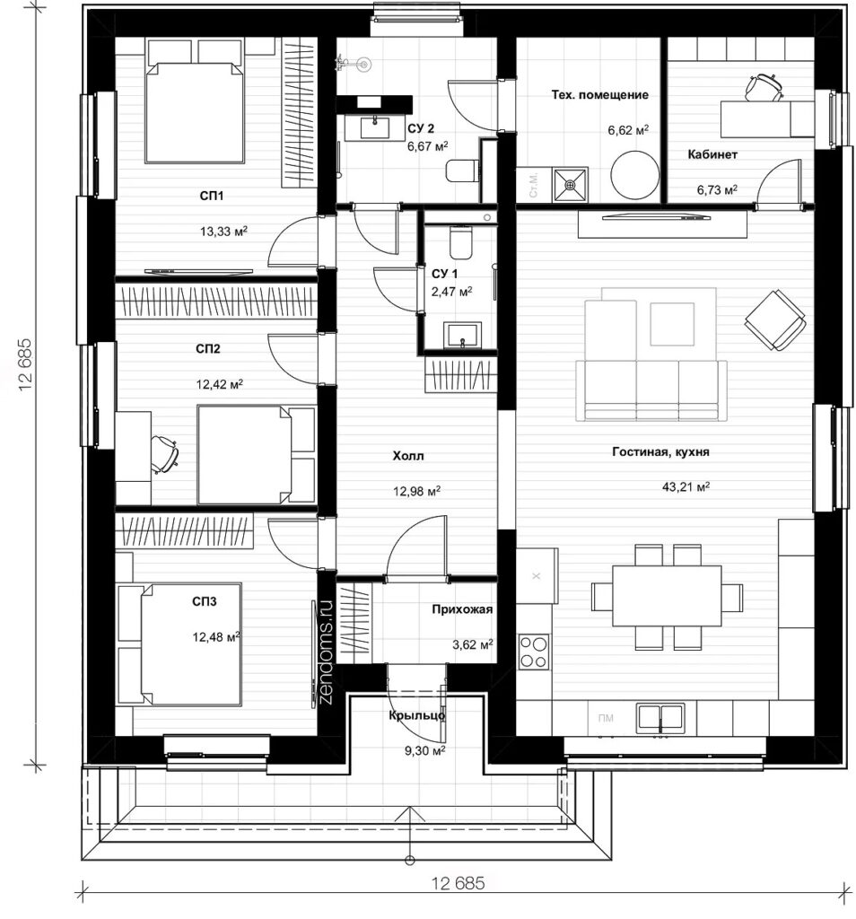
Проект современного одноэтажного дома с плоской крышей, площадью 120 кв. м с 3 спальнями

Предлагаем рассмотреть наш топовой вариант проекта одноэтажного дома в современном исполнении. Дом представлен с плоской крышей. Площадь дома: 120 кв. м
Размеры дома: 12.6 на 12.6 метров. Ссылка на проект: https://acpdom.ru/proekty-domov/proekt-doma-flou/ Планировка простая и очень удобная имеет общий холл с туалетными комнатами с разделением на две части, с одной стороны 3 спальные комнаты, с другой совмещенная кухня-гостиная, кабинет, техническое помещение. Дом был построен из газобетонных блоков. Отделка фасада предусматривает использование фиброцементных панелей, можно заменить на другой вариант. Если вам понравился данный проект, пишите нам, возможны любые адаптации по нему. Пишите нам на Ватсап На почту: info@acpdom.ru Наш сайт: https://acpdom.ru/
Оглавление

Предлагаем рассмотреть наш топовой вариант проекта одноэтажного дома в современном исполнении. Дом представлен с плоской крышей.

Проект дома «Флоу»

Площадь дома: 120 кв. м
Размеры дома: 12.6 на 12.6 метров.

Ссылка на проект: https://acpdom.ru/proekty-domov/proekt-doma-flou/

План этажа

Планировка простая и очень удобная имеет общий холл с туалетными комнатами с разделением на две части, с одной стороны 3 спальные комнаты, с другой совмещенная кухня-гостиная, кабинет, техническое помещение.

-2

Реализация дома

Дом был построен из газобетонных блоков.

Отделка фасада предусматривает использование фиброцементных панелей, можно заменить на другой вариант.

-4

Если вам понравился данный проект, пишите нам, возможны любые адаптации по нему.

Пишите нам на Ватсап

На почту: info@acpdom.ru

Наш сайт: https://acpdom.ru/