Найти в Дзене
ГосземляРФ

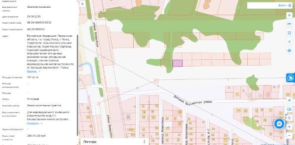
Название: Адрес: Российская Федерация, Пензенская область, г

Название: Адрес: Российская Федерация, Пензенская область, г.о. город Пенза, г Пенза, территория, ограниченная улицами Новоселов, Героя России Сергеева, границей садоводческих, огороднических или дачных некоммерческих объединений граждан, южнее границы индивидуальной жилой застройки по ул. Большая Брусничная г. Пензы. Площадь: 707 кв. м. Кадастровый номер: 58:29:1001013:5632. Разрешенное использование (назначение): Для индивидуального жилищного строительства (код 2.1) Блокированная жилая застройка (код 2.3). Канал: Госземля Пензенская область Область: обл Пензенская Район: г.о. город Пенза Населенный пункт: г Пенза, ул Брусничная Б. Локация: Смотреть на карте ВРИ: Для индивидуального жилищного строительства Кадастровый номер: 58:29:1001013:5632 Кадастровая стоимость: - Вид сделки: Аренда Площадь: 707 м² Начальная цена: 348812.00 руб. Дата завершения: 10.12.2025 Подробнее: ГИС ТОРГИ #госземля #земляотгосударства #земля #земельныйучасток #земельныеторги #торги #аукцион #арендаземли #арен

Название: Адрес: Российская Федерация, Пензенская область, г.о. город Пенза, г Пенза, территория, ограниченная улицами Новоселов, Героя России Сергеева, границей садоводческих, огороднических или дачных некоммерческих объединений граждан, южнее границы индивидуальной жилой застройки по ул. Большая Брусничная г. Пензы. Площадь: 707 кв. м. Кадастровый номер: 58:29:1001013:5632. Разрешенное использование (назначение): Для индивидуального жилищного строительства (код 2.1) Блокированная жилая застройка (код 2.3).

Канал: Госземля Пензенская область

Область: обл Пензенская

Район: г.о. город Пенза

Населенный пункт: г Пенза, ул Брусничная Б.

Локация: Смотреть на карте

ВРИ: Для индивидуального жилищного строительства

Кадастровый номер: 58:29:1001013:5632

Кадастровая стоимость: -

Вид сделки: Аренда

Площадь: 707 м²

Начальная цена: 348812.00 руб.

Дата завершения: 10.12.2025

Подробнее: ГИС ТОРГИ

#госземля #земляотгосударства #земля #земельныйучасток #земельныеторги #торги #аукцион #арендаземли #аренда #пензенскаяобласть